Vente appartement 3 pièces, 61.00m², Puteaux
- 61.00m²
- 3 pièces
- 2 chambres
- 1 SDB
PUTEAUX Centre / 3 pièces de 61 m²
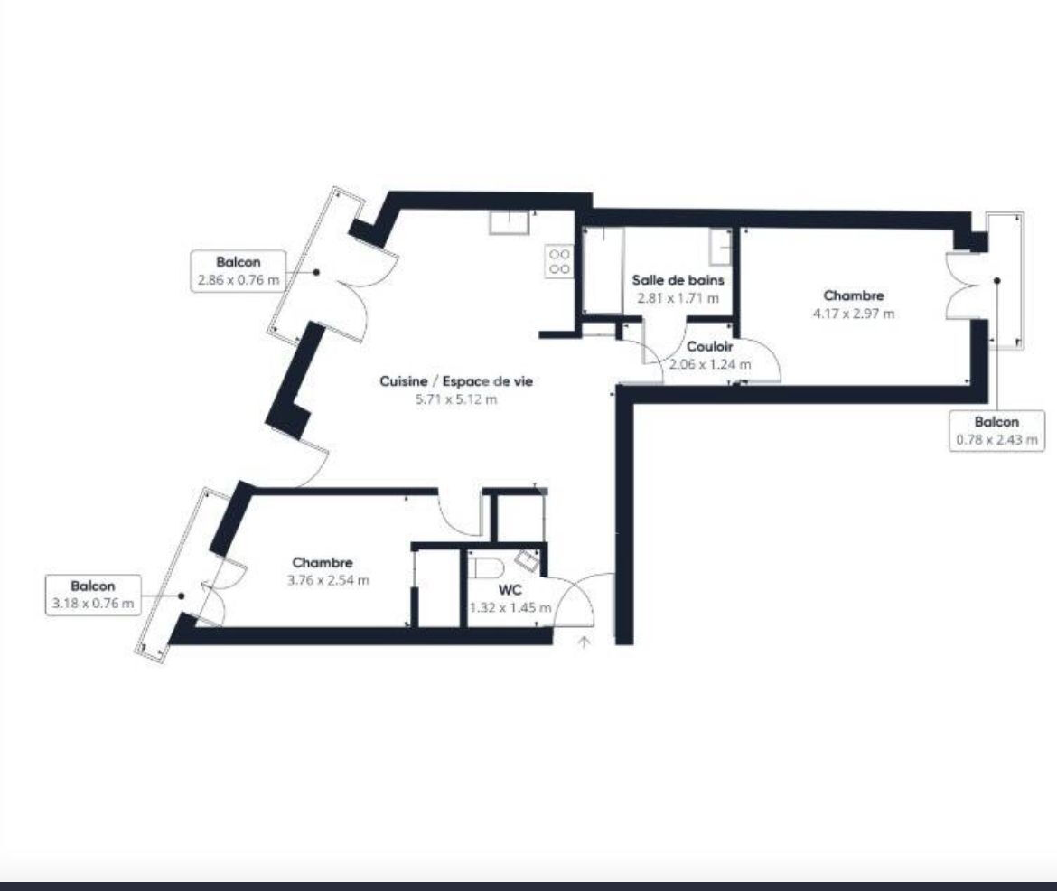
L'ADRESSE Immobilier vous présente ce nouvel appartement de 3 pièces idéalement situé au coeur de Puteaux, à seulement 2 minutes à pied de la mairie et 10 minutes du métro Esplanade de la Défense. Appartement traversant de 61 m² situé au 2éme étage d'un immeuble récent de 2023 avec ascenseur, encore sous garantie décennale..
L'appartement se compose d'une entrée avec placard, d'un toilette indépendant, d'un séjour lumineux avec cuisine ouverte donnant accès à un balcon, de 2 chambres, et d'une salle de bains.
Un parking en sous-sol est vendu en supplément à 20.000 €
Vous profiterez d'un cadre de vie privilégié : commerces au pied de la résidence, écoles et transports accessibles à pied !
Un bien clé en main, à visiter sans tarder !
Vente interactive à prix progressif : les offres seront reçues sur la plateforme WINUP le 15/11/2025 à 20:00.
Le prix de départ des offres est de 490 000 € (honoraires inclus). Les participants pourront enchérir par palier de 5 000 €.
Une offre en ligne pendant la vente interactive ne constitue pas une offre ferme et définitive au sens de l'article 1114 du Code Civil, mais une simple intention d'achat.
En savoir plus sur le site WinUp Immo
Les informations sur les risques auxquels ce bien est exposé sont disponibles sur le site Géorisques : www.georisques.gouv.fr
790
0Montant estimé des dépenses annuelles d'énergie pour un usage standard :
Entre 360.00€ et 530.00€ par an
-
Les essentiels
- 3 pièces
- 61.00 m²
- 2 chambres
- 1 salle de bain
-
Copropriété
- Bien en copropriété
- Charges annuelles (ALUR) : 1772.00€
- Pas de procédure en cours
-
Autres
- Etat général : Très bon état
- Etage 2
- Construit en 2023
- Immeuble de 6 étages
Vous souhaitez visiter l'Appartement
l'Adresse Puteaux
92800 Puteaux
Transaction :
01 70 21 87 31
Location :
01 70 21 87 31
Nos honoraires
- l'Adresse Puteaux
- 10000
- Nathalie ANDRIEUX
- 812808657
- Nanterre
- FR19812808657
- 4402 2015 000 001 799
- CCI de Paris Île-de-France
- GALIAN
- 200 000 €uros
- 89 rue de la Boétie 75008 PARIS
- MIEUX VIVRE ENSEMBLE - 1, impasse de Beauregard 54000 NANCY - mediation@vivons-mieux-ensemble.fr
Mentions légales
Les appartements similaires
Garches (92)
Exclusif370 000 €Appartement4 pièces , 2 chambres
73.00 m²
Avec balcon
Asnières-sur-Seine (92)
Exclusif287 000 €Appartement4 pièces , 3 chambres
78.83 m²
Avec balcon
Chaville (92)
Exclusif425 000 €Appartement5 pièces , 3 chambres
95.01 m²
Avec balcon
Châtillon (92)
Exclusif260 000 €Appartement2 pièces , 1 chambre
38.51 m²
Villeneuve-la-Garenne (92)
385 000 €Appartement5 pièces , 4 chambres
94.10 m²
Avec terrasse
Nanterre (92)
270 000 €Appartement2 pièces , 1 chambre
43.50 m²
Avec balcon
Suresnes (92)
Exclusif310 000 €Appartement2 pièces , 1 chambre
40.11 m²
Suresnes (92)
1 006 000 €Appartement5 pièces , 4 chambres
148.40 m²
- Achat appartement
- Île-de-France
- Hauts-de-Seine (92)
- Puteaux (92800)
- Vente appartement 3 pièces, 61.00m², Puteaux














