Réf. de l'annonce : 14148011 / 1966
Vente appartement 2 pièces, 55.00m², Puteaux
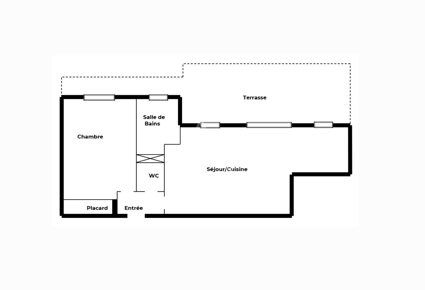
- 55.00m²
- 2 pièces
- 1 chambre
- 1 SDB
PUTEAUX/ Fusillés de la Résistance - Appartement 2 pièces 55m² avec une Terrasse de 16m²
L'agence l'Adresse Immobilier est ravie de vous présenter en EXCLUSIVITÉ ce magnifique appartement, située dans la prestigieuse résidence de très bon standing de 2016 « la Fontaine de Médicis ». Cette résidence, équipée d'un ascenseur et d'un visiophone, est également dotée d'un système de domotique de pointe, assurant un confort et une sécurité optimal pour ses résidents. Les parties communes sont impeccables (soubassement et tapis), témoignant du savoir-faire du promoteur SEGER.
Au sixième étage sur sept, cet appartement de deux pièces principales, d'une superficie de 52,24m² en loi carrez, avec une terrasse de 16m², a été conçu pour offrir un cadre de vie exceptionnel, vue panoramique sans vis-à-vis (Tour Eiffel, Bois de Boulogne, Mont Valérien), école/crèche/commerces, transports (T2 et lignes L et U à 8 min, bus 258/158/360/141 à 2 min), la Défense à proximité directe.
Dès l'entrée, vous serez séduit par l'agencement astucieux, la luminosité et les finitions haut de gamme qui caractérisent ce bien.
La cuisine entièrement équipée SCHMIDT, ouverte sur le séjour et la terasse exposée sud/est, invite à partager des moments conviviaux en famille ou entre amis.
Un dégagement nuit, composé d'un toilette séparé, d'une chambre parentale spacieuse de 13m² avec placards, offrant un espace de rangement optimisé avec une salle de bains attenante.
Le parquet en chêne clair ajoute une touche d'élégance à chaque pièce, tandis que les prestations de qualité et les nombreux rangements sur mesure garantissent un confort de vie optimal.
Le chauffage collectif réversible (à air pulsé, chauffage l'hiver et refroidissement l'été) assure un climat intérieur agréable tout au long de l'année, avec des charges maîtrisées.
Ne manquez pas cette opportunité unique d'acquérir un bien d'exception dans l'un des quartiers les plus prisés de Puteaux.
Une place de staionnement est possible en location.
Contactez-nous pour organiser une visite et laissez-vous séduire par le charme et le confort de cet appartement.
Au plaisir de vous le faire découvrir !
Les informations sur les risques auxquels ce bien est exposé sont disponibles sur le site Géorisques : www.georisques.gouv.fr
758
8Montant estimé des dépenses annuelles d'énergie pour un usage standard :
Entre 330.00€ et 500.00€ par an
-
Les essentiels
- 2 pièces
- 55.00 m²
- 1 chambre
- Ascenseur : Oui
- 1 salle de bain
-
Intérieur
- Cuisine Ouverte Aménagée Equipée
- Gardien : Non
- Interphone : Oui
- Digicode : Oui
- Visiophone : Oui
- 1 Cave
-
Extérieur
- 1 Parking
-
Copropriété
- Bien en copropriété
- Charges annuelles (ALUR) : 1440.00€
- Pas de procédure en cours
-
Autres
- Fibre : Oui
- Etage 6
- Construit en 2016
- Immeuble de 7 étages
Vous souhaitez visiter l'Appartement
l'Adresse Puteaux
92800 Puteaux
Transaction :
01 70 21 87 31
Location :
01 70 21 87 31
Nos honoraires
- l'Adresse Puteaux
- 10000
- Nathalie ANDRIEUX
- 812808657
- Nanterre
- FR19812808657
- 4402 2015 000 001 799
- CCI de Paris Île-de-France
- GALIAN
- 200 000 €uros
- 89 rue de la Boétie 75008 PARIS
- MIEUX VIVRE ENSEMBLE - 1, impasse de Beauregard 54000 NANCY - mediation@vivons-mieux-ensemble.fr
Mentions légales
Nous tenons à vous informer que l'annonce immobilière que vous avez consultée n'est malheureusement plus disponible pour les visites.
Nous comprenons que cela puisse être décevant, mais nous vous encourageons à continuer à explorer nos autres annonces disponibles. Notre équipe est à votre disposition pour vous aider à trouver la propriété qui correspond à vos besoins et à votre budget.
N'hésitez pas à nous contacter pour toute question ou pour planifier des visites pour d'autres biens. Nous sommes déterminés à vous accompagner dans votre recherche et à vous aider à trouver votre nouveau chez-vous.
Merci pour votre compréhension et votre intérêt.
Les appartements similaires
Suresnes (92)
Exclusif400 000 €Appartement3 pièces , 2 chambres
65.00 m²
Puteaux (92)
Exclusif562 500 €Appartement3 pièces , 2 chambres
68.42 m²
Avec balcon
Le Plessis-Robinson (92)
Exclusif280 000 €Appartement2 pièces , 1 chambre
53.12 m²
Bourg-la-Reine (92)
Exclusif179 000 €Appartement3 pièces , 1 chambre
26.74 m²
Avec jardin
Suresnes (92)
575 000 €Appartement4 pièces , 3 chambres
99.30 m²
Suresnes (92)
Exclusif1 075 000 €Appartement5 pièces , 3 chambres
148.00 m²
Chaville (92)
Exclusif385 000 €Appartement5 pièces , 3 chambres
95.01 m²
Avec balcon
Boulogne-Billancourt (92)
620 000 €Appartement3 pièces , 2 chambres
77.40 m²
Avec balcon
- Achat appartement
- Île-de-France
- Hauts-de-Seine (92)
- Puteaux (92800)
- Vente appartement 2 pièces, 55.00m², Puteaux

















