Vente appartement 2 pièces, 54.00m², Puteaux
- 54.00m²
- 2 pièces
- 1 chambre
- 1 SDB
PUTEAUX/ Ampère - Appartement 2 pièces 54m² - 1 Parking
L'Agence L'Adresse Immobilier vous présente cet appartement de deux pièces principales, d'une superficie de 54 m².
Idéalement situé, rue Ampère, quartier Pressensé, équidistant entre le centre-ville de Puteaux et de Suresnes, T2/Ligne L à 10 min à pied, proche de toutes les commodités.
Au sein d'un immeuble de 1983, sans gros oeuvres à prévoir, façade en parfait état.
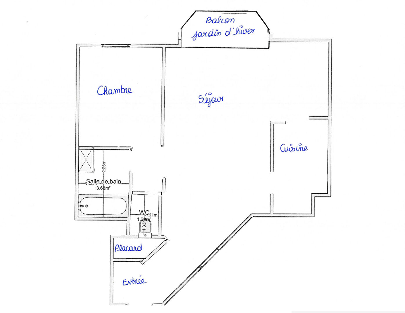
Au troisième étage sur cinq, avec ascenseur, le bien est agencé de la manière suivante : une entrée avec placard, une cuisine (nue) semi-ouverte sur un grand séjour, un bow-window (transformable en loggia), un dégagement, un WC séparé, une salle de bains et une chambre.
Un emplacement en sous-sol complète ce bien, en sus de 15 000 € TTC.
Le chauffage et l'eau chaude sont individuels électriques.
Les fenêtres sont en PVC et bois, double vitrage.
Un devis est à la disposition du futur acquéreur pour la rénovation de ce bien au fort potentiel.
Contactez Céline DREUX pour organiser votre visite.
Les informations sur les risques auxquels ce bien est exposé sont disponibles sur le site Géorisques : www.georisques.gouv.fr
1455
5Montant estimé des dépenses annuelles d'énergie pour un usage standard :
Entre 770.00€ et 1070.00€ par an
-
Les essentiels
- 2 pièces
- 54.00 m²
- 1 chambre
- Ascenseur : Oui
- 1 salle de bain
-
Intérieur
- Cuisine Nue
- Gardien : Oui
- Digicode : Oui
-
Extérieur
- 1 Balcon
- 1 Parking
-
Copropriété
- Bien en copropriété
- Charges annuelles (ALUR) : 1580.00€
- Pas de procédure en cours
-
Autres
- Etat général : Travaux à prévoir
- Fibre : Oui
- Etage 3
- Construit en 1988
- Immeuble de 5 étages
Vous souhaitez visiter l'Appartement
l'Adresse Puteaux
92800 Puteaux
Transaction :
01 70 21 87 31
Location :
01 70 21 87 31
Nos honoraires
- l'Adresse Puteaux
- 10000
- Nathalie ANDRIEUX
- 812808657
- Nanterre
- FR19812808657
- 4402 2015 000 001 799
- CCI de Paris Île-de-France
- GALIAN
- 200 000 €uros
- 89 rue de la Boétie 75008 PARIS
- MIEUX VIVRE ENSEMBLE - 1, impasse de Beauregard 54000 NANCY - mediation@vivons-mieux-ensemble.fr
Mentions légales
Les appartements similaires
Nanterre (92)
Exclusif240 000 €Appartement3 pièces , 2 chambres
48.00 m²
Châtillon (92)
Exclusif590 000 €Appartement4 pièces , 3 chambres
85.07 m²
Suresnes (92)
Exclusif795 000 €Appartement4 pièces , 3 chambres
128.00 m²
Rueil-Malmaison (92)
Exclusif550 000 €Appartement3 pièces , 2 chambres
70.37 m²
Avec balcon
Chaville (92)
275 000 €Appartement3 pièces , 2 chambres
61.00 m²
Boulogne-Billancourt (92)
Exclusif468 000 €Appartement3 pièces , 2 chambres
74.14 m²
Avec balcon
Suresnes (92)
Exclusif580 000 €Appartement4 pièces , 3 chambres
94.00 m²
Avec balcon
Gennevilliers (92)
179 000 €Appartement2 pièces , 1 chambre
43.90 m²
- Achat appartement
- Île-de-France
- Hauts-de-Seine (92)
- Puteaux (92800)
- Vente appartement 2 pièces, 54.00m², Puteaux














