Vente appartement 3 pièces, 68.42m², Puteaux
- 68.42m²
- 3 pièces
- 2 chambres
- 1 SDB
PUTEAUX/Quartier OASIS - Appartement 3 pièces 69 m² cave et parking
L'Adresse Puteaux vous propose ce nouveau 3 pièces, idéalement situé dans le quartier très recherché Oasis / Roque de Fillol, à proximité immédiate des crèches, écoles, commerces et à 5 minutes à pied du métro Esplanade de La Défense.
Au sein d'une copropriété à taille humaine de 25 lots d'habitations, sécurisée par digicode et visiophone, parfaitement entretenue avec de faibles charges, cet appartement offre un cadre de vie particulièrement agréable et calme.
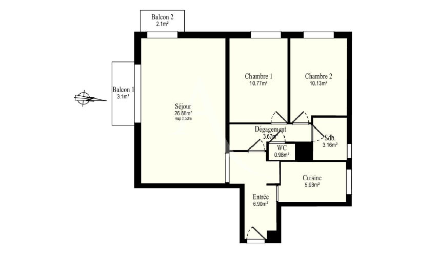
D'une superficie de 68,42 m² loi Carrez, il se compose d'une entrée desservant un séjour lumineux de 27 m², exposé Sud/Est, permettant de profiter d'une belle clarté tout au long de la journée et une cuisine séparée.
La partie nuit comprend un dégagement avec placard, deux chambres au calme, dont une avec rangements intégrés, une salle de bains et des toilettes indépendantes.
Une cave ainsi qu'un parking complètent ce bien.
Cet appartement réunit luminosité, tranquillité, emplacement recherché et faibles charges : une opportunité rare dans le secteur.
Une visite s'impose !
Les informations sur les risques auxquels ce bien est exposé sont disponibles sur le site Géorisques : www.georisques.gouv.fr
21143
43Montant estimé des dépenses annuelles d'énergie pour un usage standard :
Entre 1380.00€ et 1980.00€ par an
-
Les essentiels
- 3 pièces
- 68.42 m²
- 2 chambres
- Ascenseur : Oui
- Accès PMR : Oui
- 1 salle de bain
-
Intérieur
- Cuisine IndependanteAmenageeEquipee
- Interphone : Oui
- Digicode : Oui
- Visiophone : Oui
- 1 Cave
-
Extérieur
- 2 Balcons
- 1 Parking
-
Copropriété
- Bien en copropriété
- Charges annuelles (ALUR) : 2524.00€
- Pas de procédure en cours
-
Autres
- Etat général : A Rafraichir
- Fibre : Oui
- Etage 3
- Construit en 1979
- Immeuble de 6 étages
Vous souhaitez visiter l'Appartement
l'Adresse Puteaux
92800 Puteaux
Transaction :
01 70 21 87 31
Location :
01 70 21 87 31
Nos honoraires
- l'Adresse Puteaux
- 10000
- Nathalie ANDRIEUX
- 812808657
- Nanterre
- FR19812808657
- 4402 2015 000 001 799
- CCI de Paris Île-de-France
- GALIAN
- 200 000 €uros
- 89 rue de la Boétie 75008 PARIS
- MIEUX VIVRE ENSEMBLE - 1, impasse de Beauregard 54000 NANCY - mediation@vivons-mieux-ensemble.fr
Mentions légales
Les appartements similaires
Suresnes (92)
470 000 €Appartement3 pièces , 2 chambres
80.00 m²
Avec terrasse
Gennevilliers (92)
179 000 €Appartement2 pièces , 1 chambre
43.90 m²
Asnières-sur-Seine (92)
199 000 €Appartement1 pièce
27.75 m²
Asnières-sur-Seine (92)
240 000 €Appartement1 pièce , 1 chambre
32.71 m²
Avec balcon
Saint-Cloud (92)
Exclusif590 000 €Appartement3 pièces , 2 chambres
70.00 m²
La Garenne-Colombes (92)
435 000 €Appartement2 pièces , 1 chambre
46.10 m²
Avec jardin, terrasse
Antony (92)
Exclusif540 000 €Appartement5 pièces , 4 chambres
88.93 m²
Avec jardin, garage/box
Puteaux (92)
395 000 €Appartement3 pièces , 2 chambres
76.00 m²
- Achat appartement
- Île-de-France
- Hauts-de-Seine (92)
- Puteaux (92800)
- Vente appartement 3 pièces, 68.42m², Puteaux















