Vente appartement 3 pièces, 64.70m², Saint-Hilaire-de-Riez
- 64.70m²
- 3 pièces
- 2 chambres
- 1 SDB
APPARTEMENT NEUF Type 3 à SAINT HILAIRE DE RIEZ
L'agence l'ADRESSE SAINT GILLES CROIX DE VIE vous propose sur le secteur de la Pelle à Porteau, à proximité immédiate de Saint Gilles Croix de Vie et de l'océan, cette nouvelle résidence neuve .
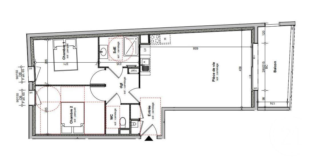
Voici un très bel appartement de standing de 64.70 m² avec Balcon + Cave + Parking + Garage
Cette résidence de qualité, se situe dans un environnement calme, résidentiel, à 800 m de la plage, et à 600 m des commerces,
L'appartement est composé d'une entrée , une pièce de vie et un wc.
Le coin nuit vous offre deux chambres et une salle d'eau (douche) .
La pièce de vie lumineuse est exposée Sud vous permettant de profiter d un généreux ensoleillement .
Vente en Etat de Futur Achèvement / Frais de Notaire réduits
Le plus : la résidence est sécurisée .
information et contact, agence l'ADRESSE SAINT GILLES CROIX DE VIE 02 51 54 10 51.
Etat des risques et pollutions
Les informations sur les risques auxquels ce bien est exposé sont disponibles sur le site Géorisques : >www.georisques.gouv.fr
Risque de pollution : Oui
Date ERP : 06/03/2023
Les informations sur les risques auxquels ce bien est exposé sont disponibles sur le site Géorisques : www.georisques.gouv.fr


-
Les essentiels
- 3 pièces
- 64.70 m²
- 2 chambres
- Ascenseur : Oui
- 1 salle d'eau
-
Intérieur
- Cuisine Nue
- Visiophone : Oui
-
Copropriété
- Bien en copropriété
- Charges annuelles (ALUR) : 0.00€
- Pas de procédure en cours
-
Autres
- Etat général : Excellent
- Rez de chaussée : Oui
- Etage 2
- Construit en 2025
- Immeuble de 2 étages
Vous souhaitez visiter l'Appartement
l'Adresse - IMMO 2000
85800 SAINT GILLES CROIX DE VIE
Transaction :
02 51 54 10 51
Location :
02 28 10 28 80
Nos honoraires
Les appartements similaires
Saint-Jean-de-Monts (85)
112 600 €Appartement1 pièce
22.36 m²
Avec balcon
Saint-Hilaire-de-Riez (85)
Exclusif159 900 €Appartement2 pièces , 1 chambre
55.00 m²
Avec jardin
Bretignolles-sur-Mer (85)
139 000 €Appartement2 pièces , 1 chambre
48.00 m²
Saint-Gilles-Croix-de-Vie (85)
Exclusif299 990 €Appartement3 pièces , 2 chambres
81.16 m²
Avec jardin
Saint-Gilles-Croix-de-Vie (85)
Exclusif327 000 €Appartement3 pièces , 2 chambres
66.00 m²
Avec balcon
Saint-Jean-de-Monts (85)
159 600 €Appartement2 pièces , 1 chambre
47.48 m²
Saint-Hilaire-de-Riez (85)
211 600 €Appartement2 pièces , 1 chambre
34.83 m²
Avec balconterrasse
Les Sables-d'Olonne (85)
92 200 €Appartement1 pièce
21.00 m²
Avec balcon
- Achat appartement
- Pays de la Loire
- Vendée (85)
- Saint-Hilaire-de-Riez (85270)
- Vente appartement 3 pièces, 64.70m², Saint-Hilaire-de-Riez



