Vente appartement 3 pièces, 62.24m², Saint-Sylvain-d'Anjou
- 62.24m²
- 3 pièces
- 2 chambres
- 1 SDB
A VENDRE Appartement de type 3 Disponible de suite en plein bourg de Saint Sylvain d'Anjou
Située au coeur du bourg de Saint-Sylvain-d'Anjou, cette résidence intimiste de 30 appartements vous séduira par son architecture sobre, élégante et contemporaine. À moins de 100 mètres de la place de la mairie et à moins de 150 mètres des commerces de proximité, elle offre un cadre de vie pratique et agréable. La résidence propose des appartements allant du 2 pièces au 4 pièces, parfaits pour répondre à vos besoins. L'arrêt de bus de la ligne 2, situé à proximité de la mairie, facilite l'accès au centre d'Angers. De plus, les écoles se trouvent à moins de 500 mètres, offrant un environnement idéal pour les familles.
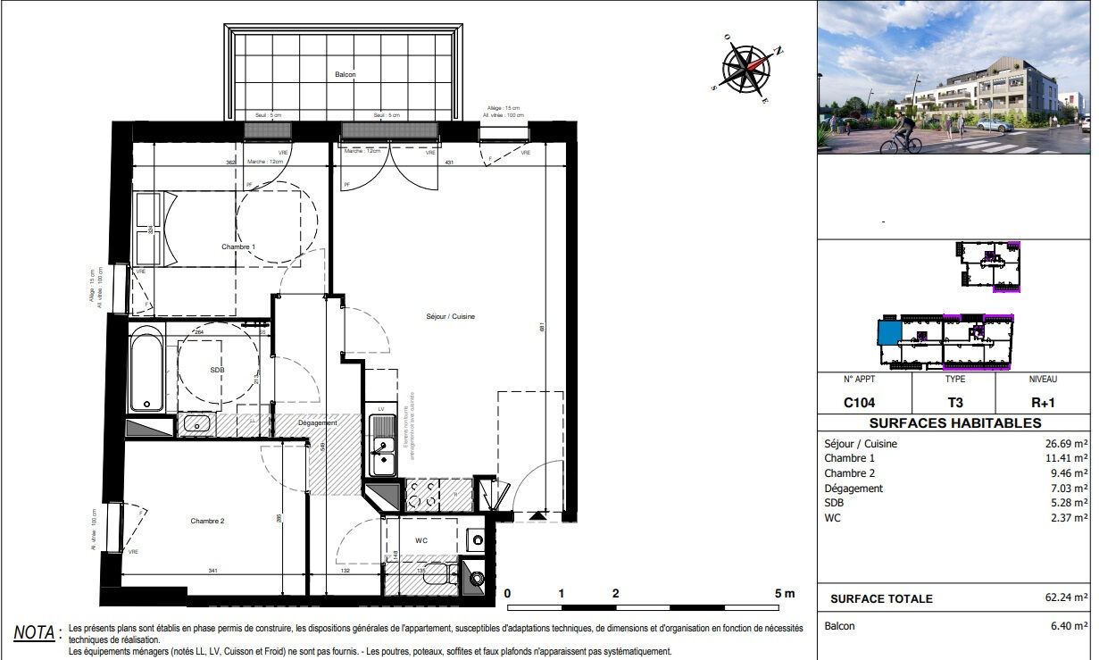
A VENDRE Type T3 neuf de 62,24 m² situé au 1er étage dans cette élégante résidence comprenant une entrée séjour cuisine de 26,69m² exposé Nord-Ouest et ouvert sur un balcon de 6,40m², deux chambres de 11,41m² et 9.46m², une salle d'eau et un WC séparé. une place de parking privative et sécurisée complètent les lieux.
Idéal investisseur Pinel ou résidence principale
Label Energie: RE2020 norme PMR (personne à mobilité réduite)
Prix: 245 000€ TTC (Frais notaire réduits 2.5%)
(Prix direct promoteur)
REF: 34134-STSYLC104-1
Informations auprès de Gwénaëlle GROU au 07 72 41 01 29 spécialiste Centre-ville d'Angers, quartiers de la Gare, la Madeleine, Doutre, Lafayette, Visitation, place du lycée, Quinconce, Saint Léonard, Jeanne d'Arc, Lac de Maine, Belle-beille, Avrillé, Saint Barthélemy, Trélazé ... pour trouver votre solution immobilière en Résidence principale ou secondaire, Défiscalisation, Pinel, LMNP, Location, Gestion immobilière.
"Les informations sur les risques auxquels ce bien est exposé sont disponibles sur le site Géorisques : www.georisques.gouv.fr"
Les informations sur les risques auxquels ce bien est exposé sont disponibles sur le site Géorisques : www.georisques.gouv.fr


-
Les essentiels
- 3 pièces
- 62.24 m²
- 2 chambres
- Ascenseur : Oui
- Accès PMR : Oui
- 1 salle de bain
-
Intérieur
- Cuisine Ouverte
- Visiophone : Oui
-
Extérieur
- 1 Parking
-
Autres
- Etat général : Excellent
- Etage 1
- Construit en 2025
- Immeuble de 2 étages
Vous souhaitez visiter l'Appartement
l'Adresse Place du Lycée
49100 ANGERS
02 41 05 63 19
Nos honoraires
- l'Adresse Place du Lycée
- 500 000€
- BERNARD Thierry
- 480 628 593 ANGERS
- CPI 4901 2017 000 018 268
- CCI MAINE ET LOIRE
- GALLIAN
- Activité Transaction : 1 000 000 € Activité Gestion immobilière 2 000 000€
- 89 rue de la Boétie - 75008 PARIS
- Nom du médiateur : L'Association Nationale des Médiateurs (ANM) Adresse postale du médiateur : 62 rue Tiquetonne 75002 PARIS Site internet du médiateur : www.anm-conso.com
Mentions légales
Les appartements similaires
Saint-Sylvain-d'Anjou (49)
249 000 €Appartement3 pièces , 2 chambres
64.60 m²
Avec balcon
Angers (49)
140 000 €Appartement2 pièces , 1 chambre
38.74 m²
Avec balcon
Les Ponts-de-Cé (49)
Exclusif162 560 €Appartement3 pièces , 2 chambres
80.00 m²
Angers (49)
302 000 €Appartement4 pièces , 3 chambres
80.91 m²
Avec balcon
Trélazé (49)
183 000 €Appartement2 pièces , 1 chambre
42.90 m²
Avec balconterrasse
Angers (49)
324 000 €Appartement3 pièces , 2 chambres
64.68 m²
Avec balcon
Angers (49)
179 900 €Appartement2 pièces , 1 chambre
38.00 m²
Avec terrasse
Verrières-en-Anjou (49)
224 900 €Appartement3 pièces , 2 chambres
62.63 m²
Avec balcon
- Achat appartement
- Pays de la Loire
- Maine-et-Loire (49)
- Saint-Sylvain-d'Anjou (49480)
- Vente appartement 3 pièces, 62.24m², Saint-Sylvain-d'Anjou





