Revenir aux résultats
Réf. de l'annonce : 13606320 / LEO
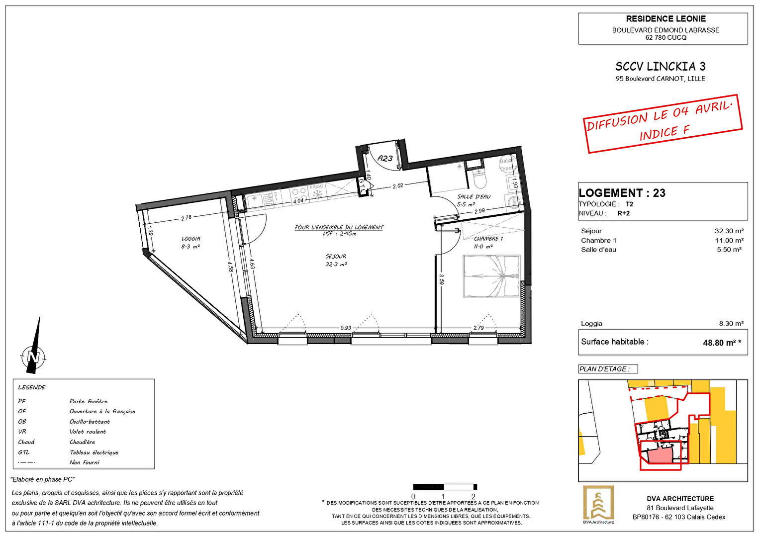
Vente appartement 2 pièces, 48.80m², Stella
Honoraires à la charge du vendeur
248 000 €
- 48.80m²
- 2 pièces
- 1 chambre
Appartement Stella 2 pièces 48.80 m²
Au coeur de Stella Plage et à proximité immédiate des commerces, Cet appartement situé au 2ème étage dispose d'une loggia de 8.3m² sud-ouest.
Il comprend: un séjour, une salle d'eau-wc et une chambre.
Local vélo.
Parking en option
Ref: LEO-23
Les informations sur les risques auxquels ce bien est exposé sont disponibles sur le site Géorisques : www.georisques.gouv.fr
Stéphane COFFRE (EI) Agent commercial - Numéro RSAC : 879787646 - Boulogne sur mer.
Bilan energetique


Caractéristiques Appartement
-
Les essentiels
- 2 pièces
- 48.80 m²
- 1 chambre
-
Autres
- Etage 2
- Immeuble de 2 étages
Vous souhaitez visiter l'Appartement
Prenez rendez-vous avec l'agence.
Agence immobilière
l'Adresse Le Touquet
l'Adresse Le Touquet
53 Rue de Moscou
62520 LE TOUQUET PARIS PLAGE
Transaction :
03 21 05 60 60
Location :
07 86 68 38 10
Nos honoraires
62520 LE TOUQUET PARIS PLAGE
Transaction :
03 21 05 60 60
Location :
07 86 68 38 10
Nos honoraires
Les appartements similaires
Le Touquet-Paris-Plage (62)
498 750 €Appartement2 pièces , 1 chambre
53.79 m²
Avec balcon
Le Touquet-Paris-Plage (62)
200 000 €Appartement1 pièce
24.83 m²
Sainte Cécile (62)
240 000 €Appartement2 pièces , 1 chambre
36.15 m²
Le Touquet-Paris-Plage (62)
1 290 000 €Appartement4 pièces , 3 chambres
92.90 m²
Avec terrassegarage/box
Le Touquet-Paris-Plage (62)
441 000 €Appartement3 pièces , 2 chambres
52.51 m²
Avec balcon
Étaples (62)
239 000 €Appartement3 pièces , 2 chambres
60.00 m²
Étaples (62)
324 000 €Appartement3 pièces , 2 chambres
74.56 m²
Sainte Cécile (62)
329 000 €Appartement3 pièces , 2 chambres
73.46 m²
Avec balcon
- Achat appartement
- Hauts-de-France
- Pas-de-Calais (62)
- Stella (62780)
- Vente appartement 2 pièces, 48.80m², Stella


