Vente appartement 3 pièces, 63.50m², Terville
- 63.50m²
- 3 pièces
- 2 chambres
- 1 SDB
T3 avec terrasse couverte (10m²) + 1 garage + 1 parking souterrain
Faites l'acquisition de ce superbe appartement T3 d'une superficie de 63,50m², loi Carrez, avec terrasse, un garage et un parking en souterrain inclus.
Notre Agence l'ADRESSE Thionville a le plaisir de commercialiser ce bien flambant neuf, aux prestations haut de gamme et aux finitions impeccables.
Situé au 2ème et dernier étage d'une résidence moderne et épurée située à Terville, tout juste achevée et prêt à être livré dès le mois de mai 2026.
Un avantage rare sur le marché : ce bien est déjà construit, visitable immédiatement et disponible sans délai.
Contrairement à un achat sur plan, aucune attente de chantier ni incertitude : vous achetez un bien concret, déjà réalisé. Un véritable produit clé en main.
+ Les points forts de cet appartement :
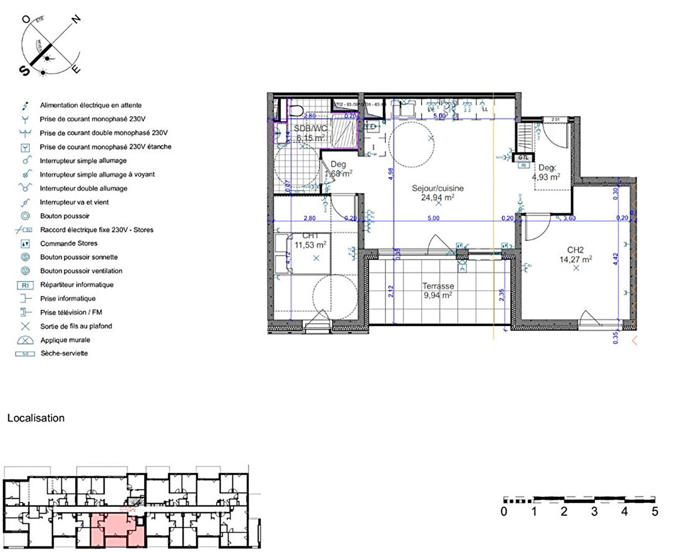
° 2 chambres avec parquet de 12m² et 14,30 m²
° Pièce de vie lumineuse avec accès à la terrasse de 10m²
° Chauffage au sol
° Volets roulants électriques
° Isolation thermique par l'extérieur (ITE)
° Ascenseur
° Visiophone
° Placard intégré à l'entrée
° Matériaux de qualité & finitions impeccables
° Adapté aux personnes mobilité réduite
° 1 garage et 1 emplacement en souterrain inclus
La cuisine ouverte sur la pièce de vie est à imaginer et à concevoir selon vos envies et votre budget. Tout est déjà prévu.
Une opportunité idéale pour créer un espace à votre image, sans compromis.
- Salle de douche avec coin WC entièrement équipée (6,15m²)
- Prestations modernes et agencement fonctionnel
Sécurité & avantages de ce bien : garantie décennale ET frais de notaire réduits. Conformité aux dernières normes énergétiques. Confort thermique, phonique et économies d'énergie.
Disponible DE SUITE - aucun délai - bien rare sur le secteur, proche de toutes commodités, écoles et crèches trilingues de la commune de Terville.
Résidence neuve tout juste achevée : ici, pas de plan, pas d'attente : vous visitez ce que vous allez habiter.
Notre PLUS-VALUE : nous vous offrons un accompagnement sur-mesure jusqu'à la remise des clés, incluant conseils d'aménagement et accès à nos partenaires cuisinistes locaux pour bénéficier de conditions préférentielles.
Ce bien vous intéresse et correspond à votre budget et à votre projet ?
Contactez-nous sans tarder pour prendre RDV pour une visite et consultation de toute sa documentation détaillée (plans, notice descriptive...)
Tél : 06.67.91.21.78 ou au 03.82.87.77.17
email : f.georges@ladresse.immo ou thionville@ladresse.immo
Les informations sur les risques auxquels ce bien est exposé sont disponibles sur le site Géorisques : www.georisques.gouv.fr pour les zones concernées.
Les informations sur les risques auxquels ce bien est exposé sont disponibles sur le site Géorisques : www.georisques.gouv.fr


-
Les essentiels
- 3 pièces
- 63.50 m²
- 2 chambres
- Ascenseur : Oui
- Accès PMR : Oui
- 1 salle de bain
-
Intérieur
- Cuisine Nue
- Gardien : Non
- Interphone : Oui
- Digicode : Oui
- Visiophone : Oui
-
Extérieur
- 2 Garages/box
-
Autres
- Etat général : Excellent
- Fibre : Oui
- Dernier étage : Oui
- Etage 2
- Construit en 2026
- Immeuble de 2 étages
Vous souhaitez visiter l'Appartement
l'Adresse Thionville
THIONVILLE
47180 TERVILLE
Transaction :
03 82 87 77 17
Location :
03 82 87 77 17
Nos honoraires
- l'Adresse Thionville
- 10.000 euros
- Florence GEORGES
- THIONVILLE 892 003 831
- THIONVILLE
- FR46892003831
- CPI57052021000000004
- CCI de Moselle
- GALIAN ASSURANCES
- 120.000 euros
- Assurance Garantie Financière de 120.000 € auprès de GALIAN à Paris sous le n° B 11065251
- VIVONS MIEUX ENSEMBLE 465 avenue de la libération 54000 NANCY
Mentions légales
Les appartements similaires
Verny (57)
Exclusif119 000 €Appartement3 pièces , 2 chambres
36.75 m²
Metz (57)
Exclusif248 000 €Appartement5 pièces , 3 chambres
100.80 m²
Terville (57)
Exclusif219 000 €Appartement3 pièces , 2 chambres
93.58 m²
Metz (57)
169 000 €Appartement5 pièces , 3 chambres
88.07 m²
Avec balcongarage/box
Terville (57)
255 000 €Appartement5 pièces , 3 chambres
130.66 m²
Avec balcongarage/box
Metz (57)
262 880 €Appartement3 pièces , 2 chambres
59.27 m²
Metz (57)
147 340 €Appartement1 pièce
27.50 m²
Metz (57)
314 680 €Appartement3 pièces , 2 chambres
66.91 m²
Avec balcon
- Achat appartement
- Grand Est
- Moselle (57)
- Terville (57180)
- Vente appartement 3 pièces, 63.50m², Terville
















