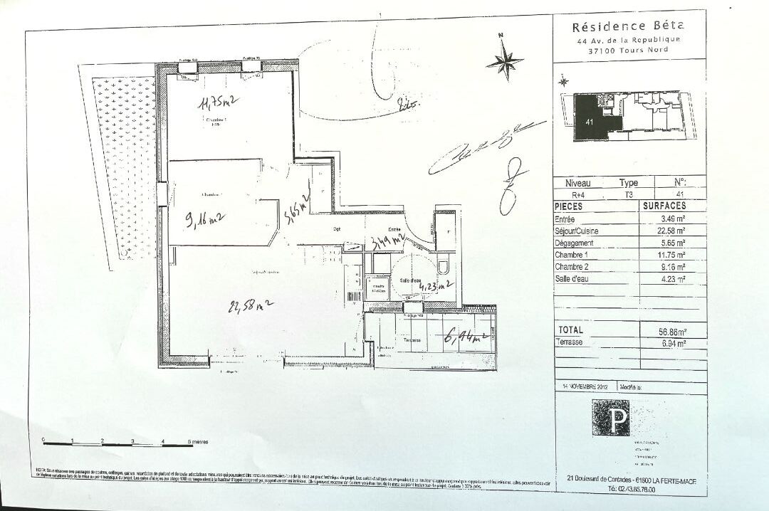
Vente appartement 3 pièces, 56.86m², Tours
- 56.86m²
- 3 pièces
- 2 chambres
- 1 SDB
Appartement dernier étage Trois Pièces + Terrasse + Garage
****EXCLUSIVITÉ****
Situé au 44 avenue de la République à Tours, au coeur du quartier prisé Christ-Roy, à proximité immédiate de la place René Coty et des commodités, cet appartement 3 pièces en dernier étage avec ascenseur offre un cadre de vie à la fois confortable et lumineux.
L'entrée, fonctionnelle, dispose de rangements intégrés et dessert une salle d'eau avec WC.
La pièce de vie constitue le véritable atout du bien : exposée plein sud, elle bénéficie d'une belle luminosité tout au long de la journée. La cuisine ouverte, moderne et bien agencée, s'intègre parfaitement à cet espace convivial.
Dans son prolongement, vous accédez à une terrasse ensoleillée, idéale pour profiter des beaux jours en toute tranquillité, à l'abri des regards.
L'espace nuit se compose d'un dégagement avec rangements desservant deux chambres confortables, adaptées aussi bien à une résidence principale qu'à un investissement locatif.
Sa situation, son étage élevé avec ascenseur et son extérieur en font un bien particulièrement recherché sur le secteur.
À découvrir rapidement
Les informations sur les risques auxquels ce bien est exposé sont disponibles sur le site Géorisques : www.georisques.gouv.fr
11523
23Montant estimé des dépenses annuelles d'énergie pour un usage standard :
Entre 600.00€ et 830.00€ par an
-
Les essentiels
- 3 pièces
- 56.86 m²
- 2 chambres
- Ascenseur : Oui
- Accès PMR : Oui
- 1 salle d'eau
-
Intérieur
- Cuisine Coin Repas
- Gardien : Non
- Visiophone : Oui
-
Extérieur
- 1 Garage/box
- 1 Parking
-
Copropriété
- Bien en copropriété
- 20 lots
- Charges annuelles (ALUR) : 1280.00€
- Pas de procédure en cours
-
Autres
- Etat général : Bon Etat
- Fibre : Oui
- Etage 4
- Construit en 2015
- Immeuble de 4 étages
Vous souhaitez visiter l'Appartement
l'Adresse Rochecorbon
37210 Rochecorbon
Transaction :
02 47 49 88 81
Location :
02 47 49 88 81
Nos honoraires
- l'Adresse Rochecorbon
- 7500€
- Laurence BUCQUET
- 850578345
- TOURS (37)
- FR85850578345
- CPI 3701 2019 000 041 144
- 12 rue Berthelot 37041 Tours CEDEX 1
- CEGC
- 110000€
- 59, avenue Pierre Mendès France 75013 PARIS
- Médiation VIVONS MIEUX ENSEMBLE 2, impasse de Beauregard 54000 NANCY mediation@vivons-mieux-ensemble.fr
Mentions légales
Les appartements similaires
La Riche (37)
593 000 €Appartement5 pièces , 4 chambres
143.97 m²
Avec balconterrasse
Vouvray (37)
176 000 €Appartement2 pièces
41.37 m²
Avec jardin
Fondettes (37)
389 000 €Appartement4 pièces , 3 chambres
83.22 m²
Avec jardin, terrasse
Fondettes (37)
874 000 €Appartement5 pièces , 4 chambres
185.61 m²
Avec jardin, terrasse
Ballan-Miré (37)
253 000 €Appartement3 pièces , 2 chambres
55.67 m²
Avec jardin
La Riche (37)
495 000 €Appartement5 pièces , 4 chambres
107.86 m²
Avec jardin, terrasse
Amboise (37)
205 000 €Appartement3 pièces , 2 chambres
73.58 m²
Avec jardin
Loches (37)
469 000 €Appartement4 pièces , 3 chambres
111.68 m²
Avec jardin
- Achat appartement
- Centre-Val de Loire
- Indre-et-Loire (37)
- Tours (37100)
- Vente appartement 3 pièces, 56.86m², Tours











