Vente demeure de prestige 13 pièces, 1028.00m², Pinsaguel
- 1028.00m²
- 13 pièces
- 7 chambres
- 5 SDB
Demeure de prestige Pinsaguel 16 pièce(s)
Domaine d'exception à vendre à Pinsaguel 31120 au bord de la Garonne :
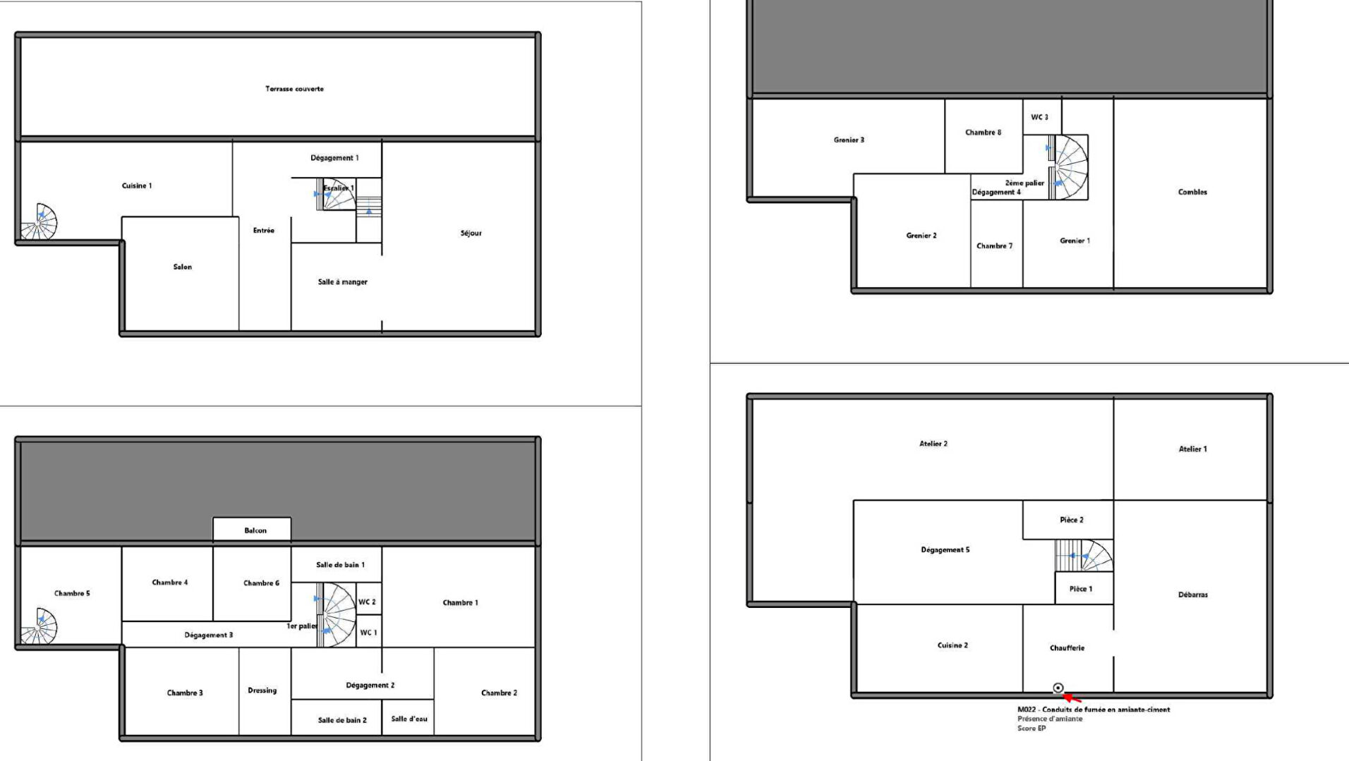
Rare sur le secteur superbe propriété de prestige située dans un environnement naturel privilégié comprenant une maison de maître élevée sur cave d'un rez de chaussée de deux étages et de greniers au dessus ainsi que de nombreux bâtiments d'exploitation et d'habitation parc jardin et terres
Surface habitable très généreuse avec grande hauteur sous plafond charme de l'ancien parquet massif carrelage d'époque cheminées en granit
Sous sol de 377,6 m2
Rez de chaussée 209,75 m2 avec vaste dégagement bureau salon lumineux de plus de 70 m2 cuisine de 43 m2 bureau de 30 m2 wc
Véranda de 134,39 m2 avec immense cheminée et vue sur le terrain arboré
Premier étage 202,55 m2 comprenant 5 chambres 3 salles de bains 2 wc et deux pièces de 34 et 23 m2
Deuxième étage 103,83 m2 avec 2 chambres wc et 3 combles aménageables
Emprise bâtie 1028 m2
Dépendances extérieures clapier 15 m2 garage 30 m2 second clapier 17 m2 surface ouverte 14,46 m2 grange 30 m2 chenil
Total dépendances 107,16 m2
Terrain exceptionnel de 248 000 m2 dont un parc très arboré avec arbres centenaires d'environ 25 000 m2
Demeure de caractère à fort potentiel gros travaux à prévoir idéale résidence de prestige projet familial ou d'exploitation.
Les informations sur les risques auxquels ce bien est exposé sont disponibles sur le site Géorisques : www.georisques.gouv.fr
Sébastien BORG (EI) Agent commercial - Numéro RSAC : 432 536 324 - TOULOUSE.


-
Les essentiels
- 13 pièces
- 1028.00 m²
- 7 chambres
- 4 salle de bains
- 1 salle d'eau
-
Extérieur
- Jardin 24800.00 m²
Vous souhaitez visiter la Demeure de Prestige
l'Adresse Claire B Immobilier
31780 CASTELGINEST
05 61 45 16 69
Nos honoraires
- l'Adresse Claire B Immobilier
- 2100
- BOUNHOURET Claire
- Toulouse B 810 120 675
- CPI31012018000036195
- CCI TOULOUSE
- MCCA 77 rue de Lourmel 75015 PARIS
Mentions légales
Les demeures de prestige similaires
- Achat demeure de prestige
- Occitanie
- Haute-Garonne (31)
- Pinsaguel (31120)
- Vente demeure de prestige 13 pièces, 1028.00m², Pinsaguel












