Vente maison 4 pièces, 130.00m², Cambo-les-Bains
- 130.00m²
- 4 pièces
- 3 chambres
- 2 SDB
Maison d'architecte 4 pièces de 130m2 habitables + garage avec vue
VISITE VIRTUELLE IMMERSIVE DISPONIBLE
À Cambo-les-Bains, découvrez une maison d'architecte idéalement située au coeur du centre-ville, dans un cadre de vie paisible, lumineux et verdoyant, à seulement quelques minutes à pied des commodités.
Implantée sur un terrain composé d'une première partie de 900 m² facile d'entretien et de 800 m² supplémentaires en pente descendant jusqu'à la Nive, cette maison individuelle construite en 1988 développe environ 130 m² et 160 m² avec garage. Elle offre une vue dégagée et dominante sur l'ensemble du Bas-Cambo : champs de piments, Nive, église, fronton, ainsi que sur les montagnes environnantes. Un environnement calme, sans vis-à-vis direct, tout en profitant d'un accès immédiat aux services du quotidien.
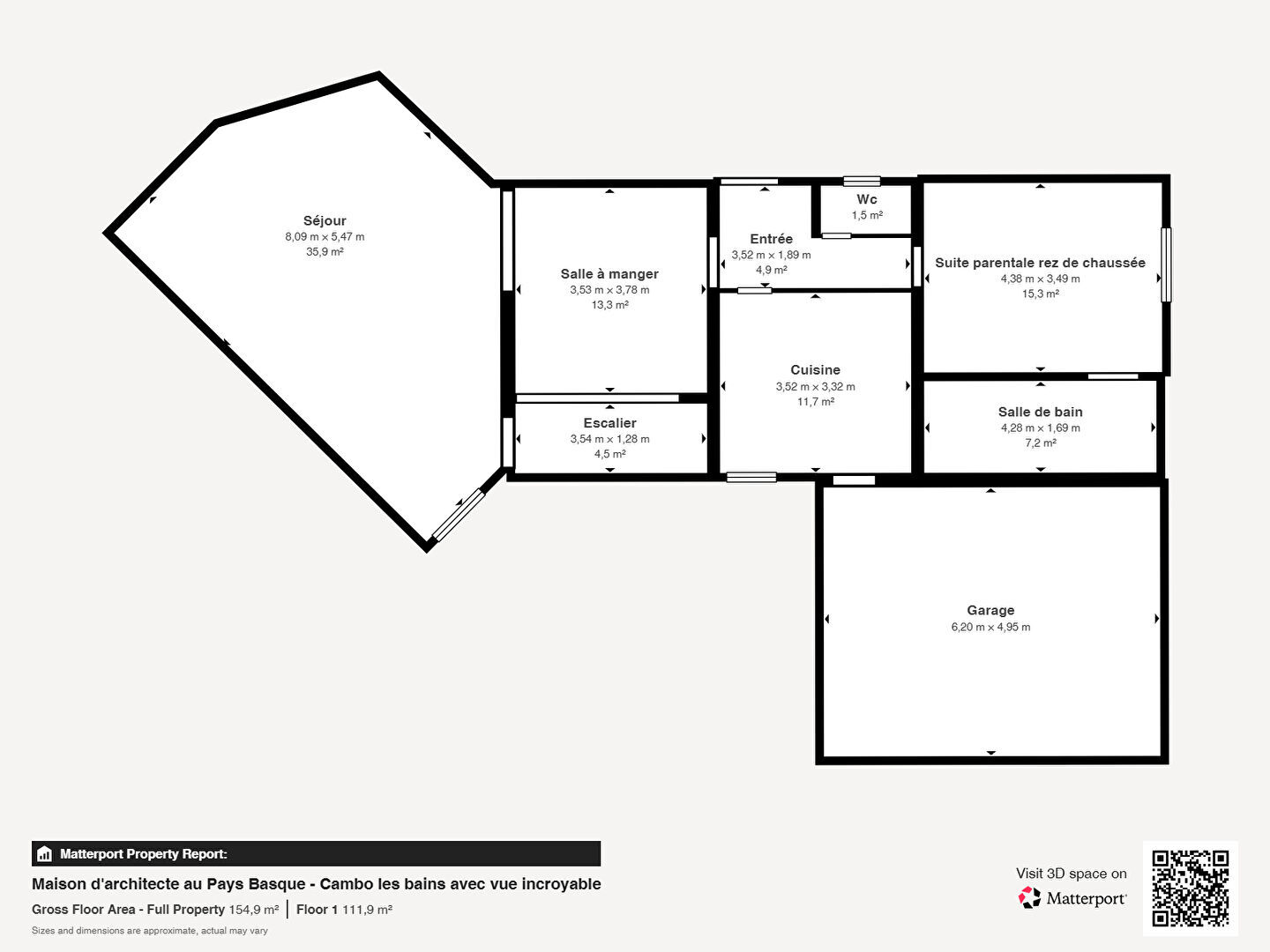
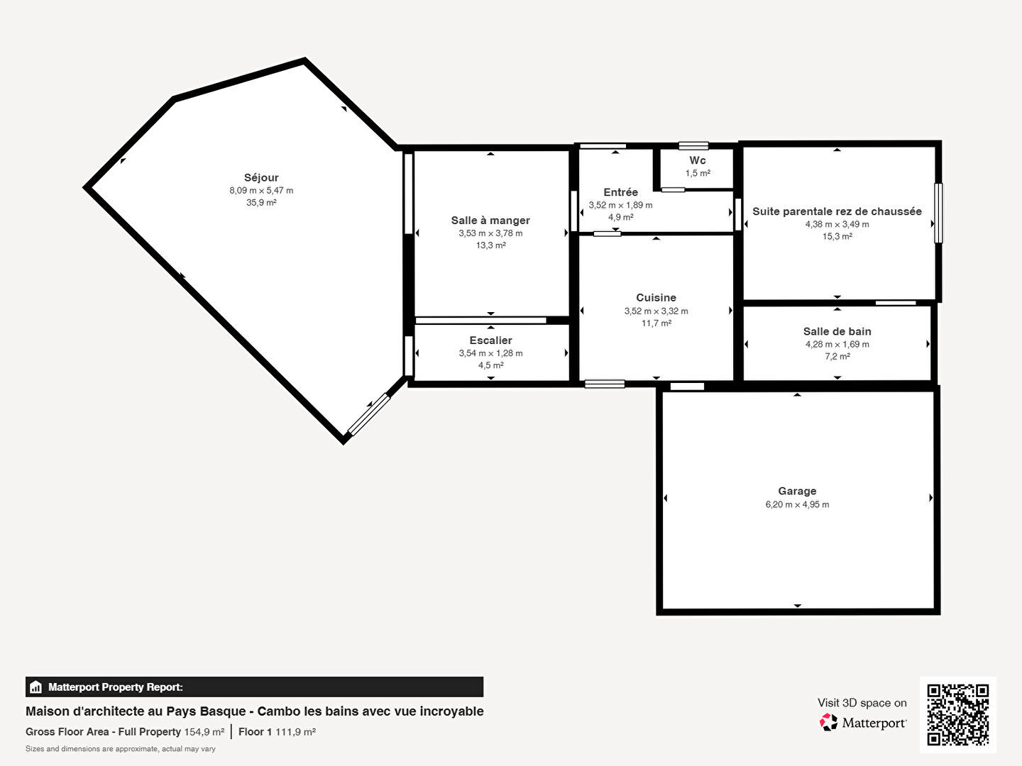
La maison propose une organisation fonctionnelle :
Au rez-de-chaussée :
une entrée, un séjour lumineux, une salle à manger ouvrant sur une terrasse exposée Est, ainsi qu'une cuisine indépendante donnant sur une terrasse Ouest, idéale pour les soirées d'été. Une chambre, une salle de bains et des WC séparés complètent le niveau.
À l'étage :
deux chambres supplémentaires et une salle d'eau avec WC composent un espace nuit intimiste, parfaitement adapté à une famille ou pour recevoir des invités.
L'extérieur offre plusieurs espaces de détente grâce à trois terrasses, permettant de profiter du soleil à tout moment de la journée.
Un garage de 30 m² en rez-de-chaussée ainsi qu'un stationnement en enrobé viennent compléter l'ensemble.
Si la maison est saine et bien entretenue, un rafraîchissement intérieur permettra de révéler tout son potentiel. Les menuiseries sont en simple vitrage bois, et le chauffage est assuré par un système bois + électrique, vous laissant la liberté de le moderniser selon vos besoins et envies. Assainissement collectif.
Localisation & accessibilité :
Une situation centrale très recherchée à Cambo-les-Bains, avec toutes les commodités accessibles à pied : commerces, écoles, transports?
Les axes vers Bayonne et la côte basque sont également rapidement accessibles.
Les atouts :
-Centre-ville accessible à pied
-Maison d'architecte avec belle luminosité
-Triple exposition et trois terrasses
-Garage de 30 m² et stationnement
-Environnement calme, verdoyant et sans vis-à-vis
Votre agence locale L'Adresse Ustaritz - Plaza Berri Immo met à votre disposition des outils innovants : photos HDR, visite virtuelle immersive, prises de vue drone, projection d'aménagement 3D pour découvrir pleinement cette maison avant même la visite sur place.
Les informations sur les risques auxquels ce bien est exposé sont disponibles sur le site Géorisques : www.georisques.gouv.fr
2349
9-
Les essentiels
- 4 pièces
- 130.00 m²
- 3 chambres
- Accès PMR : Oui
- 1 salle de bain
- 1 salle d'eau
-
Intérieur
- Cuisine Amenagée
-
Extérieur
- 3 Terrasses
- Jardin 1932.00 m²
- 1 Garage/box
- 3 Parkings
-
Autres
- Etat général : Bon Etat
- Construit en 1986
- Immeuble de 1 étage
Vous souhaitez visiter la Maison
l'Adresse Ustaritz - Pays Basque
c.c. Ursuya, local 5
64480 Ustaritz
05 24 33 74 97
Nos honoraires
- l'Adresse Ustaritz - Pays Basque
- 10000
- Clément FAUCOGNEY
- 884682279
- Bayonne
- CPI64012020000045165
- CCI Bayonne - Pays Basque 50-51 allée marines BP 215 64102 BAYONNE CEDEX
- VIVONS MIEUX ENSEMBLE (www.mediation-vivons-mieux-ensemble.fr)
Mentions légales
Les maisons similaires
Pau (64)
440 000 €Maison6 pièces , 5 chambres
136.00 m²
Avec jardin, garage/box
Ciboure (64)
549 000 €Maison6 pièces , 3 chambres
152.00 m²
Avec jardin, terrasse, garage/box
Billère (64)
474 000 €Maison9 pièces , 6 chambres
277.00 m²
Avec jardin
Ciboure (64)
Exclusif1 200 000 €Maison7 pièces , 4 chambres
177.10 m²
Avec jardin, terrasse, garage/box
Navailles-Angos (64)
349 000 €Maison7 pièces , 4 chambres
162.00 m²
Avec terrasse, garage/box
Lons (64)
375 000 €Maison6 pièces , 5 chambres
150.00 m²
Avec jardin
Rontignon (64)
884 000 €Maison20 pièces , 12 chambres
744.41 m²
Avec jardin
Saint-Pierre-d'Irube (64)
495 000 €Maison5 pièces
133.00 m²
- Achat maison
- Nouvelle-Aquitaine
- Pyrénées-Atlantiques (64)
- Cambo-les-Bains (64250)
- Vente maison 4 pièces, 130.00m², Cambo-les-Bains

















