Revenir aux résultats
				
					
				
		
												Réf. de l'annonce : 14010664
					
					Exclusif					
										Vente maison 7 pièces, 200.62m², Châteauroux
						Honoraires à la charge du vendeur | Taxe foncière : 1 335,00€					
					259 900 €
				- 200.62m²
- 7 pièces
- 4 chambres
- 2 SDB
Maison Chateauroux 8 pièce(s)
					Maison à usage d'habitation comprenant:
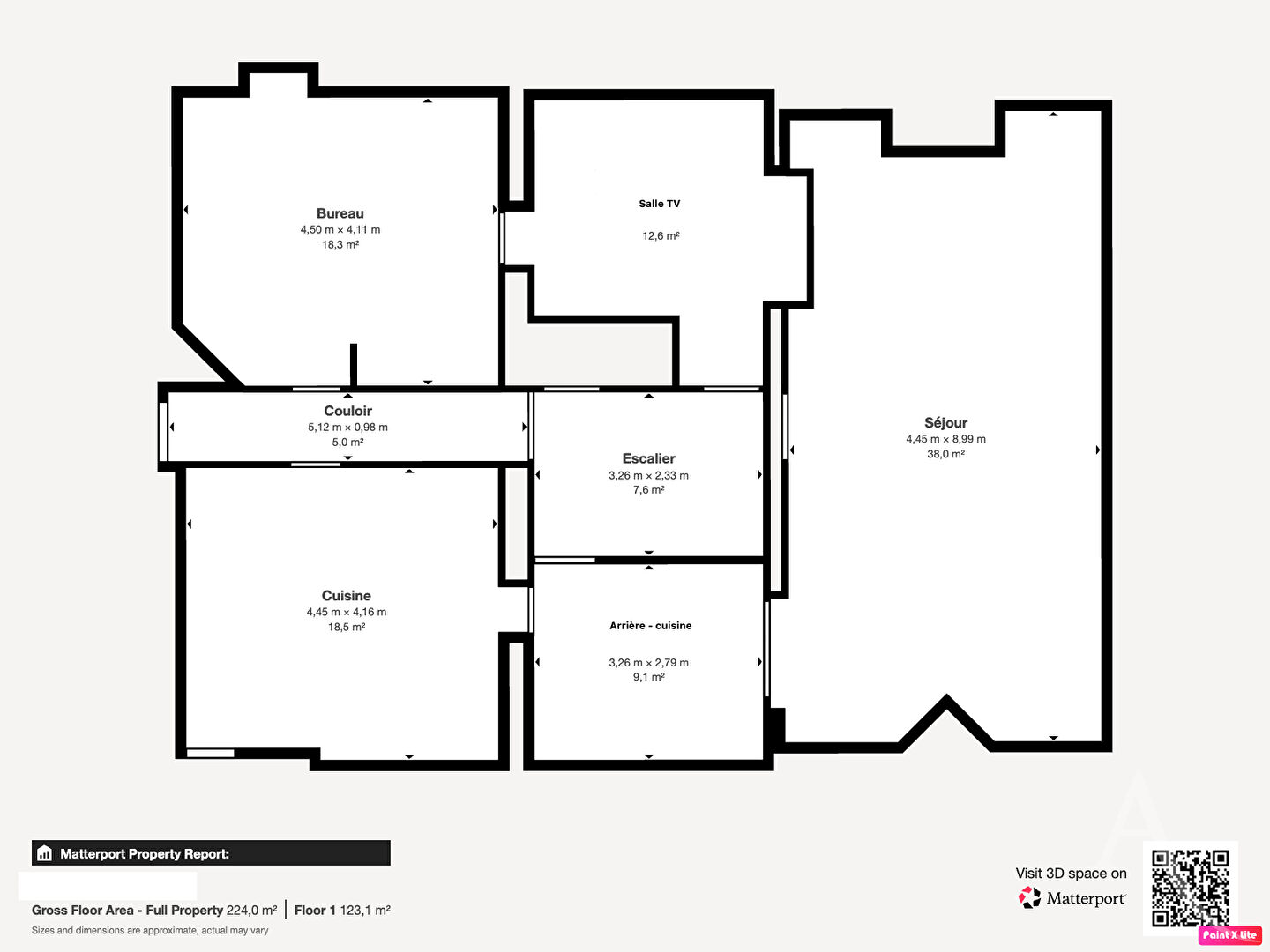
Au rez-de-chaussée : entrée, cuisine, arrière-cuisine, salle d'eau avec W.C, salle à manger/séjour de 38m2, bureau et salle TV.
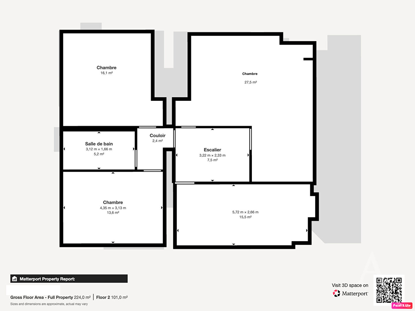
A l'étage : Quatre grandes chambres, dont une avec salle de bains, et une proposant un point d'eau et une mezzanine. Salle d'eau avec W.C et grenier.
L'ensemble avec jardin, grand garage (plusieurs véhicules possible) au fond avec porte motorisée ouvrant sur le boulevard, et grenier au dessus.				
Les informations sur les risques auxquels ce bien est exposé sont disponibles sur le site Géorisques : www.georisques.gouv.fr
Bilan energetique
					
					 17039
17039 39
39
												Diagnostic réalisé le : 11/06/2025
Montant estimé des dépenses annuelles d'énergie pour un usage standard :
Entre 3460.00€ et 4730.00€ par an
					
				Montant estimé des dépenses annuelles d'énergie pour un usage standard :
Entre 3460.00€ et 4730.00€ par an
Caractéristiques Maison
				- 
						Les essentiels- 7 pièces
- 200.62 m²
- 4 chambres
- 1 salle de bain
- 1 salle d'eau
 
- 
						Intérieur- Cuisine Amenagée
- Gardien : Non
- Interphone : Non
- 1 Cave
 
- 
						Extérieur- Jardin 385.00 m²
 
- 
						Autres- Etat général : Bon Etat
- Construit en 1900
 
Vous souhaitez visiter la Maison
Prenez rendez-vous avec l'agence.
				Agence immobilière
l'Adresse Châteauroux
					l'Adresse Châteauroux
						29 rue de la République
36000 CHATEAUROUX
Transaction :
02 54 24 23 01
												
Location :
02 54 24 23 01
												
Nos honoraires
								
									
										
								
							
							
Mentions légales
				36000 CHATEAUROUX
Transaction :
02 54 24 23 01
Location :
02 54 24 23 01
Nos honoraires
										Mentions légales
									
									- l'Adresse Châteauroux
- 10000
- Vincent CHATEIGNER
- 82463096600029
- CHATEAUROUX
- Place Gambetta 36000 CHATEAUROUX
- GALIAN
- 200000
- Rue de la Boétie 75008 PARIS
- MEDIATION MIEUX VIVRE ENSENBLE 465, Avenue de La Libération 54000 NANCY www.mediation-vivons-mieux-ensemble.fr
Mentions légales
Les maisons similaires
 Écueillé (36)	
	77 000 €Maison4 pièces , 3 chambres Écueillé (36)	
	77 000 €Maison4 pièces , 3 chambres
 93.00 m²
 
 Châteauroux (36)	
	Exclusif134 900 €Maison5 pièces , 3 chambres Châteauroux (36)	
	Exclusif134 900 €Maison5 pièces , 3 chambres
 110.00 m²
 Avec jardin
 Ardentes (36)	
	265 000 €Maison9 pièces , 5 chambres Ardentes (36)	
	265 000 €Maison9 pièces , 5 chambres
 170.47 m²
 Avec jardin
 Châteauroux (36)	
	70 000 €Maison3 pièces , 1 chambre Châteauroux (36)	
	70 000 €Maison3 pièces , 1 chambre
 63.00 m²
 Avec jardin
 Châteauroux (36)	
	Exclusif138 000 €Maison4 pièces , 3 chambres Châteauroux (36)	
	Exclusif138 000 €Maison4 pièces , 3 chambres
 100.00 m²
 Avec jardin
 La Vernelle (36)	
	262 000 €Maison5 pièces , 3 chambres La Vernelle (36)	
	262 000 €Maison5 pièces , 3 chambres
 120.00 m²
 
 Chabris (36)	
	Exclusif70 100 €Maison4 pièces , 2 chambres Chabris (36)	
	Exclusif70 100 €Maison4 pièces , 2 chambres
 65.00 m²
 
 Éguzon-Chantôme (36)	
	Exclusif139 900 €Maison3 pièces , 2 chambres Éguzon-Chantôme (36)	
	Exclusif139 900 €Maison3 pièces , 2 chambres
 140.00 m²
 Avec jardin
- Achat maison
- Centre-Val de Loire
- Indre (36)
- Châteauroux (36000)
- Vente maison 7 pièces, 200.62m², Châteauroux
 
	
















