Réf. de l'annonce : 13668413 / 1808
Vente maison 5 pièces, 86.84m², Montaigu-Vendée
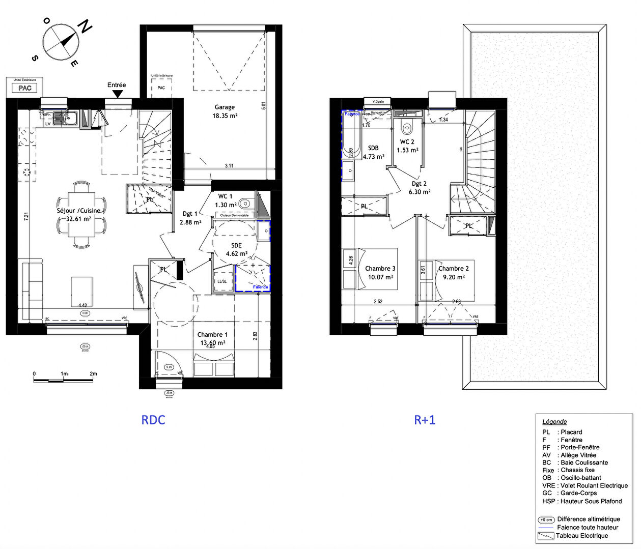
- 86.84m²
- 5 pièces
- 3 chambres
Maison Montaigu 5 pièces
NOUVEAU L'Adresse Montaigu vous propose cette maison d'environ 86 m² située dans un quartier calme du centre de Montaigu à proximité des écoles, des commerces et des grands axes vers Nantes et la Roche sur Yon. Construite en 2025, elle se compose au rez-de-chaussée d'une pièce de vie lumineuse de 32 m² avec cuisine ouverte, d'une chambre, d'une salle d'eau et d'un WC. A l'étage, vous disposerez de deux autres chambres avec placard, d'une salle de bains et d'un WC. Côté extérieur, vous profiterez d'un jardinet de 69m² exposé Sud Est et d'un garage. Maison conçue aux normes RE 2020 avec des matériaux de qualité, chauffage par aérothermie.
Frais de notaire OFFERTS !
Pour plus de renseignements, vous pouvez contacter Stéphanie SOURISSEAU au 06 61 51 74 58 - L'Adresse Sud Loire à Montaigu - 54 rue Saint-Nicolas
Les informations sur les risques auxquels ce bien est exposé sont disponibles sur le site Géorisques : www.georisques.gouv.fr
Mandat 1808STS
Les informations sur les risques auxquels ce bien est exposé sont disponibles sur le site Géorisques : www.georisques.gouv.fr
Stéphanie SOURISSEAU (EI) Agent commercial - Numéro RSAC : 853 472 512 - LA ROCHE SUR YON.


-
Les essentiels
- 5 pièces
- 86.84 m²
- 3 chambres
Vous souhaitez visiter la Maison
l'Adresse Montaigu
85600 MONTAIGU
02 49 62 17 89
Nos honoraires
- l'Adresse Montaigu
- 10 000 €
- ZAJAC Arnaud
- LA ROCHE SUR YON 831 355 961
- CPI 44012017000022016
- CCI
- GALIAN
- 120 000 €
Mentions légales
Nous tenons à vous informer que l'annonce immobilière que vous avez consultée n'est malheureusement plus disponible pour les visites.
Nous comprenons que cela puisse être décevant, mais nous vous encourageons à continuer à explorer nos autres annonces disponibles. Notre équipe est à votre disposition pour vous aider à trouver la propriété qui correspond à vos besoins et à votre budget.
N'hésitez pas à nous contacter pour toute question ou pour planifier des visites pour d'autres biens. Nous sommes déterminés à vous accompagner dans votre recherche et à vous aider à trouver votre nouveau chez-vous.
Merci pour votre compréhension et votre intérêt.
Les maisons similaires
Saint-Gilles-Croix-de-Vie (85)
Exclusif449 990 €Maison4 pièces , 2 chambres
67.00 m²
Angles (85)
267 500 €Maison5 pièces , 3 chambres
105.00 m²
Avec jardin
Bretignolles-sur-Mer (85)
343 000 €Maison4 pièces , 2 chambres
85.00 m²
Avec terrassegarage/box
L'Île-d'Elle (85)
Exclusif97 900 €Maison4 pièces , 2 chambres
64.00 m²
Avec jardin
Bretignolles-sur-Mer (85)
Exclusif349 000 €Maison4 pièces , 3 chambres
112.00 m²
Avec garage/box
Barbâtre (85)
Exclusif227 400 €Maison5 pièces , 2 chambres
38.65 m²
Saint-Hilaire-la-Forêt (85)
Exclusif87 800 €Maison2 pièces , 1 chambre
38.00 m²
Avec terrasse
Saint-Jean-de-Monts (85)
149 200 €Maison2 pièces , 1 chambre
29.23 m²
- Achat maison
- Pays de la Loire
- Vendée (85)
- Montaigu-Vendée (85600)
- Vente maison 5 pièces, 86.84m², Montaigu-Vendée








