Vente maison 4 pièces, 99.00m², Muret
- 99.00m²
- 4 pièces
- 3 chambres
- 1 SDB
Maison Plain pied - 3 chambres - 100 m2 sur MURET
A découvrir sans tarder, maison de plain-pied sur Muret dans un quartier recherché.
Située dans un quartier pavillonnaire calme et agréable de Muret, cette maison offre un beau potentiel d'aménagement et un cadre de vie idéal pour une famille.
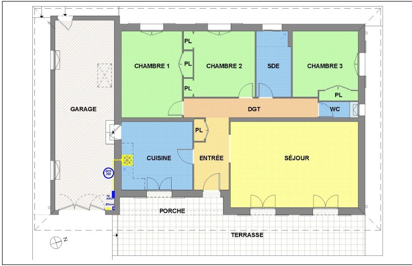
Elle se compose d'une entrée avec placard desservant d'un côté un salon lumineux et de l'autre la cuisine séparée et aménagée avec accès sur le garage pour 2 voitures d'environ 29m².
La partie nuit, située sur le même niveau, comprend :
3 chambres confortables avec placard, de 11m² à près de 14 m², une salle d'eau familiale avec douche italienne et double vasque et des W.C indépendants.
À l'extérieur, vous profiterez d'un jardin entretenu de 751 m² avec abris de jardin.
Photos supplémentaires et vidéo sur demande.
Contactez L'Adresse immobilier Muret au O5 32 O9 66 5O.
Les informations sur les risques auxquels ce bien est exposé sont disponibles sur le site Géorisques : www.georisques.gouv.fr
2498
8Montant estimé des dépenses annuelles d'énergie pour un usage standard :
Entre 1920.00€ et 2640.00€ par an
-
Les essentiels
- 4 pièces
- 99.00 m²
- 3 chambres
- 1 salle d'eau
-
Intérieur
- Cuisine Equipee
-
Extérieur
- Jardin 751.00 m²
-
Autres
- Construit en 1975
Vous souhaitez visiter la Maison
L'Adresse immobilier Muret
31600 Muret
Transaction :
05 32 09 66 50
Location :
05 32 09 66 50
Nos honoraires
- L'Adresse immobilier Muret
- 8000
- Emilie BORIN
- 838557965
- TOULOUSE
- FR53838557965
- CPI31012018000029501
- 2 RUE ALSACE LORRAINE 31000 TOULOUSE
- SOCAF
- 110000
- 26 AVENUE DE SUFFREN 75015 PARIS
- MCCA - médiation 77 rue Lourmel 75 015 Paris www.mcca-mediateur.fr
Mentions légales
Les maisons similaires
Vacquiers (31)
259 000 €Maison6 pièces , 4 chambres
135.00 m²
Avec jardin, terrasse
Bessières (31)
Exclusif244 000 €Maison6 pièces , 4 chambres
160.00 m²
Avec jardin, terrasse
Plaisance-du-Touch (31)
299 000 €Maison3 pièces , 2 chambres
96.00 m²
Avec jardin, terrasse, garage/box
Castelginest (31)
Exclusif330 000 €Maison4 pièces , 3 chambres
105.00 m²
Castelginest (31)
Exclusif346 000 €Maison6 pièces , 5 chambres
169.00 m²
Avec jardin
Lapeyrouse-Fossat (31)
327 000 €Maison6 pièces , 5 chambres
136.00 m²
Avec jardin, terrasse
Castelginest (31)
719 000 €Maison7 pièces , 4 chambres
253.00 m²
Avec jardin, garage/box
Launaguet (31)
440 500 €Maison4 pièces , 3 chambres
122.19 m²
Avec jardin
- Achat maison
- Occitanie
- Haute-Garonne (31)
- Muret (31600)
- Vente maison 4 pièces, 99.00m², Muret
















