Vente maison 6 pièces, 131.94m², Narbonne
- 131.94m²
- 6 pièces
- 3 chambres
- 2 SDB
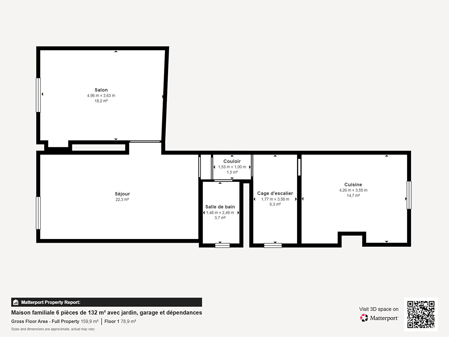
Maison familiale 6 pièces de 132 m² avec jardin, garage et dépendances
Située sur la commune de Narbonne, cette spacieuse maison de 132 m² saura vous séduire par ses beaux volumes et son fort potentiel.
Au rez-de-chaussée, vous découvrirez une cuisine indépendante, un salon lumineux, une salle à manger offrant des espaces distincts pour le quotidien, ainsi qu'un WC indépendant.
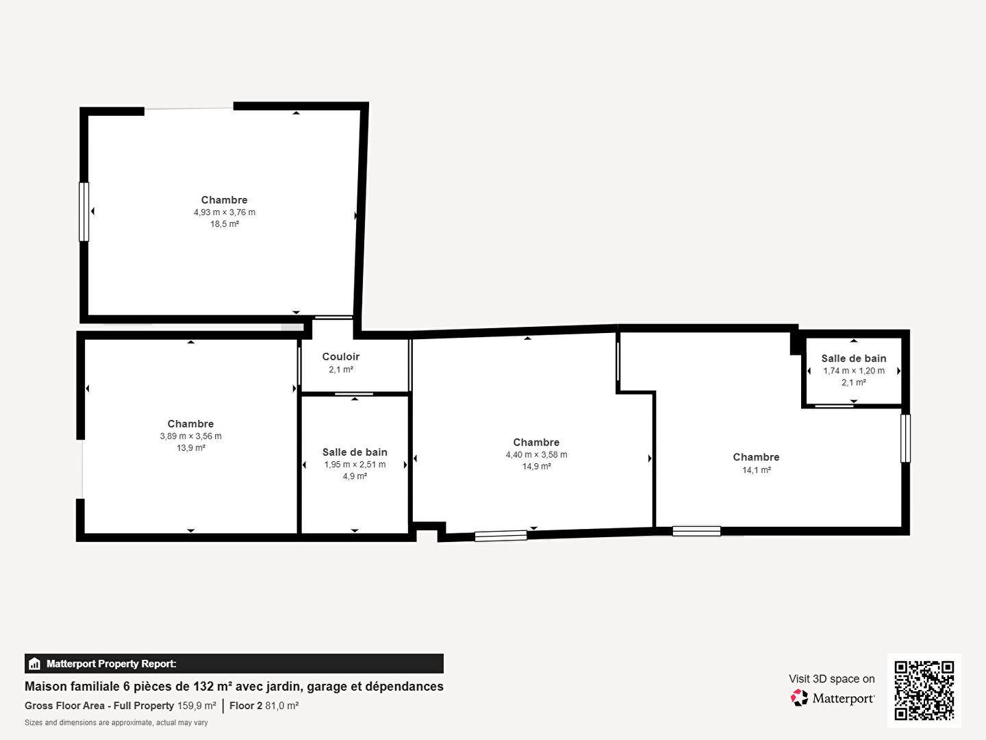
À l'étage, l'espace nuit se compose de trois chambres, dont une agréable suite parentale. Un coin bureau, idéal pour le télétravail, ainsi qu'une salle d'eau avec WC complètent ce niveau.
Implantée sur une parcelle de plus de 800 m², la propriété dispose également de deux dépendances pratiques et d'une vaste grange de plus de 57 m2 , offrant de nombreuses possibilités de rangement et de stationnement.
Un rafraîchissement intérieur en rez-de-chaussée est à prévoir afin de moderniser l'ensemble et de révéler tout le potentiel de cette maison, selon vos envies et votre projet.
Un bien idéal pour une résidence principale, secondaire ou un projet de vie au calme, dans un cadre paisible et verdoyant.
Les informations sur les risques auxquels ce bien est exposé sont disponibles sur le site Géorisques : www.georisques.gouv.fr
25410
10-
Les essentiels
- 6 pièces
- 131.94 m²
- 3 chambres
- 2 salles d'eau
-
Intérieur
- Cuisine Indépendante meublée
- Gardien : Non
- Interphone : Non
-
Extérieur
- Terrain 830.00 m²
- 1 Garage/box
-
Autres
- Etat général : A Rafraichir
- Immeuble de 1 étage
Vous souhaitez visiter la Maison
l'Adresse Narbonne
11100 NARBONNE
04 68 75 09 90
Nos honoraires
- l'Adresse Narbonne
- 1 500 €
- ACQUIER Philippe
- Narbonne B 838 604 759
- CPI 11022018000027849
- CCI de NARBONNE
Mentions légales
Les maisons similaires
La Serpent (11)
Exclusif64 900 €Maison6 pièces , 5 chambres
268.50 m²
Castelnaudary (11)
Exclusif80 000 €Maison4 pièces , 2 chambres
115.85 m²
Avec terrasse
Limoux (11)
Exclusif179 900 €Maison4 pièces , 3 chambres
114.77 m²
Avec jardin
Portel-des-Corbières (11)
Exclusif124 990 €Maison3 pièces , 2 chambres
51.13 m²
Avec jardin, terrasse
Quillan (11)
164 900 €Maison9 pièces , 7 chambres
221.27 m²
Avec jardin
Peyriac-Minervois (11)
Exclusif269 500 €Maison5 pièces , 4 chambres
123.00 m²
Avec jardin, terrasse, garage/box
Villegailhenc (11)
Exclusif129 900 €Maison3 pièces , 2 chambres
73.00 m²
Avec jardin, garage/box
Carcassonne (11)
Exclusif119 900 €Maison6 pièces , 4 chambres
108.00 m²
Avec jardin, garage/box
- Achat maison
- Occitanie
- Aude (11)
- Narbonne (11100)
- Vente maison 6 pièces, 131.94m², Narbonne










