Vente maison 6 pièces, 107.00m², Pont-de-l'Isère
- 107.00m²
- 6 pièces
- 4 chambres
- 2 SDB
Maison moderne de 107 m² 4 chambres dont suite parentale
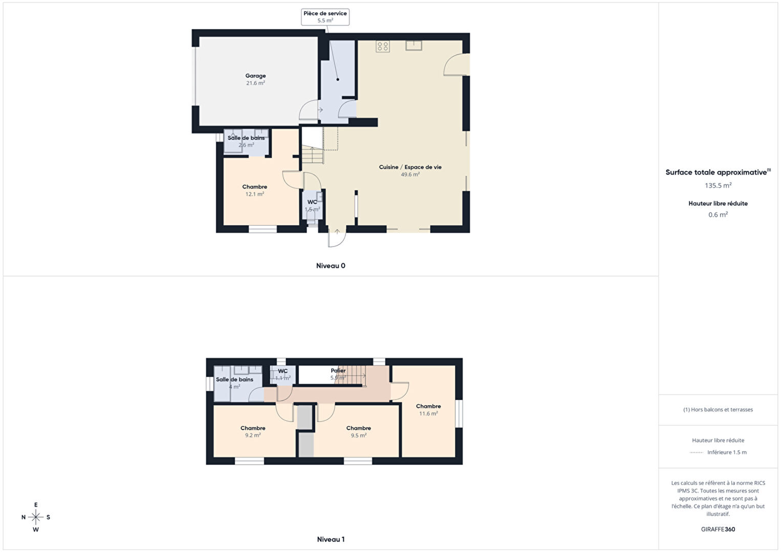
En exclusivité. Dans un environnement résidentiel, découvrez cette maison individuelle à toit plat, d'une surface habitable d'environ 107 m², édifiée sur une parcelle de 467 m².
Dès l'entrée, vous serez séduits par une vaste pièce de vie , lumineuse avec cuisine équipée et aménagée. Cet espace de vie convivial constitue le coeur de la maison et s'ouvre naturellement vers l'extérieur.
Vous découvrirez également une suite parentale avec salle d'eau et dressing, permettant une vie de plain-pied particulièrement appréciable.
À l'étage, l'espace nuit se compose de trois chambres lumineuses, d'une salle de bains ainsi que d'un WC indépendant.
La maison offre des prestations modernes assurant un excellent confort de vie : pompe à chaleur air/eau, plancher chauffant, système de rafraîchissement intégré et excellente performance énergétique . Plusieurs équipements sont encore couverts par la garantie décennale, apportant sérénité aux futurs acquéreurs.
Un garage et une buanderie complètent ce bien.
À l'extérieur, vous profiterez du terrain de 467 m², agréable et facile à entretenir, avec possibilité d'aménager un bel espace de vie une piscine.
Possibilité d'acquisition du mobilier en tout ou partie selon le projet des acquéreurs.
Une maison moderne, fonctionnelle , offrant des prestations qualitatives et économe en énergie, idéale pour une famille recherchant un bien récent, sans travaux.
VISITE VIRTUELLE SUR DEMANDE.
Envie de programmer une visite sur ce bien? Contactez Isabelle LEFAURE au 06.87.68.66.24 / 0687686624
Les informations sur les risques auxquels ce bien est exposé sont disponibles sur le site Géorisques : www.georisques.gouv.fr
Les informations sur les risques auxquels ce bien est exposé sont disponibles sur le site Géorisques : www.georisques.gouv.fr
Isabelle LEFAURE (EI) Agent commercial - Numéro RSAC : 903 710 739 - Aubenas.
401
1Montant estimé des dépenses annuelles d'énergie pour un usage standard :
Entre 650.00€ et 950.00€ par an
-
Les essentiels
- 6 pièces
- 107.00 m²
- 4 chambres
- 1 salle de bain
- 1 salle d'eau
-
Intérieur
- Cuisine Ouverte Aménagée Equipée
Vous souhaitez visiter la Maison
l'Adresse TOURNON SUR RHONE
07300 TOURNON SUR RHONE
09 60 37 41 12
Nos honoraires
- l'Adresse TOURNON SUR RHONE
- 1000
- Laurent Grazioso
- AUBENAS
- FR20932751647
- CPI077022025000000003
- CCI de L'Ardèche -140 chemin de Saint-Clair - 07000 PRIVAS
- VERSPIEREN
- 120 000€
- 44 av G Pompidou 92300 LEVALLOIS
- Vivons Mieux ensemble - 465 avenue de la Libération - 54000 NANCY
Mentions légales
Les maisons similaires
Peyrins (26)
599 000 €Maison8 pièces , 6 chambres
264.55 m²
Avec jardin, terrasse, garage/box
Granges-les-Beaumont (26)
270 000 €Maison5 pièces , 3 chambres
86.00 m²
Avec jardin
Malissard (26)
Exclusif399 000 €Maison5 pièces , 3 chambres
106.00 m²
Avec jardin, garage/box
Cléon-d'Andran (26)
339 000 €Maison6 pièces , 3 chambres
146.00 m²
Tain-l'Hermitage (26)
245 000 €Maison6 pièces , 4 chambres
125.01 m²
Avec jardin
Romans-sur-Isère (26)
480 000 €Maison8 pièces , 6 chambres
220.00 m²
Avec jardin
Bourg-lès-Valence (26)
578 000 €Maison6 pièces , 3 chambres
168.18 m²
Avec jardin
Romans-sur-Isère (26)
428 000 €Maison5 pièces , 3 chambres
136.00 m²
Avec jardin
- Achat maison
- Auvergne-Rhône-Alpes
- Drôme (26)
- Pont-de-l'Isère (26600)
- Vente maison 6 pièces, 107.00m², Pont-de-l'Isère












