Revenir aux résultats
Réf. de l'annonce : 13736630
Vente maison 2 pièces, 39.56m², Saint-Jean-de-Monts
164 800 €
- 39.56m²
- 2 pièces
- 1 chambre
- 1 SDB
Votre future maison à Saint Jean de Monts
SAINT JEAN DE MONTS - Vous avez un projet de construction ?
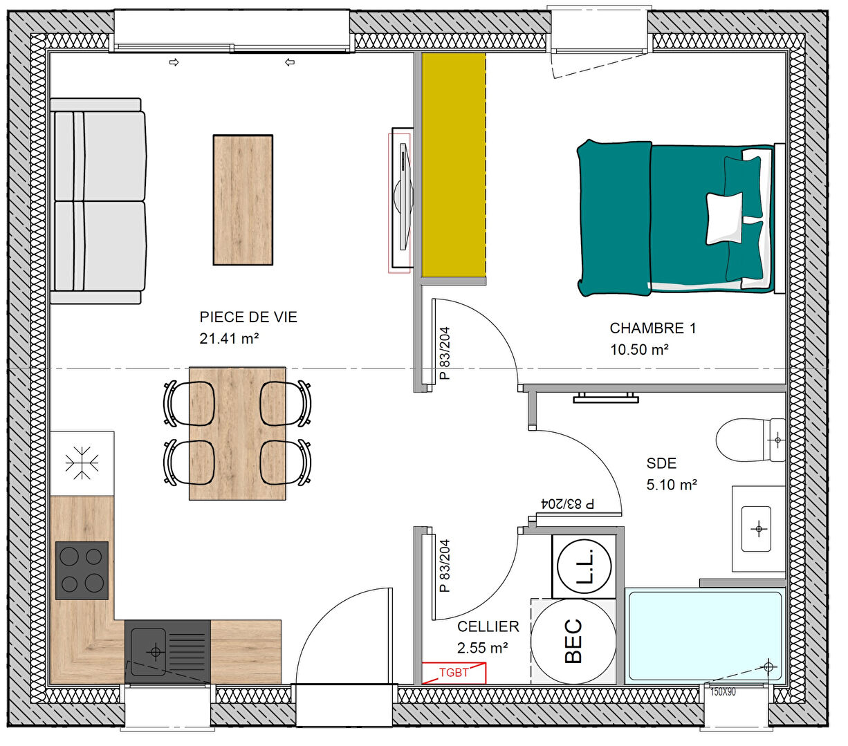
Quartier d'Orouët, dans un petit lotissement de 5 parcelles. Nous vous proposons cette maison neuve, de Type 2 d'environ 40 m². Composée d'une pièce de vie, un cellier, une chambre, une salle d'eau avec wc, sur un terrain de 450 m².
Sous réserve de l'étude de sol.
Plans disponibles sur demande.
Réf.8950-T2
Pour toute information complémentaire ou visite, contactez-nous au 02.28.12.02.02 ou par mail stjean67@ladresse.com
Les informations sur les risques auxquels ce bien est exposé sont disponibles sur le site Géorisques : www.georisques.gouv.fr
Bilan energetique


Caractéristiques Maison
-
Les essentiels
- 2 pièces
- 39.56 m²
- 1 chambre
- 1 salle d'eau
Vous souhaitez visiter la Maison
Prenez rendez-vous avec l'agence.
Agence immobilière
l'Adresse AGENCE DE L'ESPLANADE
l'Adresse AGENCE DE L'ESPLANADE
67, Esplanade de la Mer
85160 Saint Jean de Monts
02 28 12 02 02
Nos honoraires
Mentions légales
85160 Saint Jean de Monts
02 28 12 02 02
Nos honoraires
Mentions légales
- l'Adresse AGENCE DE L'ESPLANADE
- 10 000 €
- I BM
- LA ROCHE SUR YON 523385078
- CPI 8501 2018 000 032 181
- la CCI de Vendée
- MCCA - 77 rue de Lournel 75015 PARIS - servicemediation@mcca-mediation.fr - http://www.mcca-mediation.fr
Mentions légales
Les maisons similaires
Landevieille (85)
275 000 €Maison8 pièces , 4 chambres
124.04 m²
Saint-Gilles-Croix-de-Vie (85)
Exclusif245 800 €Maison3 pièces , 2 chambres
64.00 m²
Avec jardin, terrasse
Les Sables-d'Olonne (85)
213 000 €Maison2 pièces , 1 chambre
41.00 m²
Avec jardin
Longeville-sur-Mer (85)
487 900 €Maison6 pièces , 4 chambres
114.00 m²
Avec jardin
Saint-Jean-de-Monts (85)
330 000 €Maison4 pièces , 3 chambres
99.11 m²
Avec jardin, garage/box
Palluau (85)
Exclusif265 000 €Maison5 pièces , 4 chambres
102.00 m²
Avec jardin
Saint-Jean-de-Monts (85)
217 560 €Maison3 pièces , 2 chambres
67.53 m²
Avec garage/box
Nalliers (85)
199 000 €Maison4 pièces , 3 chambres
87.00 m²
Avec jardin
- Achat maison
- Pays de la Loire
- Vendée (85)
- Saint-Jean-de-Monts (85160)
- Vente maison 2 pièces, 39.56m², Saint-Jean-de-Monts


