Location local commercial 4 pièces, 77.50m², Toulouse
- 77.50m²
- 4 pièces
Toulouse secteur Guilheméry Local professionnel de 77 m2.
Toulouse, dans le secteur très prisé de Guilheméry, à 2 pas de la place Dupuy, proche des transports et des commerces, votre agence L'Adresse Immobilier Toulouse Côte Pavée et Pont des Demoiselles vous propose en exclusivité ce local professionnel de 77 m2. Rare dans le secteur.
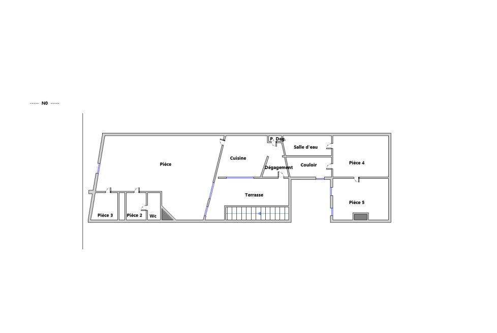
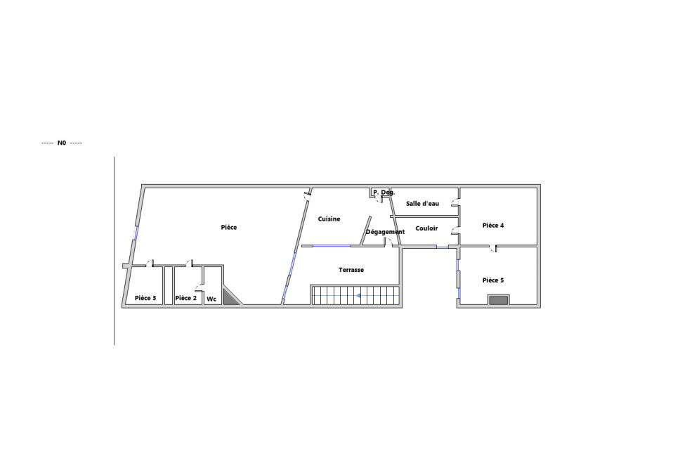
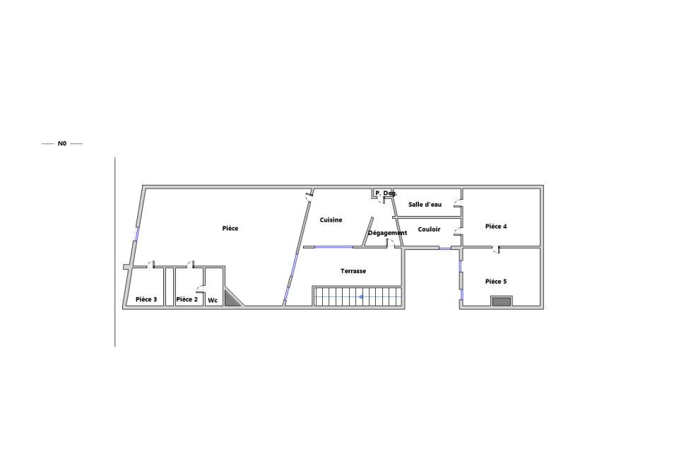
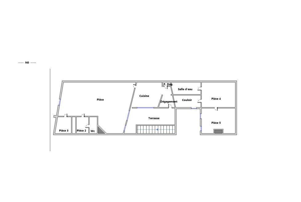
Ce local se trouve au 1er étage d'une petite copropriété de 3 lots occupés que par des professionnels.
Il est composé de 3 pièces dont une de plus de 32 m2, avec une cuisine, une salle d'eau, un wc et une terrasse.
Ce local a été entièrement rénové et peu accueillir toutes professions libérales.
N'hésitez pas à nous contacter au 0661647633.
Les informations sur les risques auxquels ce bien est exposé sont disponibles sur le site Géorisques : www.georisques.gouv.fr


-
Les essentiels
- 4 pièces
- 77.50 m²
-
Intérieur
- Cuisine Indépendante meublée
- Interphone : Oui
-
Copropriété
- Bien en copropriété
- 3 lots
-
Autres
- Etat général : Bon Etat
- Fibre : Oui
- Etage 1
- Immeuble de 1 étage
Vous souhaitez visiter le Local commercial
l'Adresse Toulouse Pont des Demoiselles
31400 Toulouse
Transaction :
05 61 24 85 55
Location :
05 61 24 85 55
Nos honoraires
- l'Adresse Toulouse Pont des Demoiselles
- 2 000 €
- Sandrine BLAZQUEZ-ATHIAS
- 889 115 143
- Toulouse
- FR59889115143
- CPI 3101 2021 000 000 005
- 2 rue Alsace Lorraine, 31000 Toulouse
- Galian
- 120 000,00 €
- 89 Rue de la Boétie 75008 PARIS
- Médiateur du Commerce et Associé FCA 77, rue de Lourmel 75015 PARIS Site : www.mca-médiation.fr
Mentions légales
Les locaux commerciaux similaires
Fonsorbes (31)
1 465 € / mois ccLocal commercial89.80 m²
Labège (31)
1 062 € / mois ccLocal commercial73.00 m²
Cugnaux (31)
718 € / mois ccLocal commercial39.00 m²
Gratentour (31)
Exclusif1 280 € / mois ccLocal commercial2 pièces
93.00 m²
Cornebarrieu (31)
1 298 € / mois ccLocal commercial136.00 m²
Colomiers (31)
1 660 € / mois ccLocal commercial2 pièces
56.70 m²
Castelginest (31)
1 280 € / mois ccLocal commercial78.00 m²
Muret (31)
1 000 € / mois ccLocal commercial239.00 m²
- Location local commercial
- Occitanie
- Haute-Garonne (31)
- Toulouse (31500)
- Location local commercial 4 pièces, 77.50m², Toulouse












