Vente appartement 2 pièces, 48.00m², Castelnau-le-Lez
- 48.00m²
- 2 pièces
- 1 chambre
- 1 SDB
CASTELNAU LE LEZ ? APPARTEMENT 2 PIÈCES 48,5 m² ? LOGGIA 11 m² ? PARKING BOXABLE ? RÉSIDENCE 2007.
CASTELNAU LE LEZ ? APPARTEMENT 2 PIÈCES 48,5 m² ? LOGGIA 11 m² ? PARKING BOXABLE ? RÉSIDENCE 2007.
Idéalement situé, à proximité immédiate des COMMERCES et du TRAMWAY arrêt Charles de Gaulle.
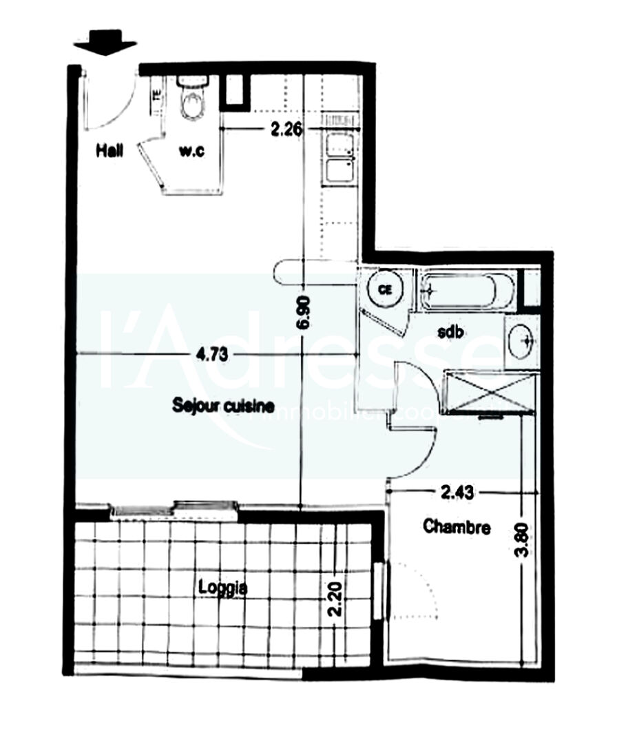
Découvrez ce bel appartement deux pièces de 48,5 m² au sein d'une résidence avec ascenseur.
Situé au 2? étage, ce bien lumineux et parfaitement agencé se compose :
- d'une entrée
- d'un séjour agréable ouvrant sur une loggia exposée OUEST, idéale pour profiter de la lumière naturelle
- d'une cuisine équipée
- d'une chambre avec placard de rangement
- d'un WC séparé
- d'une salle de bain avec baignoire et rangements.
Un parking boxable en sous-sol complète ce bien.
La résidence vous fera aussi profiter d'un local à vélos.
Un appartement qui allie confort, fonctionnalité et emplacement recherché à Castelnau le Lez, idéal pour une résidence principale ou un investissement.
* VISITE IMMERSIVE 360° DISPONIBLE *
Les informations sur les risques auxquels ce bien est exposé sont disponibles sur le site Géorisques : www.georisques.gouv.fr


-
Les essentiels
- 2 pièces
- 48.00 m²
- 1 chambre
- Ascenseur : Oui
- 1 salle de bain
-
Intérieur
- Cuisine Américaine Amenagée
- Interphone : Oui
-
Extérieur
- 1 Parking
-
Copropriété
- Bien en copropriété
- 233 lots
- Charges annuelles (ALUR) : 1258.00€
- Pas de procédure en cours
-
Autres
- Etat général : Bon Etat
- Fibre : Oui
- Etage 2
- Construit en 2007
- Immeuble de 7 étages
Vous souhaitez visiter l'Appartement
l'Adresse Lattes - Agence et vous
34970 Lattes
09 51 87 34 34
Nos honoraires
- l'Adresse Lattes - Agence et vous
- 10 000
- Christelle & Gilles BONIL
- 843 903 915
- Montpellier
- FR 20 843 903 915
- CPI 3402 2019 000 040 044
- CCI DE L'HÉRAULT Av. Jacqueline Auriol, 34130 Mauguio
- CEGC
- 110 000
- 16, rue Hoche Tour Kupka B TSA 39999 92919 LA DEFENSE CEDEX.
Mentions légales
Les appartements similaires
Sète (34)
213 000 €Appartement3 pièces , 2 chambres
66.00 m²
Avec terrasse
Palavas-les-Flots (34)
159 900 €Appartement1 pièce
29.50 m²
Avec terrasse
Montpellier (34)
390 000 €Appartement4 pièces , 3 chambres
91.00 m²
Palavas-les-Flots (34)
199 900 €Appartement2 pièces , 1 chambre
38.00 m²
Sète (34)
244 500 €Appartement4 pièces , 3 chambres
84.00 m²
Avec balconterrasse
Mauguio (34)
65 500 €Appartement1 pièce
24.00 m²
Clapiers (34)
180 000 €Appartement2 pièces , 1 chambre
45.00 m²
Saint-Clément-de-Rivière (34)
770 000 €Appartement4 pièces , 3 chambres
4.00 m²
- Achat appartement
- Occitanie
- Hérault (34)
- Castelnau-le-Lez (34170)
- Vente appartement 2 pièces, 48.00m², Castelnau-le-Lez







