Vente appartement 3 pièces, 72.38m², Lyon 07
- 72.38m²
- 3 pièces
- 2 chambres
- 1 SDB
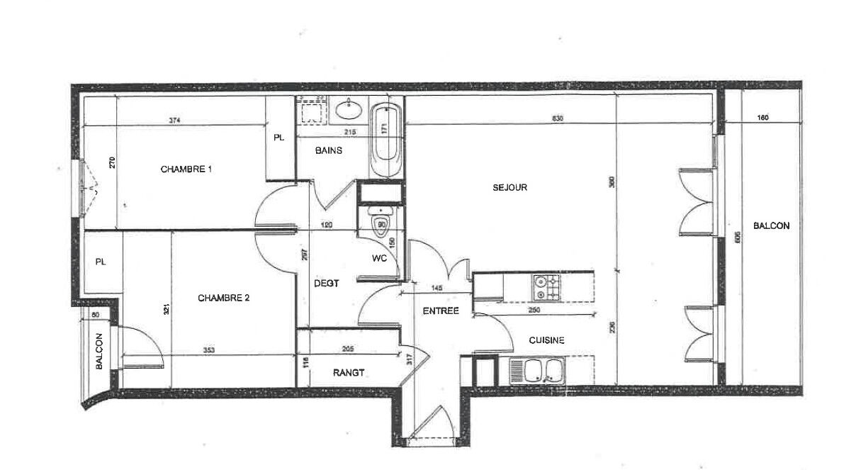
APPARTEMENT T3 309 RUE GARIBALDI 69007 LYON
Dans un quartier en pleine évolution du 7ème arrondissement, au 309 rue Garibaldi, dans un immeuble sécurisé le PALAIS PHAROS, construit en 2005
Appartement très lumineux de 3 pièces comprenant : entrée, grand rangement, séjour avec cuisine ouverte donnant sur un grand balcon de 10 m² exposé Sud-Est avec vue sur le jardin de la résidence, 2 chambres dont une avec balcon, salle de bains avec meuble vasque et baignoire, WC séparé
Garage fermé au sous-sol sécurisé
Chauffage collectif par pompe à chaleur électrique sur nappe phréatique avec répartiteurs individuels et système de climatisation réversible.
Envoi dossier sur demande
Copropriété de 142 lots, dont 49 lots d'habitation.
Agent Commercial à contacter : M. Jean-Pierre LASKAR 06.60.58.27.14 (N° SIREN 904784451)
Les informations sur les risques auxquels ce bien est exposé sont disponibles sur le site Géorisques : www.georisques.gouv.fr
1063
3Montant estimé des dépenses annuelles d'énergie pour un usage standard :
Entre 780.00€ et 1130.00€ par an
-
Les essentiels
- 3 pièces
- 72.38 m²
- 2 chambres
- Ascenseur : Oui
- 1 salle de bain
-
Intérieur
- Cuisine Ouverte
- Digicode : Oui
-
Extérieur
- 1 Balcon
-
Copropriété
- Bien en copropriété
- 142 lots
- Charges annuelles (ALUR) : 2147.00€
- Pas de procédure en cours
-
Autres
- Etage 3
- Immeuble de 7 étages
Vous souhaitez visiter l'Appartement
l'Adresse Charollois Immobilier
Les appartements similaires
Lyon 03 (69)
413 670 €Appartement3 pièces , 2 chambres
54.00 m²
Avec balconterrasse
Lyon 03 (69)
230 000 €Appartement3 pièces , 2 chambres
74.00 m²
Avec garage/box
Lyon 03 (69)
816 000 €Appartement5 pièces , 3 chambres
96.00 m²
Avec balcon, terrasse
Lyon 03 (69)
320 000 €Appartement4 pièces , 3 chambres
83.50 m²
Avec balcongarage/box
Villeurbanne (69)
300 000 €Appartement3 pièces
97.00 m²
Fontaines-sur-Saône (69)
Exclusif200 000 €Appartement3 pièces , 2 chambres
56.00 m²
Lyon 03 (69)
375 000 €Appartement4 pièces , 3 chambres
95.00 m²
Avec garage/box
Lyon 03 (69)
360 000 €Appartement3 pièces , 2 chambres
88.00 m²
Avec balcon, garage/box
- Achat appartement
- Auvergne-Rhône-Alpes
- Rhône (69)
- Lyon 07 (69007)
- Vente appartement 3 pièces, 72.38m², Lyon 07








