Vente appartement 3 pièces, 60.00m², Marseille 11
- 60.00m²
- 3 pièces
- 2 chambres
- 1 SDB
Les Accates- Résidence de 2022- Appartement T3 60 m2 avec terrasse de 17 m2
L'agence L'ADRESSE MARSEILLE 12 vous présente EN EXCLUSIVITE ce superbe appartement récent (2022) en Rez- de-jardin idéalement situé à proximité immédiate à pieds des commerces du village de la Valentine et du parc de la Denise.
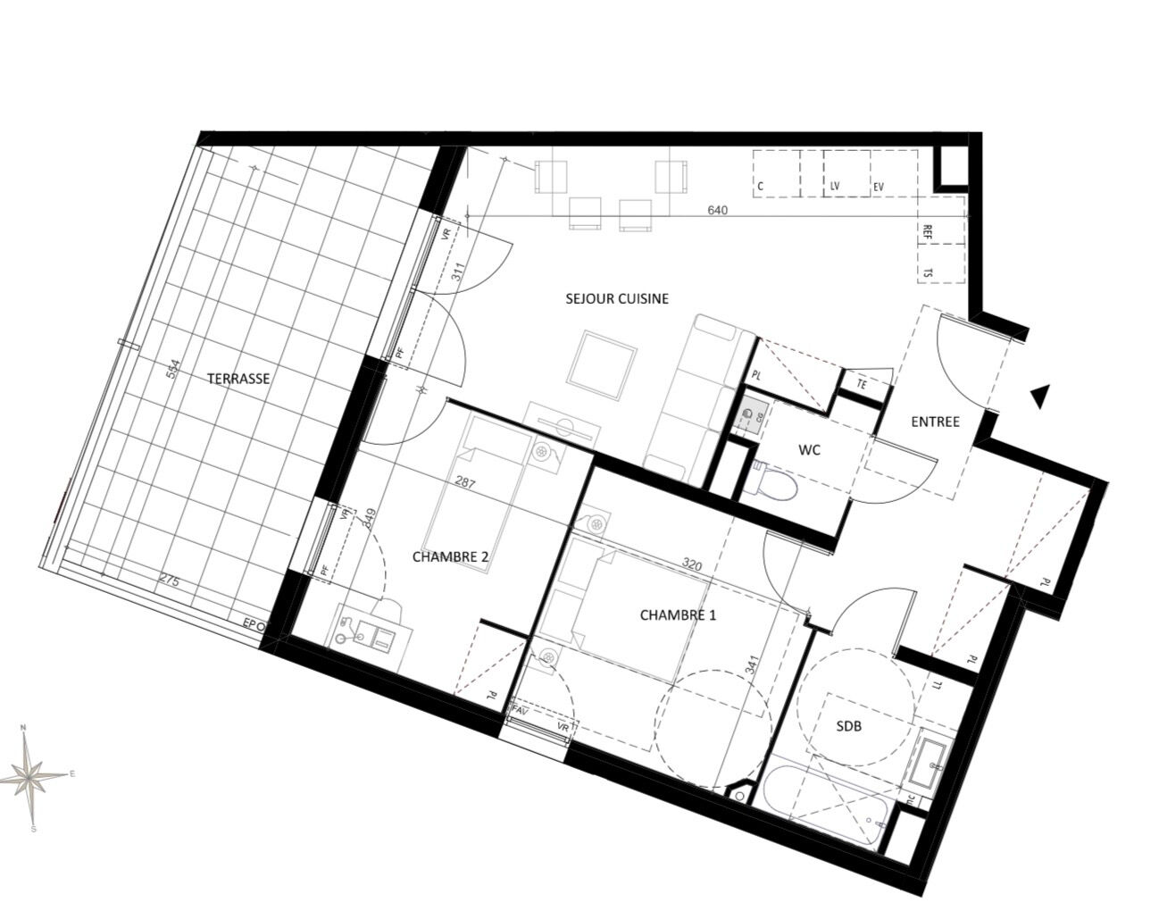
Dans une résidence de standing construite en 2022, en plein coeur du secteur très recherché des Accates et du village de la Valentine, cet appartement moderne de type 3 offre une surface de 60 m2 parfaitement agencée. Il dispose d'une pièce de vie climatisée avec cuisine contemporaine entièrement équipée et aménagée ouvrant sur une belle terrasse de 17m2 exposée ouest, parfait pour profiter des moments de détente en extérieur.
Il se compose également de deux chambres (dont une donnant sur la terrasse), une salle de bain, un spacieux hall d'entrée avec placard et un WC séparé.
Pour votre confort, un box fermé vous est proposé en supplément.
Proximité immédiate du village de la Valentine, des commodités, des transports en commun, des écoles, collège du Ruissatel, lycée.
A visiter sans tarder.
Votre contact : Florence TEMPIER : 06i26i43i16i'42
Adresse mail: florence.tempier@ladresse.immo
Les informations sur les risques auxquels ce bien est exposé sont disponibles sur le site Géorisques : "www.georisques.gouv.fr".
VENTES - LOCATIONS - GESTION LOCATIVE - ESTIMATIONS OFFERTES - L'ADRESSE IMMOBILIER MARSEILLE 12- 20 rAvenue de Saint Julien 13012 MARSEILLE
Les informations sur les risques auxquels ce bien est exposé sont disponibles sur le site Géorisques : www.georisques.gouv.fr
688
8Montant estimé des dépenses annuelles d'énergie pour un usage standard :
Entre 490.00€ et 730.00€ par an
-
Les essentiels
- 3 pièces
- 60.00 m²
- 2 chambres
- Ascenseur : Oui
- 1 salle de bain
-
Intérieur
- Cuisine AmenageeEquipee
- Interphone : Oui
- Visiophone : Oui
-
Extérieur
- Jardin 0.00 m²
-
Copropriété
- Bien en copropriété
- 50 lots
- Charges annuelles (ALUR) : 1800.00€
- Pas de procédure en cours
-
Autres
- Rez de chaussée : Oui
- Construit en 2022
- Immeuble de 3 étages
Vous souhaitez visiter l'Appartement
l'Adresse Marseille 12
13012 Marseille
04 91 36 19 49
Nos honoraires
- l'Adresse Marseille 12
- 10.000 €
- Coralie CACCAVELLI
- 851 181 917
- MARSEILLE
- FR05851181917
- CPI13102019000041804
- CCI MARSEILLE PROVENCE : Palais de la Bourse, 9, la canebière - 13221 MARSEILLE
- SO.CA.F.
- 110.000 €
- 26 Avenue DE SUFFREN, 75015 PARIS
- Nom du médiateur : MEDIATION - VIVONS MIEUX ENSEMBLE Adresse du médiateur : 465 Avenue de la Libération - 54000 Nancy Adresse du site : https://www.mediation-vivons-mieux-ensemble.fr Date obtention du label : NC
Mentions légales
Les appartements similaires
Marseille 11 (13)
Exclusif255 000 €Appartement4 pièces , 2 chambres
86.25 m²
Avec balcon
Marseille 13 (13)
235 000 €Appartement3 pièces , 2 chambres
54.55 m²
Avec terrasse
Marseille 09 (13)
450 000 €Appartement4 pièces , 3 chambres
80.00 m²
Avec jardin, terrasse, garage/box
Marseille 12 (13)
Exclusif150 000 €Appartement2 pièces , 1 chambre
40.00 m²
Avec balcon
Istres (13)
Exclusif155 500 €Appartement3 pièces , 2 chambres
60.17 m²
Marignane (13)
117 063 €Appartement1 pièce , 19 chambres
Marseille 12 (13)
240 000 €Appartement2 pièces , 1 chambre
41.00 m²
Avec terrasse
Marseille 13 (13)
380 000 €Appartement4 pièces , 3 chambres
82.42 m²
Avec terrasse
- Achat appartement
- Provence-Alpes-Côte d'Azur
- Bouches-du-Rhône (13)
- Marseille 11 (13011)
- Vente appartement 3 pièces, 60.00m², Marseille 11












