Vente appartement 4 pièces, 102.00m², Neuilly-Plaisance
- 102.00m²
- 4 pièces
- 3 chambres
- 2 SDB
CENTRE-VILLE
					Appartement 4/5 pièces -  Dernier étage
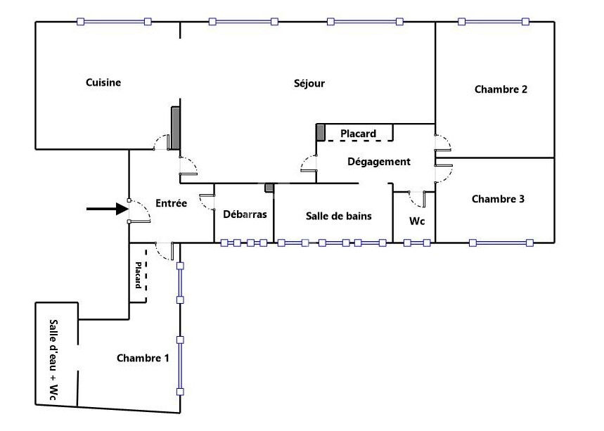
Idéalement situé en plein coeur de Neuilly-Plaisance (93360), à proximité immédiate des commerces, écoles et transports, cet appartement de 102 m², situé au dernier étage (2ème sans ascenseur) d'une petite copropriété de trois lots, vous séduira par ses volumes, sa luminosité et son parfait état général.
** Agencement confortable et fonctionnel :
- Entrée avec rangements
- Cuisine aménagée et équipée, séparée par une verrière
- Double séjour de 28 m², exposé sud-ouest, lumineux et spacieux
- Trois grandes chambres, dont une avec salle d'eau privative et WC
(Possibilité d'aménager une 4e chambre selon vos besoins)
- Salle de bain indépendante + WC séparés
- Buanderie pratique
** Prestations et équipements :
Aucun travaux à prévoir
DPE : D
Pompe à chaleur réversible (chauffage et climatisation)
Faibles charges de copropriété
Garage fermé en sous-sol + cave
** Localisation privilégiée :
- Commerces de proximité à 2 minutes à pied
- Écoles accessibles en moins de 5 minutes
- RER A à 13 minutes à pied (Paris Nation en 15 minutes)
!! Une belle opportunité à découvrir rapidement !!
Contactez votre conseillère Céline HERVÉ pour une visite -  06.80.46.31.82
Entrepreneur individuel immatriculé au RSAC N° 901337972 Tribunal de Commerce de Bobigny.
				
Les informations sur les risques auxquels ce bien est exposé sont disponibles sur le site Géorisques : www.georisques.gouv.fr
Céline HERVÉ (EI) Agent commercial - Numéro RSAC : 901337972 - Bobigny (93).
 2086
2086 6
6Montant estimé des dépenses annuelles d'énergie pour un usage standard :
Entre 1630.00€ et 2270.00€ par an
- 
						Les essentiels- 4 pièces
- 102.00 m²
- 3 chambres
- 1 salle de bain
- 1 salle d'eau
 
- 
						Intérieur- Cuisine Ouverte Aménagée Equipée
- Interphone : Oui
- 1 Cave
 
- 
						Extérieur- 1 Garage/box
 
- 
						Copropriété- Bien en copropriété
- 3 lots
- Charges annuelles (ALUR) : 1000.00€
- Pas de procédure en cours
 
- 
						Autres- Etat général : Très bon état
- Fibre : Oui
- Dernier étage : Oui
- Etage 2
- Construit en 1970
- Immeuble de 2 étages
 
Vous souhaitez visiter l'Appartement
l'Adresse Serris - Success immobilier
77700 SERRIS
01 64 17 87 38
Nos honoraires
- l'Adresse Serris - Success immobilier
- 235000
- Yann VETTRAINO
- 853375681
- Meaux (77)
- CPI 7701 2019 000 043 194
- Seine et Marne
Mentions légales
Les appartements similaires
 Romainville (93)	
	359 000 €Appartement3 pièces , 2 chambres Romainville (93)	
	359 000 €Appartement3 pièces , 2 chambres
 64.90 m²
 
 Noisy-le-Grand (93)	
	Exclusif329 500 €Appartement4 pièces , 3 chambres Noisy-le-Grand (93)	
	Exclusif329 500 €Appartement4 pièces , 3 chambres
 77.00 m²
 
 Neuilly-sur-Marne (93)	
	189 000 €Appartement2 pièces , 1 chambre Neuilly-sur-Marne (93)	
	189 000 €Appartement2 pièces , 1 chambre
 40.00 m²
 Avec jardin, terrasse
 Noisy-le-Grand (93)	
	Exclusif279 900 €Appartement3 pièces , 2 chambres Noisy-le-Grand (93)	
	Exclusif279 900 €Appartement3 pièces , 2 chambres
 64.00 m²
 Avec jardin
 Noisy-le-Grand (93)	
	Exclusif239 000 €Appartement3 pièces , 2 chambres Noisy-le-Grand (93)	
	Exclusif239 000 €Appartement3 pièces , 2 chambres
 70.00 m²
 Avec balcon
 Le Bourget (93)	
	Exclusif85 000 €Appartement1 pièce Le Bourget (93)	
	Exclusif85 000 €Appartement1 pièce
 16.32 m²
 
 Le Raincy (93)	
	Exclusif240 000 €Appartement3 pièces , 2 chambres Le Raincy (93)	
	Exclusif240 000 €Appartement3 pièces , 2 chambres
 86.09 m²
 
 Romainville (93)	
	490 000 €Appartement5 pièces , 3 chambres Romainville (93)	
	490 000 €Appartement5 pièces , 3 chambres
 91.00 m²
 
- Achat appartement
- Île-de-France
- Seine-Saint-Denis (93)
- Neuilly-Plaisance (93360)
- Vente appartement 4 pièces, 102.00m², Neuilly-Plaisance
 
	







