Vente appartement 2 pièces, 29.09m², Paris 11
- 29.09m²
- 2 pièces
- 1 chambre
- 1 SDB
F02 -Voltaire / Charonne -Parking + Cave-
Voltaire / Charonne -Élégant 2 pièces avec parking et cave-
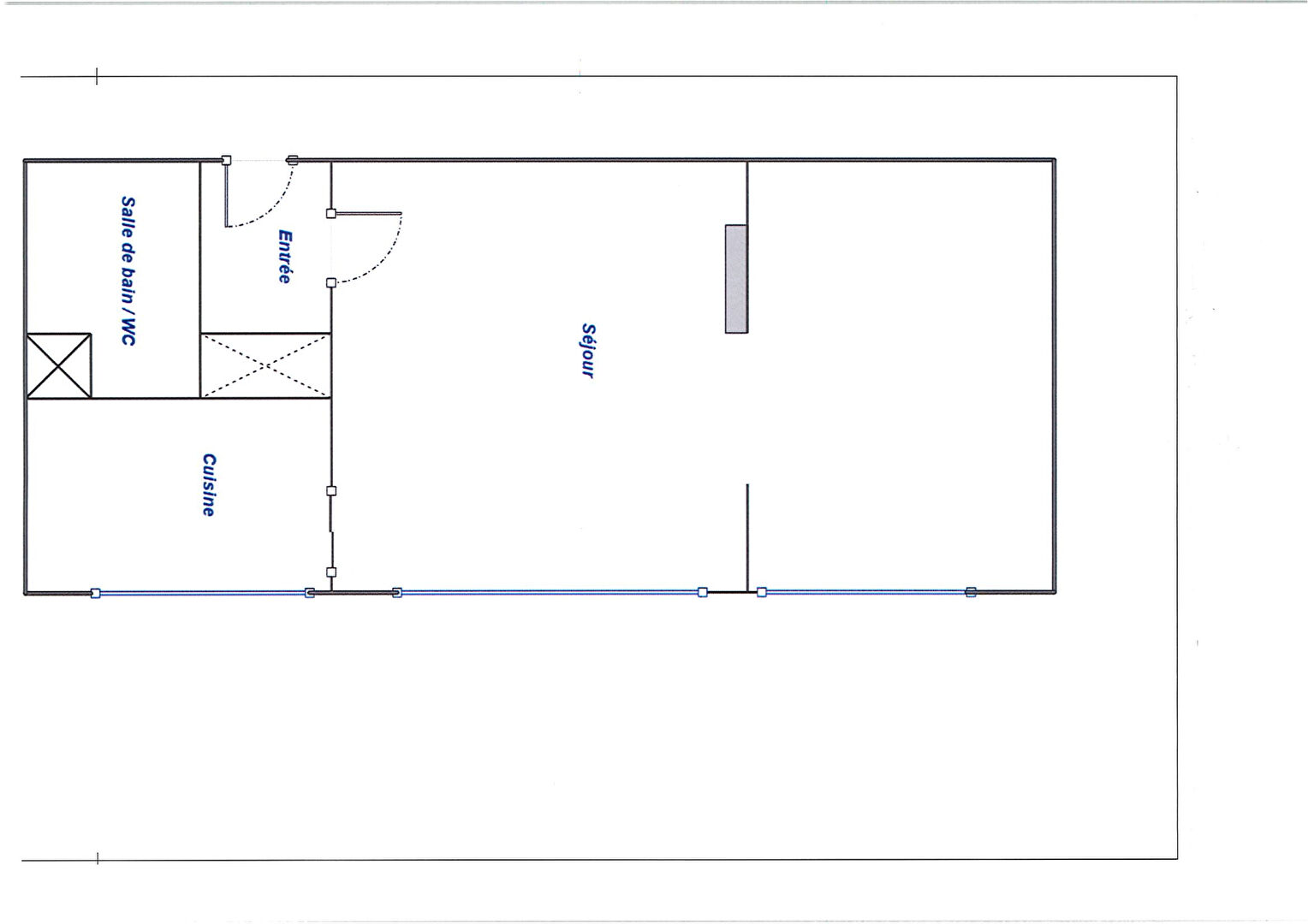
Votre agence l'Adresse Voltaire a le plaisir de vous proposer ce charmant appartement de 29,09 m², idéalement situé au sein d'une résidence semi récente de bon standing, au 2ème étage avec ascenseur. Bénéficiant d'une exposition plein sud, ce bien séduit immédiatement par sa luminosité et son calme absolu, l'appartement donnant entièrement sur le jardin intérieur de la copropriété, à l'abri de toute nuisance sonore. Configuré en 2 pièces, l'agencement offre une entrée, un séjour lumineux, une chambre, une cuisine séparée, ainsi qu'une salle de bains avec WC.
La séparation entre le séjour et la chambre peut être optimisée très simplement par la remise en place d'une porte, permettant ainsi un aménagement encore plus fonctionnel. De larges fenêtres viennent sublimer les volumes et renforcent la sensation d'espace. Un léger rafraîchissement permettra de révéler tout le potentiel de ce bien, parfaitement adapté à une résidence principale, un pied-à-terre ou un investissement locatif de qualité. Une cave ainsi qu'un emplacement de parking complètent ce bien et sont inclus dans la vente. Un véritable atout dans ce secteur recherché. Emplacement privilégié, à proximité immédiate des commerces, des transports et du quartier très prisé Voltaire / Charonne.
DPE : E (284) / E (57) Estimation des coûts annuels d'énergie : entre 660 € et 950 €
Les informations sur les risques auxquels ce bien est exposé sont disponibles sur le site Géorisques : www.georisques.gouv.fr
28457
57Montant estimé des dépenses annuelles d'énergie pour un usage standard :
Entre 660.00€ et 950.00€ par an
-
Les essentiels
- 2 pièces
- 29.09 m²
- 1 chambre
- Ascenseur : Oui
- 1 salle de bain
-
Intérieur
- Cuisine Amenagée
- Gardien : Oui
- Interphone : Oui
- Digicode : Oui
- 1 Cave
-
Extérieur
- 1 Parking
-
Copropriété
- Bien en copropriété
- 207 lots
- Charges annuelles (ALUR) : 2249.00€
- Pas de procédure en cours
-
Autres
- Etat général : Bon Etat
- Fibre : Oui
- Etage 2
- Construit en 1970
- Immeuble de 6 étages
Vous souhaitez visiter l'Appartement
l'Adresse Paris 11 Voltaire
75011 Paris
01 40 09 52 90
Nos honoraires
- l'Adresse Paris 11 Voltaire
- 18 000 euros
- David BERRIH
- RCS Paris : B 418 388 047
- CCI PARIS
- CPI 7501 2016 000 014 308
- 27 Av. de Friedland, 75008 Paris
- SOCAF
Mentions légales
Les appartements similaires
Paris 02 (75)
160 000 €Appartement1 pièce
14.64 m²
Paris 11 (75)
1 470 000 €Appartement5 pièces , 3 chambres
147.00 m²
Paris 10 (75)
Exclusif399 000 €Appartement2 pièces , 1 chambre
45.12 m²
Paris 15 (75)
898 700 €Appartement5 pièces , 4 chambres
112.00 m²
Avec balcon
Paris 13 (75)
Exclusif800 000 €Appartement3 pièces , 2 chambres
81.24 m²
Avec balcon
Paris 11 (75)
Exclusif200 000 €Appartement1 pièce
16.49 m²
Paris 13 (75)
Exclusif998 000 €Appartement4 pièces , 3 chambres
98.00 m²
Avec terrassegarage/box
Paris 12 (75)
355 000 €Appartement2 pièces , 1 chambre
41.72 m²
- Achat appartement
- Île-de-France
- Paris (75)
- Paris 11 (75011)
- Vente appartement 2 pièces, 29.09m², Paris 11









