Vente appartement 2 pièces, 35.00m², Paris 11
- 35.00m²
- 2 pièces
- 1 chambre
- 1 SDB
2 pièces coup de coeur -Quartier Sedaine-
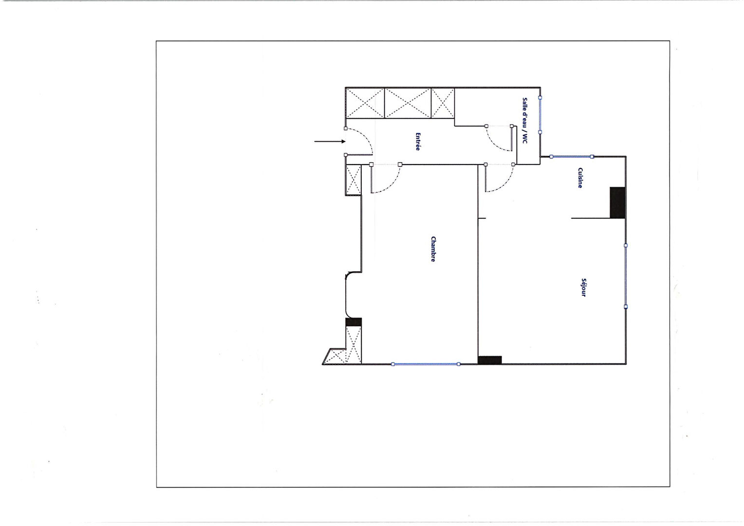
Situé dans le très prisé quartier Bastille / Sedaine, cet appartement profite d'un emplacement exceptionnel, au coeur d'un environnement animé, convivial et parfaitement desservi. Votre agence l'Adresse Voltaire vous propose ce ravissant 2 pièces, niché au 5ème étage sur 6 d'un bel immeuble ancien de bon standing (sans ascenseur). D'une surface de 35,05M² au sol (34,51 m² carrez), il séduit par son agencement optimisé : une entrée avec rangements, un séjour baigné de lumière avec cuisine ouverte, une chambre élégante agrémentée d'un dressing, ainsi qu'une salle d'eau avec WC. Exposé sud-ouest, l'appartement bénéficie d'une luminosité généreuse tout au long de la journée et d'une vue dégagée, offrant un cadre de vie à la fois paisible et agréable. Son cachet de l'ancien et son ambiance chaleureuse en font un lieu de vie particulièrement séduisant. À deux pas des commerces, des transports et de la place de la Bastille, ce bien rare allie parfaitement l'énergie du quartier à une véritable sensation de tranquillité. Une cave en sous-sol vient compléter ce bien. DPE : F (369) / F (79)
Les informations sur les risques auxquels ce bien est exposé sont disponibles sur le site Géorisques : www.georisques.gouv.fr
36379
79Montant estimé des dépenses annuelles d'énergie pour un usage standard :
Entre 1180.00€ et 1640.00€ par an
-
Les essentiels
- 2 pièces
- 35.00 m²
- 1 chambre
- 1 salle d'eau
-
Intérieur
- Cuisine Ouverte
- Interphone : Oui
- Digicode : Oui
-
Copropriété
- Bien en copropriété
- 60 lots
- Charges annuelles (ALUR) : 1000.00€
- Pas de procédure en cours
-
Autres
- Fibre : Oui
- Etage 5
- Immeuble de 6 étages
Vous souhaitez visiter l'Appartement
l'Adresse Paris 11 Voltaire
75011 Paris
Transaction :
01 40 09 52 90
Location :
01 55 28 94 10
Nos honoraires
- l'Adresse Paris 11 Voltaire
- 18 000 euros
- David BERRIH
- RCS Paris : B 418 388 047
- CCI PARIS
- CPI 7501 2016 000 014 308
- 27 Av. de Friedland, 75008 Paris
- SOCAF
- Nom du médiateur : AME CONSO Adresse postale du médiateur : 11 Place Dauphine 75001 PARIS Site internet du médiateur : www.mediationconso-ame.com
Mentions légales
Les appartements similaires
Paris 11 (75)
1 470 000 €Appartement5 pièces , 3 chambres
147.00 m²
Paris 07 (75)
Exclusif2 075 000 €Appartement5 pièces , 3 chambres
104.00 m²
Avec balcon
Paris 19 (75)
Exclusif360 000 €Appartement2 pièces , 1 chambre
44.56 m²
Avec jardin
Paris 08 (75)
429 000 €Appartement2 pièces , 1 chambre
32.20 m²
Avec garage/box
Paris 07 (75)
1 480 000 €Appartement5 pièces
292.00 m²
Paris 12 (75)
Exclusif885 000 €Appartement4 pièces , 3 chambres
82.76 m²
Avec balcon
Paris 12 (75)
655 000 €Appartement3 pièces , 2 chambres
72.00 m²
Paris 10 (75)
Exclusif340 000 €Appartement2 pièces , 1 chambre
29.82 m²
- Achat appartement
- Île-de-France
- Paris (75)
- Paris 11 (75011)
- Vente appartement 2 pièces, 35.00m², Paris 11













