Vente appartement 4 pièces, 85.00m², Paris 14
- 85.00m²
- 4 pièces
- 3 chambres
- 1 SDB
Gare Montparnasse - Appartement familial avec vue dégagée sur jardin arboré
Notre agence vous propose ce 4 pièces traversant de 85 m² avec vue dégagée sur un grand jardin arboré.
Idéalement situé à 1 minute de marche de la gare Montparnasse, découvrez cet appartement familial calme et lumineux.
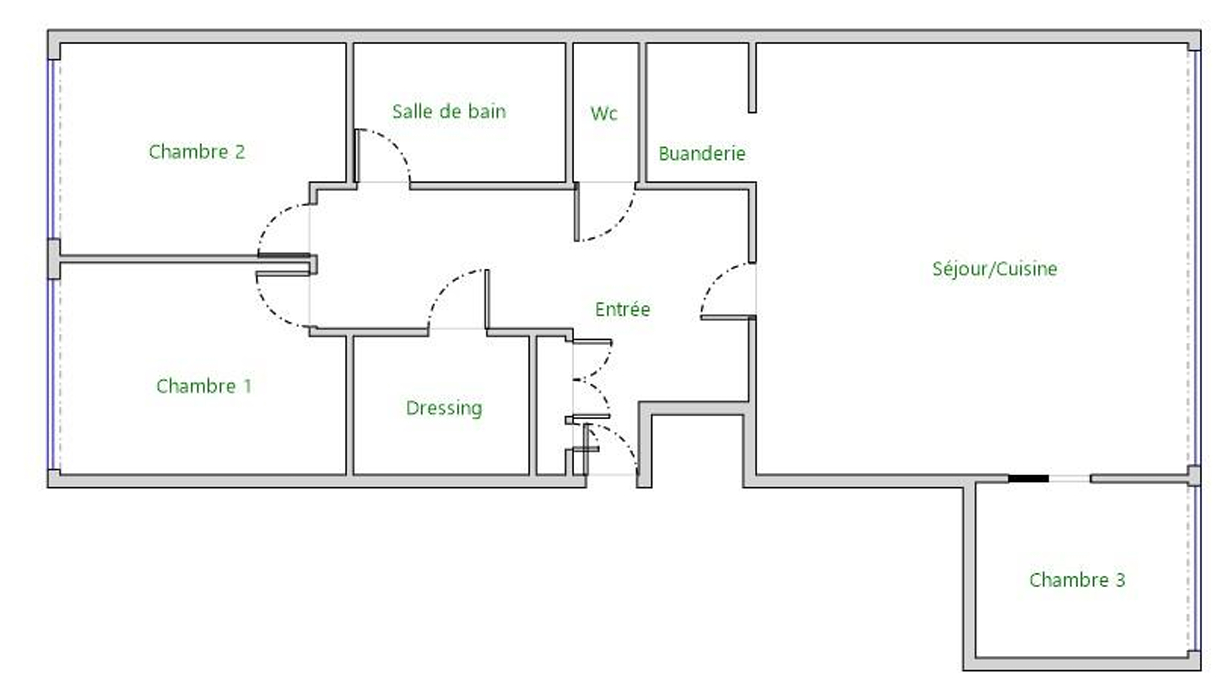
Au 6e étage avec ascenseur d'une copropriété récente et sécurisée, il se compose d'une entrée avec placard, une pièce de vie de 33 m² avec cuisine ouverte et îlot central, 3 chambres (10.29, 10.44 et 9.25 m²), un dressing, une buanderie, une salle de bain et des WC séparés.
Une cave complète la prestation. Possibilité d'un emplacement de parking en sus.
Les + :
- Traversant Est/Ouest,
- Calme
- Grande clarté
- Sans vis-à-vis
Proximité immédiate des écoles, commerces et transports.
À visiter sans tarder !
Les informations sur les risques auxquels ce bien est exposé sont disponibles sur le site Géorisques : www.georisques.gouv.fr
20435
35Montant estimé des dépenses annuelles d'énergie pour un usage standard :
Entre 1350.00€ et 1840.00€ par an
-
Les essentiels
- 4 pièces
- 85.00 m²
- 3 chambres
- Ascenseur : Oui
- 1 salle de bain
-
Intérieur
- Cuisine Ouverte Aménagée
- Gardien : Oui
- Interphone : Oui
- Digicode : Oui
- 1 Cave
-
Copropriété
- Bien en copropriété
- 317 lots
- Charges annuelles (ALUR) : 4364.92€
- Pas de procédure en cours
-
Autres
- Fibre : Oui
- Etage 6
- Construit en 1966
- Immeuble de 17 étages
Vous souhaitez visiter l'Appartement
l'Adresse Cambronne Paris 15
75015 PARIS
01 43 70 22 32
Nos honoraires
- l'Adresse Cambronne Paris 15
- AVISSE Anne
- Paris 839469244
- 7501 2019 000 39 113
- CCI Paris Ile de France
- FCA 77 Rue de Lourmel 75015 PARIS www.commerce-associe.fr
Mentions légales
Les appartements similaires
Paris 10 (75)
1 325 000 €Appartement4 pièces , 3 chambres
96.58 m²
Paris 13 (75)
Exclusif1 345 000 €Appartement4 pièces , 2 chambres
120.00 m²
Avec terrassegarage/box
Paris 12 (75)
849 000 €Appartement4 pièces , 2 chambres
92.00 m²
Avec balcon
Paris 10 (75)
Exclusif340 000 €Appartement2 pièces , 1 chambre
29.82 m²
Paris 10 (75)
840 000 €Appartement3 pièces , 2 chambres
70.46 m²
Meublé
Paris 18 (75)
Exclusif45 000 €Appartement1 pièce
5.50 m²
Paris 07 (75)
295 000 €Appartement2 pièces , 1 chambre
22.00 m²
Paris 16 (75)
1 355 000 €Appartement4 pièces , 3 chambres
87.30 m²
- Achat appartement
- Île-de-France
- Paris (75)
- Paris 14 (75014)
- Vente appartement 4 pièces, 85.00m², Paris 14







