Vente appartement 4 pièces, 128.00m², Paris 16
- 128.00m²
- 4 pièces
- 2 chambres
- 1 SDB
Appartement 4 pièces
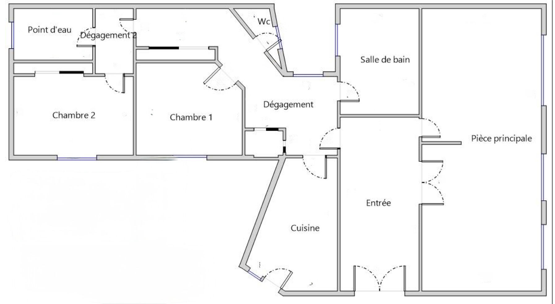
L'Adresse Paris 16e vous propose, à deux pas de la prestigieuse Villa Montmorency, un appartement de 4 pièces d'une superficie de 120 m².
Il se compose d'une belle entrée, d'un vaste séjour / salle à manger de 46 m² ouvrant sur un balcon, d'une cuisine aménagée et équipée, de deux chambres au calme sur cour, d'une salle de bains, de WC séparés ainsi que d'une buanderie avec possibilité de création d'une seconde salle d'eau.
Ce bien dispose d'une cave ainsi que d'une chambre de service de 8m2 situé au 7ème étages avec ascenseur.
Des travaux sont à prévoir, offrant un très beau potentiel de valorisation.
Bien rare à visiter rapidement.
Pour plus d'information, merci de prendre contact avec Manon au 0624896155
Les informations sur les risques auxquels ce bien est exposé sont disponibles sur le site Géorisques : www.georisques.gouv.fr
24854
54-
Les essentiels
- 4 pièces
- 128.00 m²
- 2 chambres
- Ascenseur : Oui
- 1 salle de bain
-
Intérieur
- Cuisine AmenageeEquipee
- Gardien : Oui
- Interphone : Oui
- Digicode : Oui
- 1 Cave
-
Extérieur
- 2 Balcons
-
Autres
- Etat général : A Rafraichir
- Etage 5
- Construit en 1926
- Immeuble de 7 étages
Vous souhaitez visiter l'Appartement
l'Adresse Paris 16
75016 Paris
Transaction :
01 44 30 85 60
Location :
01 44 30 85 60
Nos honoraires
- l'Adresse Paris 16
- 396 000,00 €
- DO Yann
- RCS Paris B 652 015 413
- CPI 7501 2016 000 017 938
- CCI Paris Ile-de-France
- Médiateur du commerce coopératif et associé FCA 77 rue de Lourmel 75015 Paris Date d'obtention du label 02/08/2021 mica-mediation.fr
Mentions légales
Les appartements similaires
Paris 12 (75)
Exclusif650 000 €Appartement3 pièces , 2 chambres
70.06 m²
Avec balcon
Paris 20 (75)
115 000 €Appartement1 pièce
9.04 m²
Paris 15 (75)
Exclusif880 000 €Appartement4 pièces , 2 chambres
67.73 m²
Paris 13 (75)
Exclusif609 000 €Appartement3 pièces , 2 chambres
71.50 m²
Paris 10 (75)
Exclusif399 000 €Appartement2 pièces , 1 chambre
42.07 m²
Paris 13 (75)
Exclusif560 000 €Appartement4 pièces , 2 chambres
66.00 m²
Paris 17 (75)
Exclusif735 000 €Appartement3 pièces , 2 chambres
75.14 m²
Paris 13 (75)
199 000 €Appartement1 pièce
27.78 m²
- Achat appartement
- Île-de-France
- Paris (75)
- Paris 16 (75016)
- Vente appartement 4 pièces, 128.00m², Paris 16








