Réf. de l'annonce : 14216675 / 34667
Vente appartement 4 pièces, 80.87m², Saint-Nazaire
- 80.87m²
- 4 pièces
- 3 chambres
- 1 SDB
A vendre T4 -80,87 m² dans résidence Neuve Livrée avec deux balcons
Découvrez une résidence neuve idéalement située à Saint-Nazaire, à deux pas du littoral et des plaisirs de la vie balnéaire. Entre plages accessibles à pied, commerces de proximité, transports et services du quotidien, profitez d'un cadre de vie exceptionnel où confort moderne et douceur de vivre se rencontrent. La résidence est livrée : il ne vous reste plus qu'à poser vos valises.
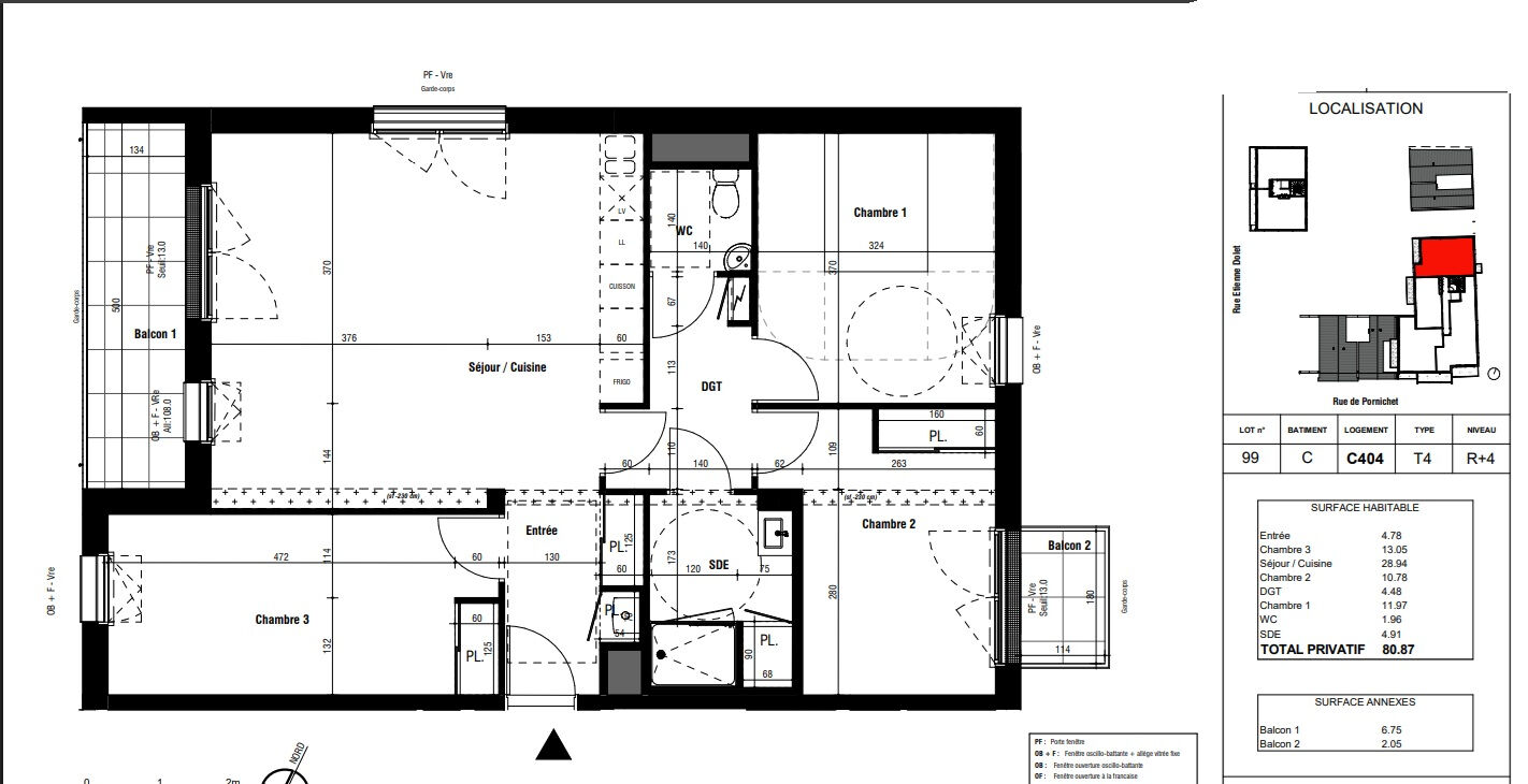
Cet appartement T4 de 80,87 m² se situe au 4ème étage d'une résidence neuve livrée. Il s'ouvre sur une entrée de 4,78 m² équipée d'un placard. Le séjour-cuisine, d'une surface de 28,94 m², donne accès à un premier balcon de 6,75 m².
L'appartement dispose de trois chambres : une première chambre de 11,97 m², une deuxième chambre de 10,78 m² qui bénéficie d'un accès direct à un second balcon de 2,05 m², et une troisième chambre de 13,05 m². Un dégagement de 4,48 m² dessert les différentes pièces.
La salle d'eau mesure 4,91 m² et les WC sont séparés, pour une surface de 1,96 m².
L'ensemble offre une distribution fonctionnelle, deux espaces extérieurs agréables et plusieurs rangements intégrés. La résidence est située à proximité des commodités et du littoral.
Prix: 409 000€ TTC
FRAIS DE NOTAIRE OFFERT
REF:34667OceC404
"Les informations sur les risques auxquels ce bien est exposé sont disponibles sur le site Géorisques : www.georisques.gouv.fr"
Les informations sur les risques auxquels ce bien est exposé sont disponibles sur le site Géorisques : www.georisques.gouv.fr


-
Les essentiels
- 4 pièces
- 80.87 m²
- 3 chambres
- Ascenseur : Oui
- Accès PMR : Oui
- 1 salle d'eau
-
Intérieur
- Cuisine Ouverte
- Visiophone : Oui
-
Extérieur
- 2 Balcons
- 1 Parking
-
Autres
- Etat général : Excellent
- Fibre : Oui
- Etage 4
- Construit en 2025
- Immeuble de 5 étages
Vous souhaitez visiter l'Appartement
l'Adresse Carquefou
44470 CARQUEFOU
02 40 52 75 75
Nos honoraires
- l'Adresse Carquefou
- 500 000€
- BERNARD Thierry
- CPI 480 628 593 ANGERS
- 4901 2017 000 018 268
- CCI MAINE ET LOIRE
- GALLIAN
- Activité Transaction : 1 000 000 € Activité Gestion immobilière 2 000 000€
- 89 rue de la Boétie - 75 008 PARIS
- Nom du médiateur : L'Association Nationale des Médiateurs (ANM) Adresse postale du médiateur : 62 rue Tiquetonne 75002 PARIS Site internet du médiateur : www.anm-conso.com
Mentions légales
Nous tenons à vous informer que l'annonce immobilière que vous avez consultée n'est malheureusement plus disponible pour les visites.
Nous comprenons que cela puisse être décevant, mais nous vous encourageons à continuer à explorer nos autres annonces disponibles. Notre équipe est à votre disposition pour vous aider à trouver la propriété qui correspond à vos besoins et à votre budget.
N'hésitez pas à nous contacter pour toute question ou pour planifier des visites pour d'autres biens. Nous sommes déterminés à vous accompagner dans votre recherche et à vous aider à trouver votre nouveau chez-vous.
Merci pour votre compréhension et votre intérêt.
Les appartements similaires
Nantes (44)
Exclusif214 000 €Appartement4 pièces , 2 chambres
65.48 m²
Avec jardin
Couëron (44)
145 800 €Appartement1 pièce
30.91 m²
Avec jardin, terrasse
Saint-Nazaire (44)
113 500 €Appartement1 pièce , 1 chambre
21.15 m²
Nantes (44)
355 000 €Appartement4 pièces , 3 chambres
88.63 m²
Avec balcon
Nantes (44)
Exclusif245 000 €Appartement3 pièces , 2 chambres
68.10 m²
Avec balcongarage/box
Nantes (44)
Exclusif229 100 €Appartement3 pièces , 2 chambres
68.00 m²
Avec terrassegarage/box
Nantes (44)
239 900 €Appartement3 pièces , 2 chambres
77.24 m²
Avec balcon
Saint-Herblain (44)
192 600 €Appartement3 pièces , 2 chambres
72.11 m²
Avec balcon
- Achat appartement
- Pays de la Loire
- Loire-Atlantique (44)
- Saint-Nazaire (44600)
- Vente appartement 4 pièces, 80.87m², Saint-Nazaire



