Vente appartement 4 pièces, 65.00m², Saint-Sébastien-sur-Loire
- 65.00m²
- 4 pièces
- 2 chambres
Maison de ville au DOUET
Vous rêvez d'une maison à personnaliser selon vos envies ? Ce projet est fait pour vous !
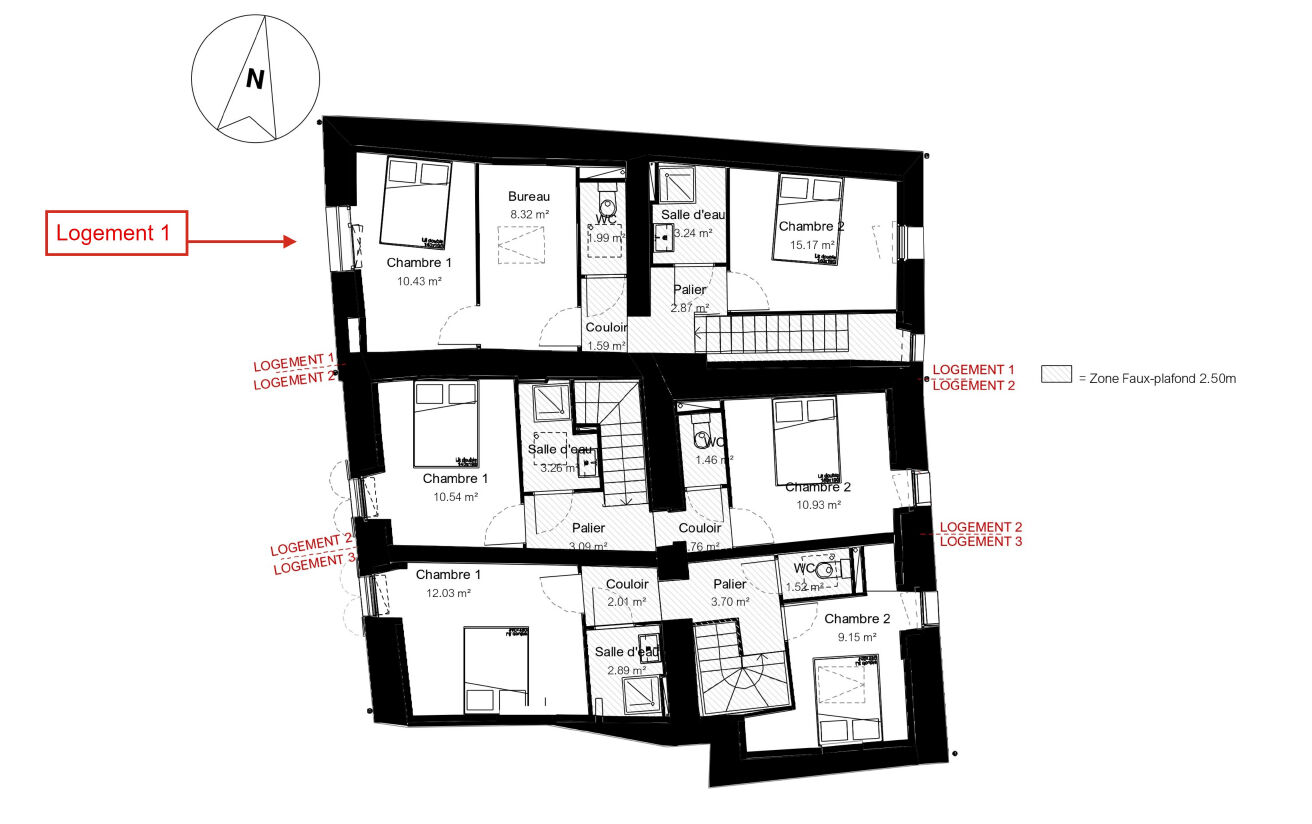
Dans le secteur recherché du Douet, à deux pas du busway, des commerces et des écoles, découvrez cette rénovation de trois maisons de ville. Vous avez le choix entre une maison de 85m², une maison de 67 m² ou une maison de 65 m². Le prix affiché correspond à la plus petite surface (logement 2). Les plans sont disponibles en image.
Les gros travaux ont déjà été réalisés : la toiture est neuve, les menuiseries ont été remplacées, placo, électricité et isolation terminés.
Il ne vous reste plus qu'à finaliser les finitions afin de créer un intérieur qui vous ressemble. Prévoyez un budget moyen de 15 000€ pour les sols, le ballon, les radiateurs et les sanitaires selon vos envies.
Un cadre de vie agréable, dans un quartier prisé, avec tous les services accessibles à pied. C'est une belle occasion de devenir propriétaire d'une maison rénovée avec soin, tout en gardant la liberté de choisir vos finitions et votre style.
Pour plus de renseignements merci de me contacter Laurie NAVINEL (EI) au 0673241681 ou par mail laurie.navinel@ladresse.com.
Inscrite au registre des agents commerciaux sous le numéro 2025AC00032.
Les informations sur les risques auxquels ce bien est exposé sont disponibles sur le site Géorisques : www.georisques.gouv.fr
150
-
Les essentiels
- 4 pièces
- 65.00 m²
- 2 chambres
-
Extérieur
- Jardin 71.00 m²
-
Autres
- Construit en 2024
Vous souhaitez visiter l'Appartement
l'Adresse ST Sébastien sur Loire
44230 St Sébastien sur Loire
02 40 80 52 30
- l'Adresse ST Sébastien sur Loire
- 10 000 €
- DEGREZ Nathalie
- Nantes B 821 849 353
- CPI 4401201600001308
- CCI de Nantes
- MCCA 77, rue de Lourmel 75015 PARIS www.mcca-mediation.fr
Mentions légales
Les appartements similaires
Pontchâteau (44)
Exclusif165 000 €Appartement5 pièces , 3 chambres
137.00 m²
Nantes (44)
Exclusif164 000 €Appartement3 pièces , 2 chambres
64.00 m²
Avec balcon
Nantes (44)
Exclusif118 800 €Appartement1 pièce , 1 chambre
30.15 m²
Nantes (44)
Exclusif97 500 €Appartement2 pièces , 1 chambre
35.00 m²
Avec terrasse
Nantes (44)
212 000 €Appartement2 pièces , 1 chambre
56.52 m²
Avec terrasse
Nantes (44)
Exclusif97 600 €Appartement2 pièces , 1 chambre
30.09 m²
Nantes (44)
123 600 €Appartement1 pièce , 1 chambre
22.29 m²
Treffieux (44)
Exclusif89 000 €Appartement3 pièces , 2 chambres
67.12 m²
- Achat appartement
- Pays de la Loire
- Loire-Atlantique (44)
- Saint-Sébastien-sur-Loire (44230)
- Vente appartement 4 pièces, 65.00m², Saint-Sébastien-sur-Loire












