Réf. de l'annonce : 14015884 / 18813
Vente maison 4 pièces, 114.00m², Aizenay
- 114.00m²
- 4 pièces
- 2 chambres
Maison 4 pièces 114m² à vendre dans le centre d'Aizenay
EXCLUSIVITE L'ADRESSE AIZENAY : Maison de 114 m² habitables située dans le coeur de ville de la commune d'Aizenay, vous laissant l'opportunité de tout faire à pied.
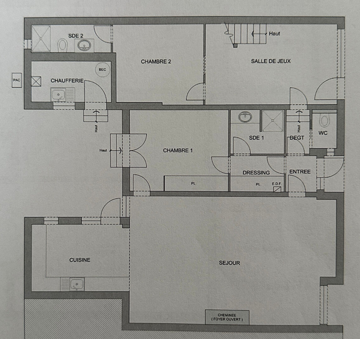
De plain pied, l'entrée s'ouvre sur un lumineux séjour/salle à manger de presque 45 m², attenant à une cuisine aménagée équipée en parfait état d'entretien.
Un dégagement dessert deux chambres (de 13,5 et 12,2m²) et un bureau (de 17,4 m²) avec accès à une mezzanine. La maison comprend également deux salles d'eau et deux WC.
A l'extérieur : une cour avec place de parking, un abri de jardin et une dépendance complètent le descriptif de ce bien.
Aucun travaux n'est à prévoir : l'isolation et les ouvertures ont été refaites, système de chauffage au sol par pompe à chaleur, raccordement à la fibre...
REF : 18813
N'hésitez pas à nous contacter pour plus de renseignements ou pour convenir d'une visite dès maintenant ! Agence ouverte du lundi au samedi : 02 51 43 88 88 !
Les informations sur les risques auxquels ce bien est exposé sont disponibles sur le site Géorisques : www.georisques.gouv.fr
1504
4Montant estimé des dépenses annuelles d'énergie pour un usage standard :
Entre 1330.00€ et 1850.00€ par an
-
Les essentiels
- 4 pièces
- 114.00 m²
- 2 chambres
-
Extérieur
- Jardin 355.00 m²
- 4 Parkings
-
Autres
- Etat général : Bon Etat
Vous souhaitez visiter la Maison
l'Adresse - AIZENAY
Nous tenons à vous informer que l'annonce immobilière que vous avez consultée n'est malheureusement plus disponible pour les visites.
Nous comprenons que cela puisse être décevant, mais nous vous encourageons à continuer à explorer nos autres annonces disponibles. Notre équipe est à votre disposition pour vous aider à trouver la propriété qui correspond à vos besoins et à votre budget.
N'hésitez pas à nous contacter pour toute question ou pour planifier des visites pour d'autres biens. Nous sommes déterminés à vous accompagner dans votre recherche et à vous aider à trouver votre nouveau chez-vous.
Merci pour votre compréhension et votre intérêt.
Les maisons similaires
Notre-Dame-de-Monts (85)
Exclusif159 600 €Maison3 pièces , 2 chambres
54.52 m²
Avec jardin
Barbâtre (85)
462 000 €Maison5 pièces , 3 chambres
116.00 m²
Angles (85)
379 800 €Maison5 pièces , 3 chambres
124.58 m²
Avec jardin
La Boissière-des-Landes (85)
294 000 €Maison8 pièces , 5 chambres
190.00 m²
Avec jardin
La Roche-sur-Yon (85)
Exclusif188 300 €Maison4 pièces , 2 chambres
70.69 m²
Avec jardin
Sèvremont (85)
115 400 €Maison5 pièces , 2 chambres
67.80 m²
Vouvant (85)
441 400 €Maison9 pièces , 5 chambres
244.00 m²
Challans (85)
306 000 €Maison4 pièces , 3 chambres
95.68 m²
- Achat maison
- Pays de la Loire
- Vendée (85)
- Aizenay (85190)
- Vente maison 4 pièces, 114.00m², Aizenay










