Réf. de l'annonce : 14109472 / 1910
Vente maison 4 pièces, 80.00m², Muret
- 80.00m²
- 4 pièces
- 3 chambres
- 1 SDB
Maison Muret - 4 pièces 80 m²
L'ADRESSE MURET - CENTRE VILLE - COEUR HISTORIQUE DE MURET - COUP DE COEUR ASSURÉ -
Venez découvrir et tomber sous le charme de cette jolie maison de ville très bien entretenue !
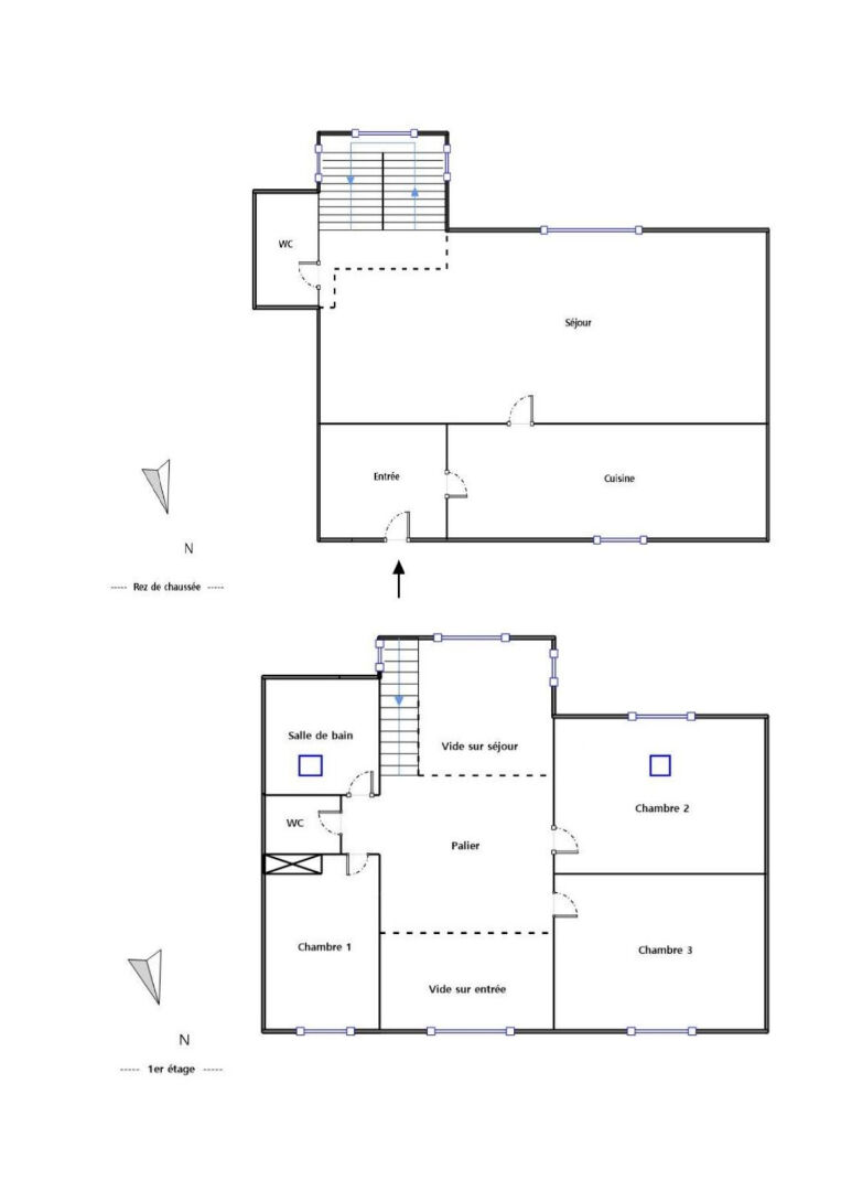
Composée de 2 niveaux d'environ 40 m² chacun, elle vous offre une entrée sur une belle pièce de vie lumineuse avec son hauteur cathédrale, cuisine indépendante aménagée, W.C.
A l'étage, palier desservant 3 chambres dont deux d'environ 12 m², une salle de bains, W.C séparés.
Pas de garage. Concernant le stationnement : les places de stationnement du parking de l'hôtel de ville sont situées à deux pas.
Proche des espaces verts de Muret : Parc Clément Ader et Parc de la Bourdette ainsi qu'à deux pas des Allée Niel et de son marché.
Les plus : Charme de l'ancien. Tableau électrique neuf. Parquet massif. Briques et Galets typiques de la région.
Prêt à avoir le coup de coeur ?? N'hésitez pas à nous contacter au O5.32.09.66.50 pour organiser une visite !
Copropriété (division volumétrique) de 2 lots, sans charges de copropriété.
Les informations sur les risques auxquels ce bien est exposé sont disponibles sur le site Géorisques : www.georisques.gouv.fr
1596
6Montant estimé des dépenses annuelles d'énergie pour un usage standard :
Entre 970.00€ et 1340.00€ par an
-
Les essentiels
- 4 pièces
- 80.00 m²
- 3 chambres
- 1 salle de bain
-
Intérieur
- Cuisine Indépendante Aménagée
-
Copropriété
- Bien en copropriété
- 2 lots
- Charges annuelles (ALUR) : 0.00€
- Pas de procédure en cours
-
Autres
- Etat général : Bon Etat
- Etage 1
- Construit en 1948
- Immeuble de 1 étage
Vous souhaitez visiter la Maison
l'Adresse immobilier Muret
31600 Muret
Transaction :
05 32 09 66 50
Location :
05 32 09 66 50
Nos honoraires
- l'Adresse immobilier Muret
- 8000
- Emilie BORIN
- 838557965
- TOULOUSE
- FR53838557965
- CPI31012018000029501
- 2 RUE ALSACE LORRAINE 31000 TOULOUSE
- SOCAF
- 110000
- 26 AVENUE DE SUFFREN 75015 PARIS
- MCCA - médiation 77 rue Lourmel 75 015 Paris www.mcca-mediateur.fr
Mentions légales
Nous tenons à vous informer que l'annonce immobilière que vous avez consultée n'est malheureusement plus disponible pour les visites.
Nous comprenons que cela puisse être décevant, mais nous vous encourageons à continuer à explorer nos autres annonces disponibles. Notre équipe est à votre disposition pour vous aider à trouver la propriété qui correspond à vos besoins et à votre budget.
N'hésitez pas à nous contacter pour toute question ou pour planifier des visites pour d'autres biens. Nous sommes déterminés à vous accompagner dans votre recherche et à vous aider à trouver votre nouveau chez-vous.
Merci pour votre compréhension et votre intérêt.
Les maisons similaires
Montastruc-la-Conseillère (31)
315 000 €Maison4 pièces , 3 chambres
96.00 m²
Avec jardin, terrasse
Gratentour (31)
Exclusif378 000 €Maison5 pièces , 4 chambres
104.00 m²
Gémil (31)
259 000 €Maison10 pièces , 7 chambres
297.00 m²
Avec jardin, terrasse, garage/box
Villeneuve-lès-Bouloc (31)
450 000 €Maison5 pièces , 3 chambres
183.00 m²
Muret (31)
Exclusif165 000 €Maison4 pièces , 3 chambres
93.00 m²
Castelmaurou (31)
390 000 €Maison6 pièces , 4 chambres
144.76 m²
Avec jardin, terrasse, garage/box
Menville (31)
699 000 €Maison9 pièces , 7 chambres
363.00 m²
Saint-Orens-de-Gameville (31)
470 000 €Maison4 pièces , 3 chambres
136.00 m²
Avec jardin, garage/box
- Achat maison
- Occitanie
- Haute-Garonne (31)
- Muret (31600)
- Vente maison 4 pièces, 80.00m², Muret

















