Vente maison 6 pièces, 200.00m², Nanterre
- 200.00m²
- 6 pièces
- 5 chambres
- 3 SDB
NANTERRE/ Maison 6 pièces 200 m² - Jardin/Terrasse 241m² - 3 Stationnements
L'Agence L'Adresse Immobilier vous présente en EXCLUSIVITÉ cette magnifique maison de caractère qui offre un cadre de vie rare, familial et confidentiel, située rue du Cheval Moussé, dans un environnement résidentiel ultra calme, à la limite de Puteaux, de Suresnes et Rueil Malmaison.
À proximité immédiate des transports (Bus 141 ou 360 à 3 min à pied qui vous conduisent à La Défense en 10 min, la gare de Suresnes ou le T2 à 15 min à pied et le futur métro 15).
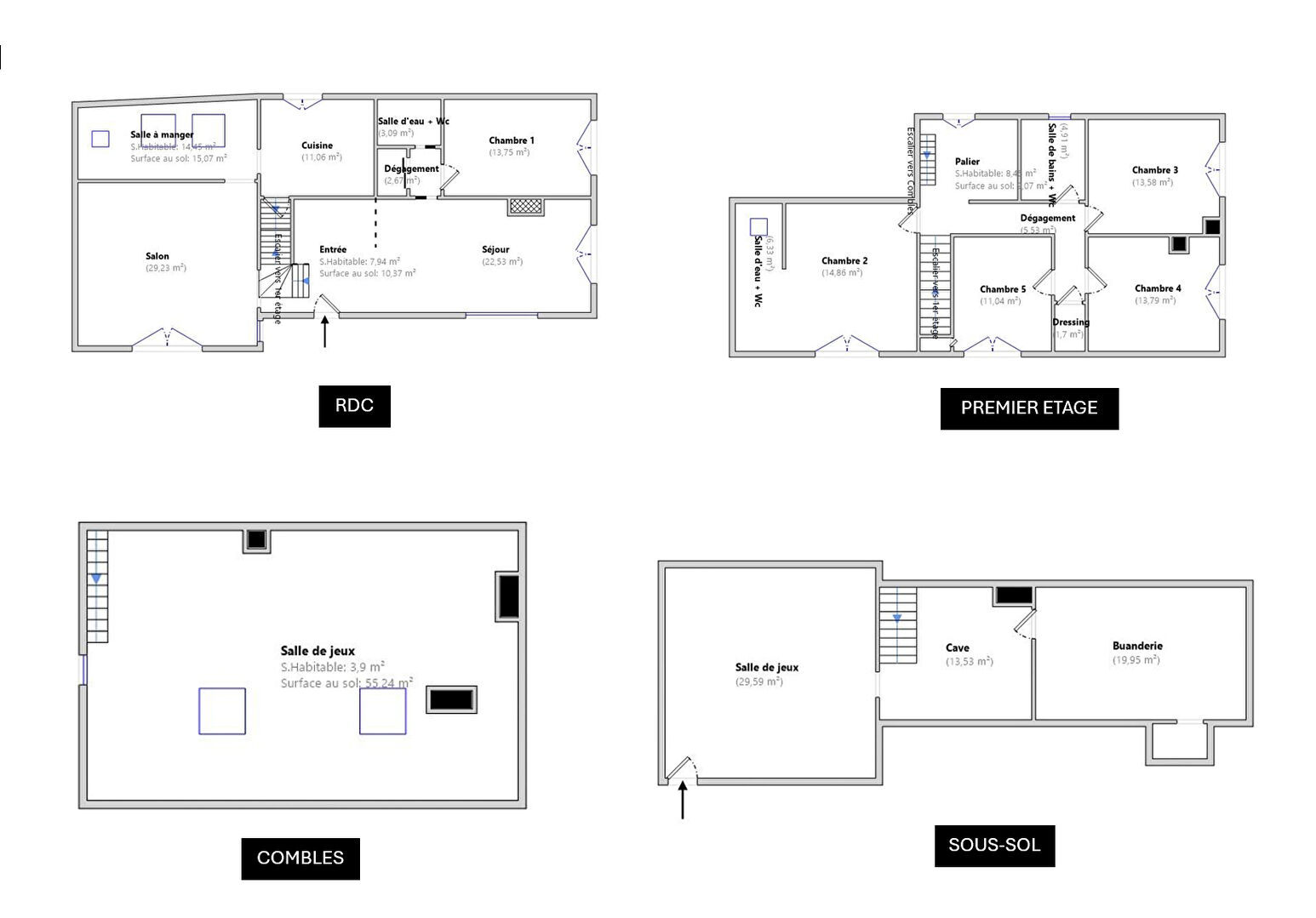
Dès l'entrée, la maison dévoile une atmosphère chaleureuse et lumineuse offrant 81 m² de réception.
L'entrée dessert naturellement les différents niveaux et invite à la découverte des espaces de vie.
Au rez-de-chaussée, un premier salon avec une cheminée fait office d'espace lecture, télévision ou de salon intimiste, idéal pour se détendre ou recevoir en toute convivialité.
La cuisine semi ouverte, aménagée et fonctionnelle, s'intègre parfaitement à l'espace de vie. Depuis la cuisine, un accès direct au sous-sol facilite l'organisation de la maison.
Dans le prolongement, une salle à manger baignée de lumière, sublimée par des velux.
Un salon complémentaire, plus spacieux, complète cet ensemble et permet de multiplier les usages (réception ou salon principal), ouvert lui aussi sur la terrasse et le jardin.
Le rez-de-chaussée accueille également une chambre, idéale pour une suite parentale ou un bureau, avec un grand placard et une salle d'eau avec des toilettes.
Les pièces de vie tournent autour de l'escalier principal, qui mène au premier étage dédié à l'espace nuit.
On y découvre un palier avec grand dressing, quatre chambres spacieuses minimum 14m², dont une avec une salle d'eau et toilettes attenantes, une salle de bains avec des toilettes et un placard.
Chaque chambre est équipée d'un dressing.
Les combles aménagées proposent un espace supplémentaire, aujourd'hui utilisé comme salle de jeux/cinéma, mais pouvant aisément devenir un espace loisirs, télétravail ou détente selon les besoins.
Le sous-sol, accessible directement depuis la cuisine ou depuis le jardin, accueille une buanderie, des espaces de rangement et des pièces annexes, apportant une vraie fonctionnalité à la maison.
À l'extérieur, la maison qui bénéficie du soleil toute la journée, est positionnée en limite de propriété et s'ouvre sur un jardin arboré de plus de 240m², à l'abri des regards, offrant une véritable sensation de calme et de verdure.
La terrasse prolonge naturellement les espaces de vie et permet de profiter pleinement des beaux jours.
La propriété permet également le stationnement de véhicules, avec un garage ouvert et un fermé pour les vélos et le matériel de jardinnage, un atout rare dans le secteur.
Cette maison séduit par son style bourgeois aux inspirations Art déco, son esprit maison de campagne en ville, son calme absolu et sa localisation privilégiée, à proximité de Suresnes, Puteaux, des transports et de La Défense.
Au plaisir de vous faire découvrir.
Contactez Céline DREUX
Les informations sur les risques auxquels ce bien est exposé sont disponibles sur le site Géorisques : www.georisques.gouv.fr
24538
38Montant estimé des dépenses annuelles d'énergie pour un usage standard :
Entre 3780.00€ et 5130.00€ par an
-
Les essentiels
- 6 pièces
- 200.00 m²
- 5 chambres
- 1 salle de bain
- 2 salles d'eau
-
Intérieur
- Cuisine Ouverte Aménagée Equipée
- Interphone : Oui
- Visiophone : Oui
- 1 Cave
-
Extérieur
- Jardin 540.00 m²
- 3 Parkings
-
Autres
- Fibre : Oui
- Construit en 1930
- Immeuble de 2 étages
Vous souhaitez visiter la Maison
l'Adresse Puteaux
92800 Puteaux
Transaction :
01 70 21 87 31
Location :
01 70 21 87 31
Nos honoraires
- l'Adresse Puteaux
- 10000
- Nathalie ANDRIEUX
- 812808657
- Nanterre
- FR19812808657
- 4402 2015 000 001 799
- CCI de Paris Île-de-France
- GALIAN
- 200 000 €uros
- 89 rue de la Boétie 75008 PARIS
- MIEUX VIVRE ENSEMBLE - 1, impasse de Beauregard 54000 NANCY - mediation@vivons-mieux-ensemble.fr
Mentions légales
Les maisons similaires
Suresnes (92)
1 160 000 €Maison7 pièces , 4 chambres
191.00 m²
Avec jardin
Nanterre (92)
529 000 €Maison4 pièces , 3 chambres
90.00 m²
Avec jardin, terrasse
Suresnes (92)
930 000 €Maison6 pièces , 4 chambres
130.00 m²
Antony (92)
Exclusif429 000 €Maison3 pièces , 1 chambre
55.10 m²
Avec jardin, terrasse, garage/box
Antony (92)
630 000 €Maison9 pièces , 7 chambres
189.00 m²
Avec jardin, terrasse
Rueil-Malmaison (92)
950 000 €Maison7 pièces , 6 chambres
128.00 m²
Nanterre (92)
529 000 €Maison4 pièces , 3 chambres
90.00 m²
Avec jardin, terrasse
Suresnes (92)
Exclusif668 000 €Maison7 pièces , 5 chambres
106.00 m²
Avec garage/box
- Achat maison
- Île-de-France
- Hauts-de-Seine (92)
- Nanterre (92000)
- Vente maison 6 pièces, 200.00m², Nanterre

















