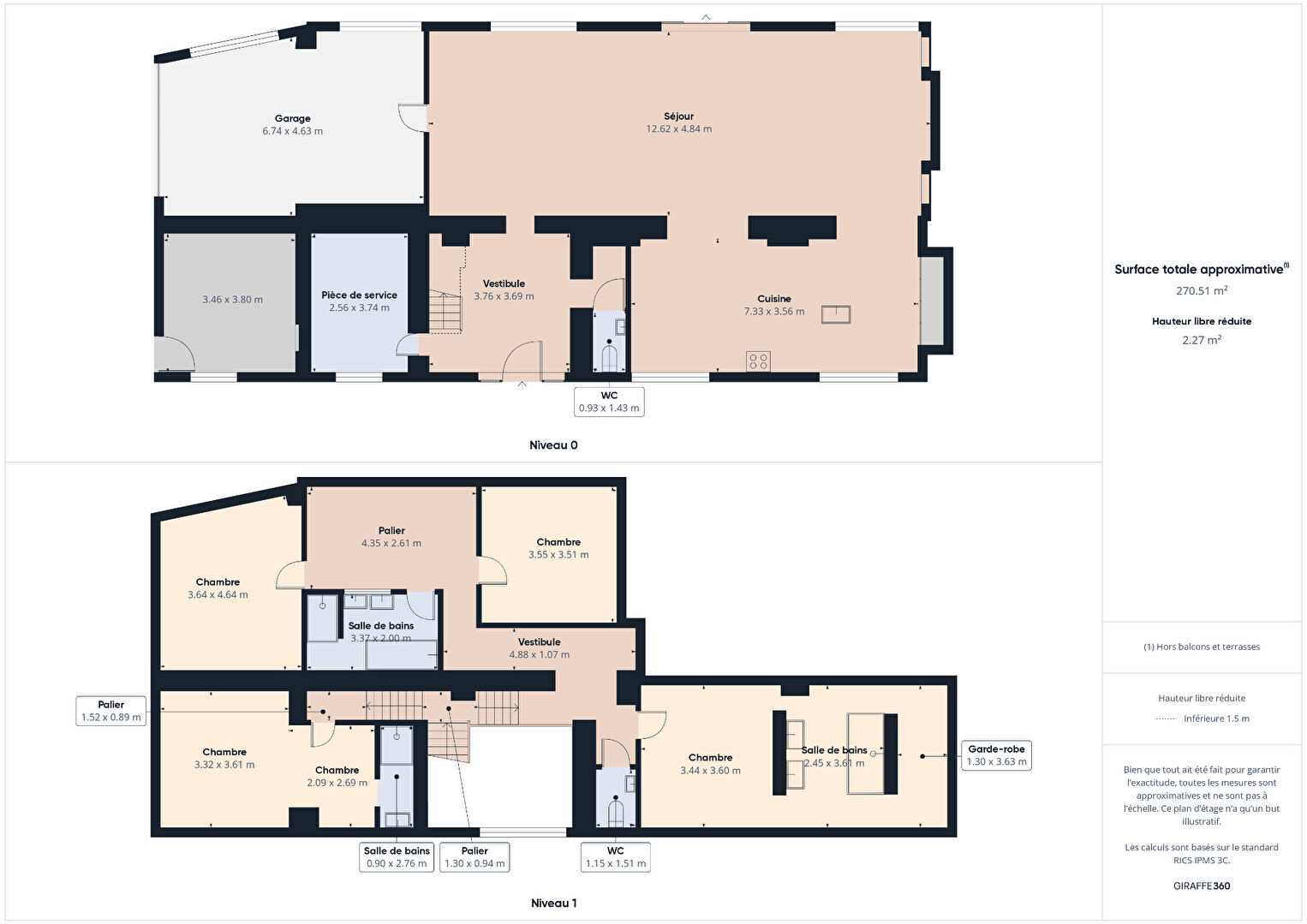
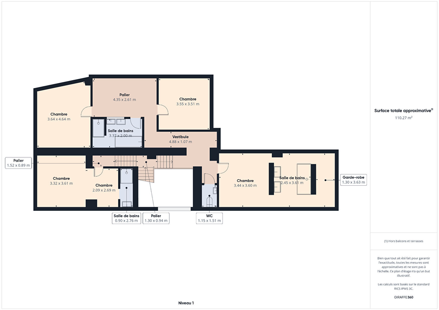
Vente maison 8 pièces, 236.00m², Pont-à-Marcq
- 236.00m²
- 8 pièces
- 4 chambres
- 3 SDB
Maison Pont A Marcq 8 pièce(s)
Magnifique adresse sur la rue de la Planque à Pont-à-Marcq.
Cet ancien bâtiment ferroviaire a été complètement réhabilité en une maison au design moderne de 236m2.
Sa distribution atypique, son hall d'entrée magistral, sa pièce de vie alliant authenticité et convivialité, ne pourront que vous charmer.
Malgré ses hauteurs de plafond impressionnantes et ses dimensions généreuses, cette maison se distingue par sa consommation énergétique maîtrisée, grâce à l'alimentation de la pompe à chaleur et à son plancher chauffant au rez-de-chaussée.
La rénovation complète de cette bâtisse a été réalisée en 2022, offrant ainsi un cadre de vie moderne et confortable. Côté pratique, cette maison dispose d'un bureau ou d'une pièce pouvant accueillir une activité libérale, d'un grand garage avec porte électrique sectionnelle, ainsi que de 3 places de stationnement.
Vous pourrez également profiter d'un jardin et d'une terrasse, pré équipée pour l'installation d'un jacuzzi, idéale pour vos moments de détente.
Ne manquez pas cette opportunité unique de vivre dans un bien alliant charme et modernité.
Contactez-nous dès maintenant pour organiser une visite !
Votre futur chez-vous vous attend à Pont-à-Marcq !
Les informations sur les risques auxquels ce bien est exposé sont disponibles sur le site Géorisques : www.georisques.gouv.fr
Les informations sur les risques auxquels ce bien est exposé sont disponibles sur le site Géorisques : www.georisques.gouv.fr
772
2Montant estimé des dépenses annuelles d'énergie pour un usage standard :
Entre 1150.00€ et 1590.00€ par an
-
Les essentiels
- 8 pièces
- 236.00 m²
- 4 chambres
- Accès PMR : Oui
- 1 salle de bain
- 2 salles d'eau
-
Intérieur
- Cuisine Américaine Amenagée Equipée
- Gardien : Non
- Interphone : Non
-
Extérieur
- Jardin 471.00 m²
- 1 Garage/box
- 2 Parkings
-
Autres
- Etat général : Bon Etat
- Fibre : Oui
- Immeuble de 1 étage
Vous souhaitez visiter la Maison
l'Adresse Croix
59170 CROIX
03 20 03 41 74
Nos honoraires
- l'Adresse Croix
- 5000
- HENNEQUIN Richard
- CROIX 909577009
- FR80909577009
- CPI59062022000000022
- CCI Grand Lille Hauts de France Place du Théâtre 59000 LILLE
- GALIAN
- 120000
- 89 Rue de la Boétie 75008 PARIS
- Médiateur du commerce coopératif et associé FCA 77 rue de Lourmel 75015 PARIS www.mcca-médiation.fr
Mentions légales
Les maisons similaires
Wasquehal (59)
414 400 €Maison5 pièces , 4 chambres
135.00 m²
Avec jardin, terrasse
Mouvaux (59)
Exclusif559 900 €Maison7 pièces , 4 chambres
148.66 m²
Avec jardin, terrasse
Seclin (59)
790 000 €Maison10 pièces , 6 chambres
275.00 m²
Avec jardin, terrasse
Lille (59)
305 000 €Maison5 pièces , 3 chambres
112.43 m²
Croix (59)
Exclusif294 000 €Maison5 pièces , 4 chambres
103.53 m²
Avec jardin, terrasse
Provin (59)
198 550 €Maison3 pièces , 2 chambres
100.00 m²
Villeneuve-d'Ascq (59)
254 500 €Maison4 pièces , 2 chambres
75.00 m²
Avec jardin, terrasse
Carnin (59)
350 000 €Maison5 pièces , 4 chambres
155.00 m²
- Achat maison
- Hauts-de-France
- Nord (59)
- Pont-à-Marcq (59710)
- Vente maison 8 pièces, 236.00m², Pont-à-Marcq










