Réf. de l'annonce : 14109571 / 2019
Vente maison 5 pièces, 112.00m², Tournefeuille
- 112.00m²
- 5 pièces
- 4 chambres
- 2 SDB
Maison Tournefeuille - 5 pièces 112 m² avec sous-sol total
L'ADRESSE IMMOBILIER MURET - COUP DE COEUR - PLAIN-PIED -
Sur la commune de Tournefeuille,
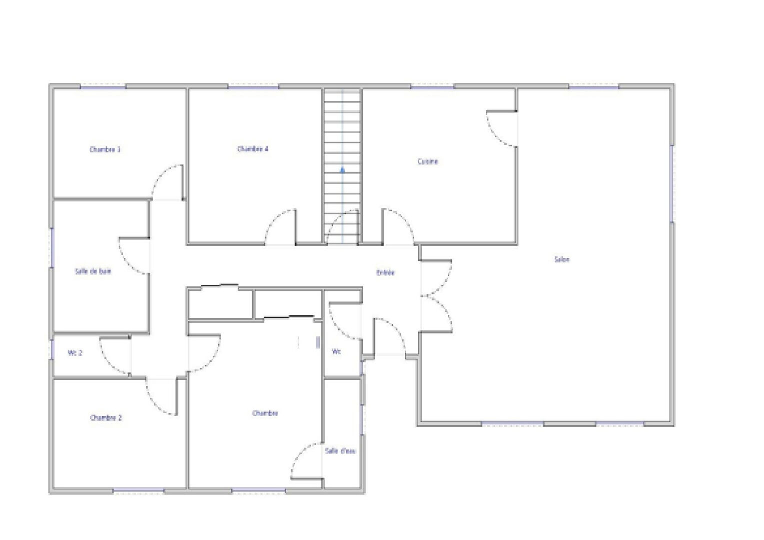
Nous vous proposons cette belle maison T5 individuelle de plain-pied édifiée sur un sous-sol total et composée comme suit :
Entrée donnant sur une belle pièce de vie baignée de lumière, une cuisine indépendante, le tout offrant un espace de vie d'environ 50 m2.
Côté nuit, couloir desservant 4 chambres dont une avec salle d'eau privative, une salle de bains, 2 W.C.
Travaux récents : Menuiseries PVC double vitrage. Climatisation réversible. Toiture remaniée. Isolation des combles.
Les plus : Sous-sol total. Terrasse pour profiter des beaux jours en famille ou entre amis. Piscine 8x4 (le liner sera à changer).
Le tout édifié sur un terrain clos et arboré d'une superficie d'environ 710 m².
Des travaux de modernisation sont à prévoir, une excellente occasion de personnaliser la maison et d'exploiter pleinement son potentiel.
Prêt à avoir le coup de coeur ?! Contactez nous au O5.32.09.66.50 pour organiser une visite !
** Des projections IA vous permettant de vous projeter plus aisément sont incluses dans la présente annonce **
Les informations sur les risques auxquels ce bien est exposé sont disponibles sur le site Géorisques : www.georisques.gouv.fr
17233
33Montant estimé des dépenses annuelles d'énergie pour un usage standard :
Entre 1850.00€ et 2560.00€ par an
-
Les essentiels
- 5 pièces
- 112.00 m²
- 4 chambres
- 1 salle de bain
- 1 salle d'eau
-
Intérieur
- Cuisine AmenageeEquipee
-
Extérieur
- Jardin 710.00 m²
-
Autres
- Etat général : A Rafraichir
- Construit en 1984
Vous souhaitez visiter la Maison
l'Adresse immobilier Muret
31600 Muret
Transaction :
05 32 09 66 50
Location :
05 32 09 66 50
Nos honoraires
- l'Adresse immobilier Muret
- 8000
- Emilie BORIN
- 838557965
- TOULOUSE
- FR53838557965
- CPI31012018000029501
- 2 RUE ALSACE LORRAINE 31000 TOULOUSE
- SOCAF
- 110000
- 26 AVENUE DE SUFFREN 75015 PARIS
- MCCA - médiation 77 rue Lourmel 75 015 Paris www.mcca-mediateur.fr
Mentions légales
Nous tenons à vous informer que l'annonce immobilière que vous avez consultée n'est malheureusement plus disponible pour les visites.
Nous comprenons que cela puisse être décevant, mais nous vous encourageons à continuer à explorer nos autres annonces disponibles. Notre équipe est à votre disposition pour vous aider à trouver la propriété qui correspond à vos besoins et à votre budget.
N'hésitez pas à nous contacter pour toute question ou pour planifier des visites pour d'autres biens. Nous sommes déterminés à vous accompagner dans votre recherche et à vous aider à trouver votre nouveau chez-vous.
Merci pour votre compréhension et votre intérêt.
Les maisons similaires
Saint-Jory (31)
Exclusif279 000 €Maison4 pièces , 3 chambres
100.00 m²
Avec jardin, terrasse, garage/box
Menville (31)
699 000 €Maison9 pièces , 7 chambres
363.00 m²
Castelmaurou (31)
1 249 000 €Maison9 pièces , 7 chambres
401.00 m²
Montjoire (31)
Exclusif215 000 €Maison7 pièces , 5 chambres
180.78 m²
Avec terrasse
Mauzac (31)
Exclusif366 490 €Maison5 pièces , 4 chambres
123.00 m²
Avec jardin, terrasse
Gémil (31)
210 000 €Maison10 pièces , 7 chambres
297.25 m²
Avec jardin, terrasse, garage/box
Tournefeuille (31)
Exclusif339 000 €Maison5 pièces , 4 chambres
116.00 m²
Avec jardin
Saint-Alban (31)
249 000 €Maison5 pièces , 4 chambres
106.00 m²
Avec jardin
- Achat maison
- Occitanie
- Haute-Garonne (31)
- Tournefeuille (31170)
- Vente maison 5 pièces, 112.00m², Tournefeuille

















