Vente maison 15 pièces, 250.00m², Bénaménil
- 250.00m²
- 15 pièces
- 10 chambres
- 2 SDB
Maison Bénaménil 54450
Maison à vendre en Exclusivité chez l'Adresse
À découvrir sur notre site web ou en agence !
Présentation du Projet 3D
Un aménagement d'intérieur innovant pour le salon/salle à manger, conçu de manière non contractuelle par un Architecte d'intérieur, illustrant le potentiel optimal de l'espace.
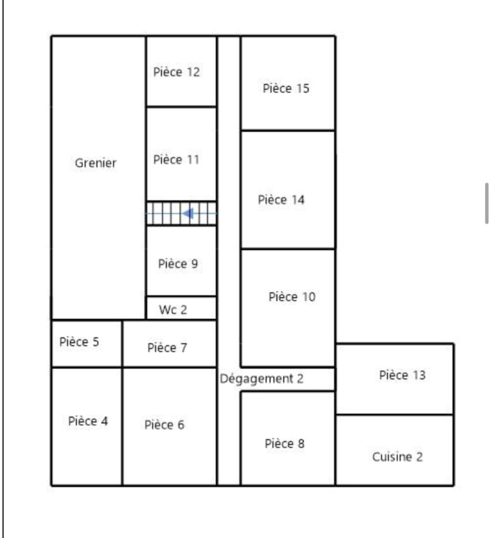
Nous vous présentons une maison spacieuse de 15 pièces, offrant un cadre de vie privilégié et de nombreuses possibilités d'aménagement.
2 cuisines aménagées, une cuisine au rez-de-chaussée, idéale pour les repas en famille.
Une seconde cuisine à l'étage pour un agencement fonctionnel.
2 salles d'eau, une salle d'eau au rez-de-chaussée et une à l'étage, assurant confort et praticité.
2 chambres au rez-de-chaussée avec un accès direct au jardin, parfait pour profiter des extérieurs.
Accès au garage et dépendances
Étage : Composé de plusieurs chambres et dressings, offrant des espaces privés et de rangement optimisé.
Espace de rangement et de stationnement, avec la possibilité de transformation selon vos besoins.
Note : Des travaux de rénovation sont à prévoir, permettant de personnaliser ce bien selon vos goûts.
Cette propriété représente une opportunité idéale pour les investisseurs souhaitant créer 2 appartements d'environ 100 m² chacun, optimisant le potentiel locatif.
Deux accès indépendants : Facilite l'accès pour les véhicules.
Idéal pour une activité professionnelle indépendante ou pour la location.
Le bien est idéalement situé dans un environnement calme et verdoyant, propice à une vie sereine.
Terrain constructible de 1000 m²
Offrant de multiples possibilités d'aménagement, que ce soit pour un projet personnel ou pour une exploitation locative.
Vous souhaitez en savoir plus ou planifier une visite ?
Contactez-nous dès maintenant pour obtenir le dossier complet et organiser une visite privée en exclusivité.
Madame Julie HUMBERT (EI)
Agence l'Adresse
Tél : 06.88.11.25.83
(RSAC)
Réf. 2627
Votre futur chez-vous vous attend !
Les informations sur les risques auxquels ce bien est exposé sont disponibles sur le site Géorisques : www.georisques.gouv.fr
32271
71Montant estimé des dépenses annuelles d'énergie pour un usage standard :
Entre 7750.00€ et 10520.00€ par an
-
Les essentiels
- 15 pièces
- 250.00 m²
- 10 chambres
- Accès PMR : Oui
- 2 salles d'eau
-
Intérieur
- Cuisine Indépendante Aménagée
-
Extérieur
- 1 Balcon
- Jardin 1300.00 m²
- 2 Garages/box
-
Autres
- Fibre : Oui
- Immeuble de 1 étage
Vous souhaitez visiter la Maison
l'Adresse Metz
57000 Metz
Transaction :
03 87 32 15 15
Location :
03 87 32 15 15
Nos honoraires
- l'Adresse Metz
- 2000€
- Lise BIRDEN
- RCS de Metz
- FR65 831 129 127
- 57012017000021415
- CCI de Metz
- GALIAN ASSURANCES
- 120 000€
- 89 rue de la Boétie 75008 Paris
- VIVONS MIEUX ENSEMBLE 465 avenue de la libération 54000 NANCY https://www.mediation-vivons-mieux-ensemble.fr/
Mentions légales
Les maisons similaires
Avril (54)
Exclusif379 000 €Maison6 pièces , 4 chambres
173.00 m²
Avec jardin, terrasse, garage/box
Heillecourt (54)
Exclusif350 000 €Maison8 pièces , 4 chambres
172.00 m²
Avec jardin, terrasse
Vandières (54)
Exclusif80 000 €Maison6 pièces , 3 chambres
143.00 m²
Avec jardin
Lalœuf (54)
Exclusif397 400 €Maison8 pièces , 4 chambres
228.00 m²
Vandœuvre-lès-Nancy (54)
197 000 €Maison4 pièces , 3 chambres
87.00 m²
Avec jardin, terrasse
Val de Briey (54)
Exclusif499 000 €Maison9 pièces , 5 chambres
224.00 m²
Avec jardin, terrasse, garage/box
Laneuveville-devant-Nancy (54)
430 000 €Maison6 pièces , 4 chambres
261.00 m²
Avec jardin
Malleloy (54)
310 000 €Maison5 pièces , 3 chambres
110.00 m²
Avec terrasse
- Achat maison
- Grand Est
- Meurthe-et-Moselle (54)
- Bénaménil (54450)
- Vente maison 15 pièces, 250.00m², Bénaménil

















