Vente maison 5 pièces, 128.00m², Larressore
- 128.00m²
- 5 pièces
- 3 chambres
- 2 SDB
Maison 5 pièces sur 3 niveaux jardinet et garage Larressore
CODE VISITE VIRTUELLE IMMERSIVE SUR DEMANDE
À Larressore, au coeur du Pays Basque, découvrez cette maison mitoyenne d'un seul côté sans copropriété, alliant fonctionnalité, confort et praticité, à seulement quelques minutes d'Ustaritz et de Cambo-les-Bains.
Située dans un quartier résidentiel calme et recherché, elle offre un cadre de vie agréable à proximité immédiate des commodités du village : école, supérette, boulangerie, restaurant, bar et vie associative dynamique.
Caractéristiques principales:
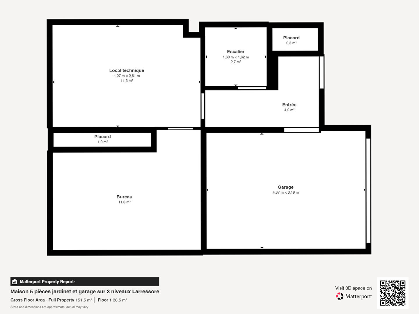
Édifiée sur une parcelle d'environ 140 m², cette maison développe 96 m² habitables sur deux niveaux supérieurs, pour une surface utile d'environ 128 m² incluant l'entrée, la buanderie et la chambre ou bureau du rez-de-chaussée, et 144 m² au total avec le garage, le tout bien agencé sur trois niveaux.
Au rez-de-chaussée, une entrée avec rangements, un garage, une buanderie aménagée avec point d'eau et douche, ainsi qu'une chambre ou un bureau pouvant servir de pièce d'appoint.
Le niveau principal accueille une pièce de vie lumineuse avec cuisine ouverte entièrement équipée de 43m², donnant sur une terrasse avec pergola et un jardinet intime. Un cellier et un WC indépendant complètent ce niveau.
À l'étage, l'espace nuit se compose d'un pallier, de trois chambres, d'une salle de bains et d'un WC séparé, offrant un confort familial optimal.
Extérieurs et stationnement:
La maison dispose de deux places de parking et d'un jardin clos facile d'entretien avec terrasse, pergola et gazon synthétique, idéal pour profiter des beaux jours.
Localisation et accessibilité:
-5 minutes d'Ustaritz
-5 minutes de Cambo-les-Bains
-25 minutes de Bayonne et Biarritz
-Un emplacement privilégié pour vivre au calme tout en restant proche des grands axes et des commodités.
Les atouts:
-Maison bien entretenue
-Vie de village recherchée
-Terrasse avec pergola et jardinet
-Quatre chambres et deux salles d'eau
-Garage et deux places de stationnement
-Quartier calme et familial
Votre agence L'Adresse Ustaritz Pays Basque met à votre service des outils de valorisation haut de gamme :
photos HDR professionnelles, visite virtuelle immersive 3D pour vous offrir une expérience complète avant même la visite sur place.
VENTE LONGUE SOUHAITEE
Les informations sur les risques auxquels ce bien est exposé sont disponibles sur le site Géorisques : www.georisques.gouv.fr
14328
28-
Les essentiels
- 5 pièces
- 128.00 m²
- 3 chambres
- 1 salle de bain
- 1 salle d'eau
-
Intérieur
- Cuisine AmenageeEquipee
-
Extérieur
- 1 Balcon
- Jardin 140.00 m²
- 1 Garage/box
- 2 Parkings
-
Autres
- Etat général : Bon Etat
- Fibre : Oui
- Construit en 2008
- Immeuble de 3 étages
Vous souhaitez visiter la Maison
l'Adresse Ustaritz - Pays Basque
c.c. Ursuya, local 5
64480 Ustaritz
05 24 33 74 97
Nos honoraires
- l'Adresse Ustaritz - Pays Basque
- 10000
- Clément FAUCOGNEY
- 884682279
- Bayonne
- CPI64012020000045165
- CCI Bayonne - Pays Basque 50-51 allée marines BP 215 64102 BAYONNE CEDEX
- VIVONS MIEUX ENSEMBLE (www.mediation-vivons-mieux-ensemble.fr)
Mentions légales
Les maisons similaires
Lescar (64)
Exclusif325 000 €Maison5 pièces , 4 chambres
109.00 m²
Avec garage/box
Saint-Pée-sur-Nivelle (64)
Exclusif577 000 €Maison6 pièces , 3 chambres
156.00 m²
Avec jardin, garage/box
Pau (64)
Exclusif936 000 €Maison7 pièces , 6 chambres
198.00 m²
Saint-Pée-sur-Nivelle (64)
Exclusif794 000 €Maison6 pièces , 5 chambres
165.00 m²
Avec jardin, terrasse, garage/box
Lescar (64)
390 000 €Maison7 pièces , 5 chambres
170.00 m²
Avec terrassegarage/box
Lons (64)
375 000 €Maison6 pièces , 5 chambres
150.00 m²
Avec jardin
Pau (64)
390 000 €Maison7 pièces , 5 chambres
170.00 m²
Avec terrassegarage/box
Mauléon-Licharre (64)
Exclusif202 500 €Maison4 pièces , 3 chambres
103.00 m²
Avec jardin
- Achat maison
- Nouvelle-Aquitaine
- Pyrénées-Atlantiques (64)
- Larressore (64480)
- Vente maison 5 pièces, 128.00m², Larressore














