Vente maison 5 pièces, 103.00m², Tournon-sur-Rhône
- 103.00m²
- 5 pièces
- 3 chambres
- 2 SDB
Maison individuelle Tournon Sud
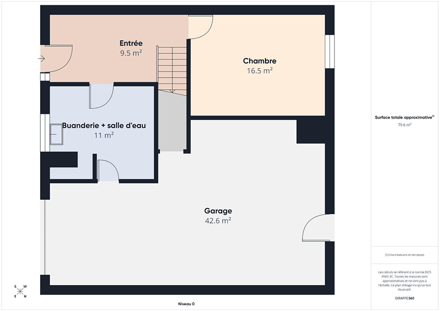
Située dans un quartier recherché et calme de Tournon sud, cette maison individuelle des années 80, rénovée, offre une surface Carrez de 103 m² pour une surface totale au sol de 183 m².
Au rez-de-chaussée, vous découvrirez un hall d'entrée, une chambre spacieuse de plus de 16 m², une buanderie avec salle d'eau (à rafraîchir), ainsi qu'un grand garage de 42 m² équipé d'une porte motorisée.
À l'étage, l'espace de vie se compose d'une cuisine ouverte sur un salon-séjour lumineux d'environ 44 m², donnant accès à une véranda exposée ouest de 11 m². L'espace nuit comprend deux chambres avec parquet et placards (12,37 m² et 10,35 m²), une salle d'eau avec fenêtre et sèche-serviettes, un placard mural et un WC indépendant.
À l'extérieur, vous profiterez d'un jardin avec terrasse ainsi que d'un coin potager.
Côté prestations : la maison est équipée de menuiseries en PVC double vitrage avec volets roulants, un chauffage au gaz, une climatisation réversible dans le séjour, une climatisation dans une chambre et un poêle à bois avec un élégant parement en pierre à l'arrière, finalisé pour la vente.
Taxe foncière : 1 580 €
Charges de copropriété : 50 € / an
ESTIMATION OFFERTE DE VOTRE BIEN SOUS 24H !
Cette annonce est proposée par l'Adresse Immobilier.
Son prix de vente est de 295000€, les honoraires d'agence sont inclus et sont à la charge du vendeur.
Les informations sur les risques auxquels ce bien est exposé sont disponibles sur le site Géorisques : www.georisques.gouv.fr
Les informations sur les risques auxquels ce bien est exposé sont disponibles sur le site Géorisques : www.georisques.gouv.fr
Sabrina BONNEFOIS (EI) Agent commercial - Numéro RSAC : 521 701 300 - romans sur isere.
22739
39Montant estimé des dépenses annuelles d'énergie pour un usage standard :
Entre 1600.00€ et 2180.00€ par an
-
Les essentiels
- 5 pièces
- 103.00 m²
- 3 chambres
- 2 salles d'eau
-
Intérieur
- Cuisine Ouverte Aménagée Equipée
- Gardien : Non
- Interphone : Oui
-
Extérieur
- 1 Balcon
- Jardin 550.00 m²
- 1 Garage/box
- 2 Parkings
-
Copropriété
- Bien en copropriété
- 50 lots
- Charges annuelles (ALUR) : 0.00€
- Pas de procédure en cours
-
Autres
- Etat général : Bon Etat
- Fibre : Oui
- Etage 1
- Construit en 1982
- Immeuble de 1 étage
Vous souhaitez visiter la Maison
l'Adresse VALENCE
Les maisons similaires
Mariac (07)
219 000 €Maison10 pièces , 5 chambres
180.00 m²
Avec jardin, terrasse, garage/box
Lemps (07)
320 000 €Maison6 pièces , 4 chambres
134.00 m²
Avec jardin, terrasse
Saint-Félicien (07)
Exclusif395 000 €Maison12 pièces , 6 chambres
284.00 m²
Avec jardin, terrasse
Tournon-sur-Rhône (07)
375 000 €Maison7 pièces , 3 chambres
212.00 m²
Avec jardin
Vion (07)
Exclusif219 000 €Maison6 pièces , 3 chambres
127.00 m²
Tournon-sur-Rhône (07)
249 000 €Maison5 pièces , 3 chambres
138.00 m²
Avec jardin, terrasse, garage/box
Villeneuve-de-Berg (07)
349 000 €Maison5 pièces , 3 chambres
245.00 m²
Avec jardin
Annonay (07)
650 000 €Maison11 pièces , 5 chambres
230.00 m²
Avec jardin, garage/box
- Achat maison
- Auvergne-Rhône-Alpes
- Ardèche (07)
- Tournon-sur-Rhône (07300)
- Vente maison 5 pièces, 103.00m², Tournon-sur-Rhône

















