Vente appartement 4 pièces, 86.78m², Couëron
- 86.78m²
- 4 pièces
- 3 chambres
- 2 SDB
A VENDRE MAISON T4 DE 86,78m² avec GARAGE DISPONIBLE DE SUITE
Situé à Couëron, à seulement 20 minutes de Nantes, ce programme immobilier neuf bénéficie d'un emplacement privilégié, facilement accessible grâce aux transports en commun (bus, gare TER) et aux nombreuses pistes cyclables. La proximité de la Loire, du lac de Beaulieu et de la Tour à plomb offre un cadre naturel agréable, idéal pour les activités de plein air tout en restant proche des commerces et services.
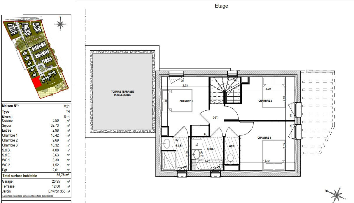
Cette maison T4 offre une surface habitable de 86,78m². Elle comprend au RDC un séjour cuisine d'environ 38m² ouvrant sur une terrasse de 12m² , un WC. A l'étage trois chambres, une salle de bains, une salle d'eau et un second WC. Le jardin d'environ 355m² est engazonné, et une place PMR est aménagée à l'avant du garage attenant à la maison La parcelle est entièrement clôturée.
Le logement présente une performance énergétique en classe B, avec une estimation des dépenses annuelles comprise entre 660 € et 950 €.
Label Energie RT2012
Prix: 350 000€ TTC - Frais de notaire réduit à 2,5%
Prix direct promoteur
REF: 34928BalzM21
"Les informations sur les risques auxquels ce bien est exposé sont disponibles sur le site Géorisques : www.georisques.gouv.fr"
Les informations sur les risques auxquels ce bien est exposé sont disponibles sur le site Géorisques : www.georisques.gouv.fr


-
Les essentiels
- 4 pièces
- 86.78 m²
- 3 chambres
- Accès PMR : Oui
- 1 salle de bain
- 1 salle d'eau
-
Intérieur
- Cuisine Equipee
-
Extérieur
- 1 Parking
-
Copropriété
- Bien en copropriété
- 61 lots
- Charges annuelles (ALUR) : 0.00€
- Pas de procédure en cours
-
Autres
- Etat général : Excellent
- Fibre : Oui
- Construit en 2024
- Immeuble de 1 étage
Vous souhaitez visiter l'Appartement
l'Adresse Carquefou
44470 CARQUEFOU
02 40 52 75 75
Nos honoraires
- l'Adresse Carquefou
- 500 000€
- BERNARD Thierry
- CPI 480 628 593 ANGERS
- 4901 2017 000 018 268
- CCI MAINE ET LOIRE
- GALLIAN
- Activité Transaction : 1 000 000 € Activité Gestion immobilière 2 000 000€
- 89 rue de la Boétie - 75 008 PARIS
- Nom du médiateur : L'Association Nationale des Médiateurs (ANM) Adresse postale du médiateur : 62 rue Tiquetonne 75002 PARIS Site internet du médiateur : www.anm-conso.com
Mentions légales
Les appartements similaires
Saint-Herblain (44)
Exclusif171 200 €Appartement2 pièces , 1 chambre
49.80 m²
Avec balcongarage/box
Saint-Nazaire (44)
439 000 €Appartement4 pièces , 3 chambres
80.99 m²
Avec balcon
Nantes (44)
269 900 €Appartement3 pièces , 2 chambres
61.00 m²
Saint-Nazaire (44)
136 400 €Appartement2 pièces , 1 chambre
40.00 m²
Avec balcon
Saint-Nazaire (44)
Exclusif192 600 €Appartement3 pièces , 2 chambres
61.33 m²
Saint-Sébastien-sur-Loire (44)
326 400 €Appartement3 pièces , 2 chambres
96.00 m²
Avec jardin, terrasse
Nozay (44)
89 000 €Appartement1 pièce , 1 chambre
21.04 m²
Nantes (44)
Exclusif230 000 €Appartement3 pièces , 2 chambres
69.81 m²
Avec balcon
- Achat appartement
- Pays de la Loire
- Loire-Atlantique (44)
- Couëron (44220)
- Vente appartement 4 pièces, 86.78m², Couëron






