Vente appartement 3 pièces, 88.92m², Annecy
- 88.92m²
- 3 pièces
- 2 chambres
- 1 SDB
Appartement 88.92 m2 Annecy-le-Vieux - Albigny
En vente en exclusivité ! Niché au coeur d'Albigny, l'un des quartiers les plus prisés du bassin annécien, cet appartement de 88 m² vous offre ce que beaucoup recherchent : un emplacement d'exception, des volumes généreux, de la lumière, des extérieurs et un vrai potentiel pour faire de ce lieu le vôtre.
À deux pas du lac, des commerces, des écoles et des grands axes, vous profitez ici d'un environnement résidentiel paisible. Albigny, c'est cette rare combinaison entre qualité de vie, calme et accessibilité.
Perché à l'avant dernier étage (au 5ème) d'une résidence avec ascenseur, l'appartement jouit d'une vue dégagée et d'une luminosité exceptionnelle toute la journée. Dès l'entrée, les volumes s'imposent.
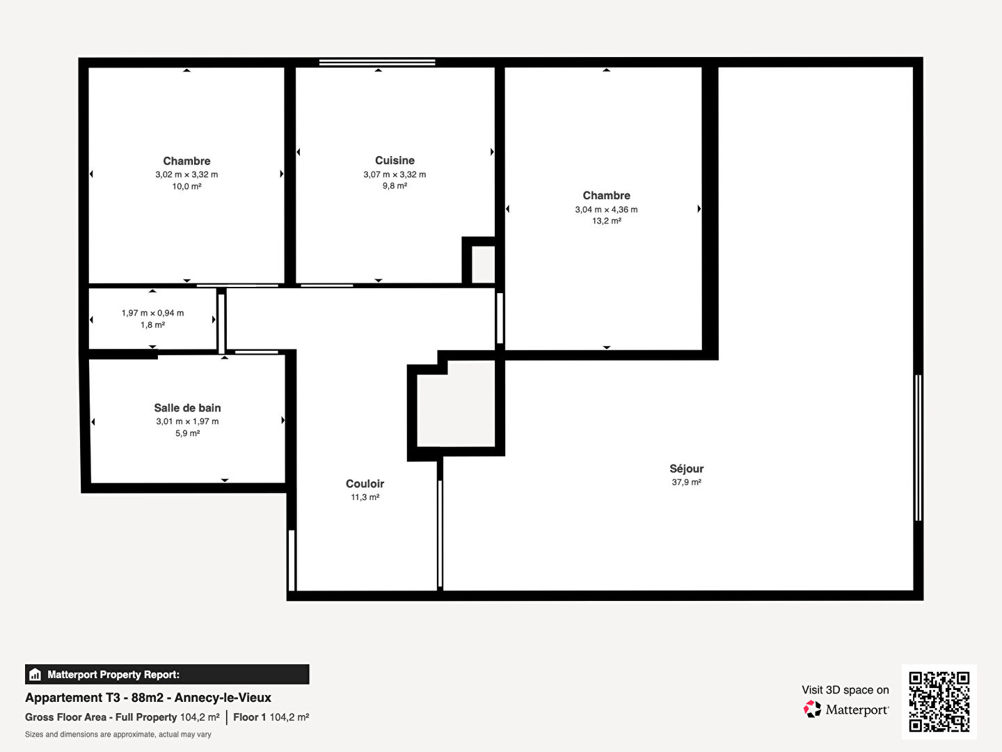
Le séjour, spacieux et baigné de lumière d'environ 38 m2, s'ouvre sur un premier balcon. La cuisine indépendante, bénéficie elle aussi de son propre accès sur un second balcon, apportant clarté.
Deux belles chambres, avec la possibilité d'en aménager une troisième selon vos besoins. Une salle de bains et des WC séparés pour plus de confort au quotidien.
Résidence bien entretenue, entrée sécurisée, et surtout : deux parkings en copropriété avec barrières, un privilège recherché à Annecy-le-Vieux. Une cave privative complète l'ensemble.
Les photos de l'annonce présentent un ameublement virtuel, réalisé afin de vous aider à vous projeter dans les volumes et le potentiel d'aménagement. L'appartement est actuellement vendu vide.
Contactez votre conseillère Jade Collomb au 06 40 60 01 80 ou au 04 50 24 45 96 - elle vous présentera ce bien et vous accompagnera dans votre projet d'achat immobilier.
Sécurisez votre achat immobilier grâce à notre Garantie Revente. Voir conditions en agence.
Montant estimé des dépenses annuelles en énergie pour un usage standard: entre 1750 € et 2420 € (prix moyens indexés sur les années 2021, 2022 et 2023). Les informations sur les risques auxquels ce bien est exposé sont disponibles sur le site Géorisques : www.georisques.gouv.fr
Les informations sur les risques auxquels ce bien est exposé sont disponibles sur le site Géorisques : www.georisques.gouv.fr
Jade COLLOMB (EI) Agent commercial - Numéro RSAC : 918888884 - ANNECY.
24854
54Montant estimé des dépenses annuelles d'énergie pour un usage standard :
Entre 1750.00€ et 2420.00€ par an
-
Les essentiels
- 3 pièces
- 88.92 m²
- 2 chambres
- Ascenseur : Oui
- 1 salle de bain
-
Intérieur
- Cuisine Indépendante meublée
- 1 Cave
-
Extérieur
- 2 Balcons
-
Copropriété
- Bien en copropriété
- 99 lots
- Charges annuelles (ALUR) : 0.00€
- Pas de procédure en cours
-
Autres
- Etat général : A Rafraichir
- Etage 5
- Construit en 1965
- Immeuble de 6 étages
Vous souhaitez visiter l'Appartement
l'Adresse Annecy
74000 Annecy
Transaction :
04 50 24 45 96
Location :
04 50 64 64 13
Nos honoraires
- l'Adresse Annecy
- 3000 euros
- Michel IELO
- 822679072
- ANNECY
- FR74822679072
- CPI 7400 1201 600 001 3157
- HAUTE-SAVOIE
- GALIAN-SMABTP
- 120'000 €
- 89 rue de la boetie 75008 Paris
- ANM CONSO
Mentions légales
Les appartements similaires
Châtel (74)
130 512 €Appartement2 pièces , 1 chambre
28.70 m²
Avec balcon
La Clusaz (74)
193 388 €Appartement2 pièces , 1 chambre
34.31 m²
Annecy (74)
375 000 €Appartement3 pièces
67.00 m²
Saint-Julien-en-Genevois (74)
Exclusif319 000 €Appartement3 pièces , 2 chambres
67.00 m²
Avec balcon
Demi-Quartier (74)
1 450 000 €Appartement5 pièces , 4 chambres
157.00 m²
Epagny Metz-Tessy (74)
Exclusif359 000 €Appartement3 pièces , 2 chambres
61.45 m²
Avec terrasse
Annecy (74)
1 415 000 €Appartement4 pièces , 3 chambres
121.76 m²
Avec balconterrasse
Demi-Quartier (74)
850 000 €Appartement3 pièces , 2 chambres
91.00 m²
- Achat appartement
- Auvergne-Rhône-Alpes
- Haute-Savoie (74)
- Annecy (74940)
- Vente appartement 3 pièces, 88.92m², Annecy










